THE HUB - Medienzentrum I einzigartige Büroflächen I provisionsfrei anmieten

40221 Düsseldorf, Nordrhein-Westfalen
Frei ab: kurzfristig
19,50 € Preis/m²
Gesamtfläche
523 m²
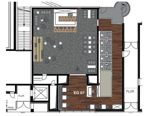
Etage
0
Fahrstuhl

Mietpreis & Nebenkosten

Kaltmiete0 €
Nebenkosten Keine Angabe
Mietpreis pro m²19,5 €
Stellplatz Tiefgarage Miete150 €

Wohnfläche, Grundstück & Bausubstanz

Gesamtfläche523 m²
Fläche Sonstiges523 m²
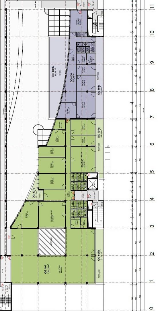
Etagen5
Stockwerk0
Baujahr1995
Verfügbar ab kurzfristig

Beschreibung der Immobilie

Das 6-geschossige Objekt bildet den Mittelpunkt der Kaistraße. Zum neu gestalteten Vorplatz eröffnet sich die repräsentative, fast 80 m lange Eingangshalle. Das Glasdach in Form eines Segels ist ein besonderes Merkmal dieser Immobilie, die unter Voraussetzung einer variablen Nutzungsmöglichkeit errichtet wurde, so daß sich bereits Radiostudios sowie Büronutzer und Gastronomie etablieren konnten. Über 4 Aufzugsanlagen (davon 1 Glasaufzug) erreicht man die oberen Geschosse sowie die Tiefgarage. Die repräsentative äußere Haut setzt sich aus weißen Betonsteinen, Glas und silbernen Fensterelementen zusammen.

Ausstattungsmerkmale

BodenTeppich, Doppelboden
Fahrstuhl
Das Objekt verfügt über folgende Ausstattungsdetails:
- Weitere Erschließungskerne über die Kaistraße und Zollhof
- Repräsentativer, gläserner Haupteingang
- 24 Stunden Sicherheitsservice
- natürliche Be- und Entlüftung sowie gute Lichtverhältnisse durch öffenbare Fenster
- integrierte Arbeitsplatzbeleuchtung
- Elektro-Bodenkanäle
- flexible und effiziente Raumaufteilung vom Einzelbüro bis hin zum Großraum-Loftbüro
- Flächendeckende Kühlung
- Erneuerung des Fußbodens im Eingangsbereich
- Modernisierung des Wegeleitsystems
- Sanierung der Tiefgarage
- Anstrich der innenliegenden Fassade im Atrium

Energie

Heizungsart Fernwärme
Energieträger/Befeuerung Fernwärme

Karte wird geladen...
40221 Düsseldorf – Nordrhein-Westfalen

Lage & Infrastruktur

Das Objekt befindet sich im Düsseldorfer Medienhafen im Kultur- und Medienviertel Düsseldorfs. In der Nähe befindet sich der Landtag, das WDR Landesstudio sowie der Fernmeldeturm. Gut einen Kilometer von der Königsallee und der Altstadt entfernt, verbindet die neu gestaltete Rheinufer-Promenade den Hafen mit der Altstadt und der City. In südliche Richtung erreicht man kurzfristig die Autobahnanschlüsse A46 in Richtung Wuppertal, A59 Richtung Leverkusen/Köln, über die Südbrücke der Stadt Neuss. Die Düsseldorfer City ist nur wenige Fahrminuten vom Objekt entfernt. Eine schnelle Verbindung in Richtung Norden und somit zur Messe Düsseldorf und dem Flughafen Düsseldorf International ist durch den Rheinufertunnel gewährleistet. Über die Rheinkniebrücke gelangt man zügig nach Düsseldorf-Oberkassel und ins Seestern-Gebiet.

Sonstige Informationen

Erdgeschoss und 1. Obergeschoss sind nur zusammenhängend vermietbar
Ansprechpartner/in: Firma
corealis Commercial Real Estate GmbH
Hohe Straße 8-10, 40213 Düsseldorf

Weitere Angebote in Düsseldorf