Gewerbeobjekt: Halle+wohnen für Produktion, Handel, Handwerk

64807 Dieburg, Hessen
Frei ab: nach Absprache
890.000 € Kaufpreis
Gesamtfläche
2.000 m²
Einbauküche
Balkon
Terrasse
Garten
Barrierefrei

Kaufpreis

Kaufpreis 890.000 €
Maklerprovisionkeine Provision, courtagefrei

Wohnfläche, Grundstück & Bausubstanz

Gesamtfläche2.000 m²
Grundstücksfläche2.000 m²
Baujahr1985
Verfügbar ab nach Absprache
ZustandGepflegt

Beschreibung der Immobilie

Zum Verkauf von privat, * PROVISIONSFREI *
steht ein vielseitig nutzbares Wohn & Gewerbeobjekt im Industriegebiet Dieburg.
Ob als Lager, Versandhandel, Kfz, Handwerk, Einzelhandel, Gastro, Sport, Freizeitstätte usw. hier ist vieles machbar. Hier haben sie die Möglichkeit sich zu entfalten. Parkplätze sind reichlich vorhanden. Zusätzlich beinhaltet dieses Objekt Wohnmöglichkeiten, sodass Arbeiten und Wohnen einfach ist. Das Haus ist nicht vermietet und wird frei übergeben.

Grundstücksgröße: 2000 m²
Bauart: Ytong Baujahr-Fertigstellung: 1985
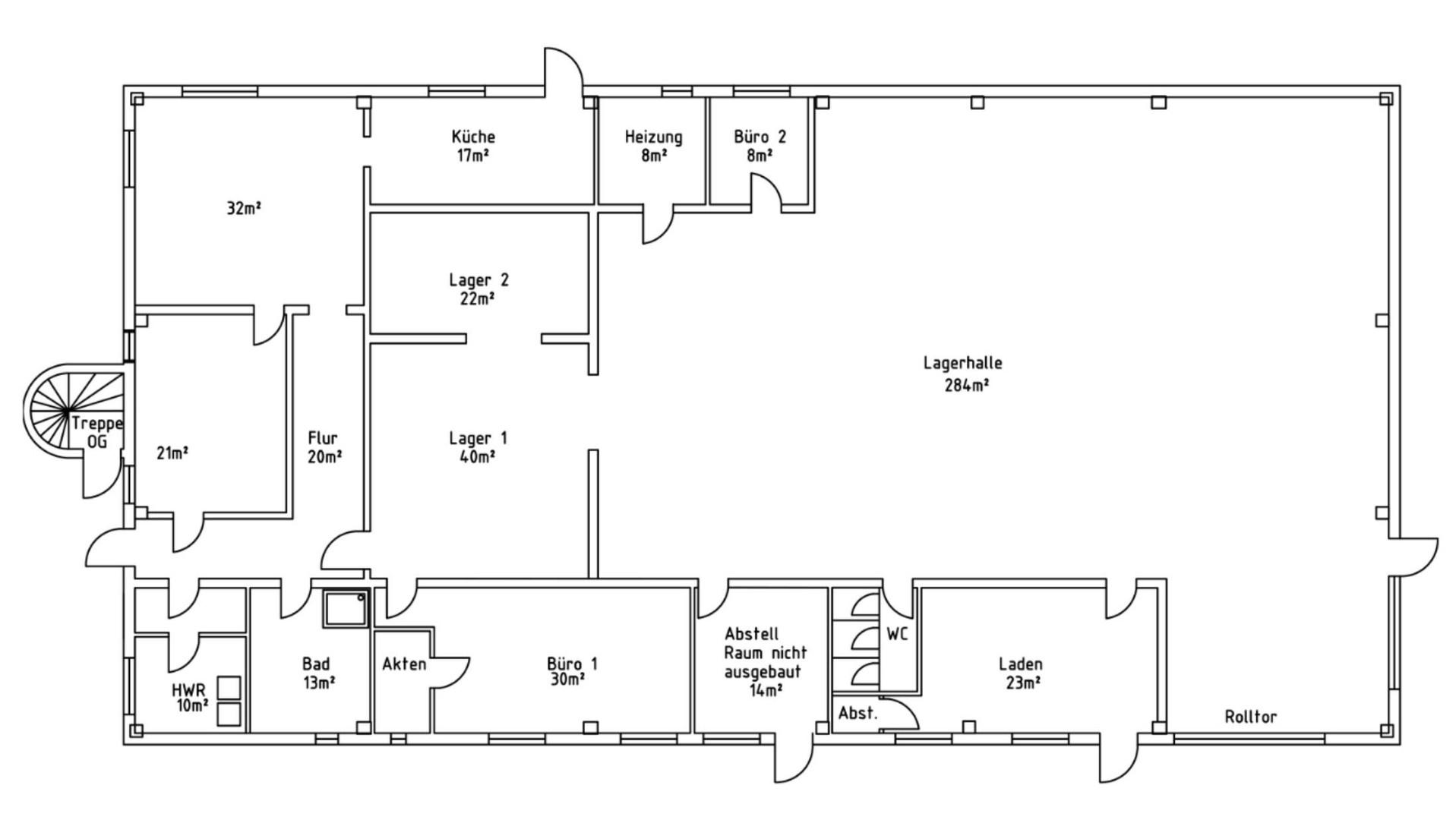
Halle: mit Sektional Rolltor (4x3,7m) Decke aktuell abgehängt,
Lichte Höhe: ca. 3,67m, Traufhöhe ca.4,87m Firsthöhe ca.5,02m
Nicht Unterkellert
Gesamt Lagerfläche: 346m² - beheizt
Büro: 30m²
Personal-Pausenraum: 7,5m²
Personaltoiletten
Heizungsraum
Verkaufsraum: 23m²
Abstellraum: 15m² (nicht ausgebaut)
zusätzlich:
UG: Büroräume mit Küche,WC,Aufenthaltsräumen EG ca. 110qm
OG: Wohnung mit Küche,Bad-WC,Büro ca.95qm

Das Grundstück ist komplett eingezäunt mit Schiebetoranlage 6m
ca. 26 PKW Stellplätze
Der hintere Teil des Grundstücks wird z.Zt. als Garten genutzt.(ca. 480qm)
Eine weitere Bebauung wäre evtl. möglich
Flüssiggastank 4200 Liter
Heizung Gastherme von 08.2010 mit zentraler WW-Versorgung 200L,
Energieverbrauch ca. 89kWh/m²
Neu in 2024/25: Wasser Zuleitung und 2x Balkonkraftwerk
Energieausweis liegt vor


Alle Angaben erfolgen ohne Gewähr auf Richtigkeit und Vollständigkeit.
Ein ausführliches Exposé mit Objektadresse und Kontaktdaten erhalten sie nach Zusendung ihrer kompletten Anschrift .

Ausstattungsmerkmale

KücheEinbauküche
Bad (Ausstattung)Dusche, Wanne
BodenFliesen, Parkett, Laminat
Balkone0
Terrassen1
GartenJa
BarrierefreiJa
Terrasse, Garten, Vollbad, Duschbad, Einbauküche, Gäste-WC, Barrierefrei, Parkett, Laminat, Fliesen

Energie

EnergieausweistypVerbrauch
Heizungsart Zentralheizung
Energieträger/Befeuerung Gas

Karte wird geladen...
64807 Dieburg – Hessen

Lage & Infrastruktur

Verkehrsgünstig in Dieburg, Industriegebiet Nord, eben mit guter Zufahrt.
Infrastruktur (im Umkreis von 5 km):
Apotheke, Lebensmittel-Discount, Allgemeinmediziner, Kindergarten, Grundschule, Hauptschule, Realschule, Gymnasium, Gesamtschule, Öffentliche Verkehrsmittel

Sonstige Informationen

Heizungsart: Zentralheizung
Energieträger: Gas

Aufgrund verschärfter Vergaberichtlinien für gewerbliche Immobilienfinanzierung ist eine Besichtigungen nur gegen Vorlage einer aktuellen Finanzierungsbestätigung/Eigenkapitalnachweis möglich.
Ich bitte um Verständnis.
Prüfen sie daher bitte VOR IHRER ANFRAGE ,ob das Objekt grundsätzlich für ihre Zwecke geeignet ist und eine Finanzierung für ein Gewerbe Anwesen gewährt werden kann.
Gerne sende ich ihnen hierfür das Expose zu.

Makleranfragen nicht erwünscht. Nach § 7 UWG sind unaufgeforderte Kontaktaufnahmen durch Makler ohne ausdrückliche Einwilligung des Empfängers verboten!

ohne-makler (OM) ist weder Anbieter noch Vermittler der Immobilie. OM betreibt eine Plattform für Immobilieneigentümer, die unter anderem die gleichzeitige Veröffentlichung einzelner Inserate auf mehreren Immobilienportalen ermöglicht. Die Inhalte dieser Inserate werden ausschließlich von Dritten verantwortet. Für die Richtigkeit, Vollständigkeit oder Rechtmäßigkeit der Angaben übernimmt OM keine Haftung. Hinweise auf mögliche Rechtsverstöße können jederzeit gemeldet werden und werden nach Prüfung umgehend bearbeitet.
Ansprechpartner/in: Privat vom Eigentümer
OM PropTech GmbH
Humboldtstraße 25a, 21509 Glinde

Weitere Angebote in Dieburg