Gewerbefläche / Büro / Praxis / Kanzlei / Kita - Hier ist alles realisierbar!

10405 Berlin, Berlin
Frei ab: sofort
2.848 € Kaltmiete
3.378 € Warmmiete inkl. NK
14,22 € Preis/m² ca.
2,65 € NK/m²
Bürofläche
200,25 m²
Zimmer
5
Etage
0
Keller

Mietpreis & Nebenkosten

Kaltmiete2.848 €
Nebenkosten 530 €
Warmmiete3.378 €
Maklerprovision3 Nettokaltmieten zuzüglich Mehrwertsteuer

Wohnfläche, Grundstück & Bausubstanz

Wohnfläche200 m²
Gesamtfläche200,25 m²
Bürofläche200,25 m²
Fläche teilbar ab97 m²
Zimmer5
Stockwerk0
Baujahr1900
Letzte Modernisierung2000
Verfügbar ab sofort
ZustandGepflegt

Beschreibung der Immobilie

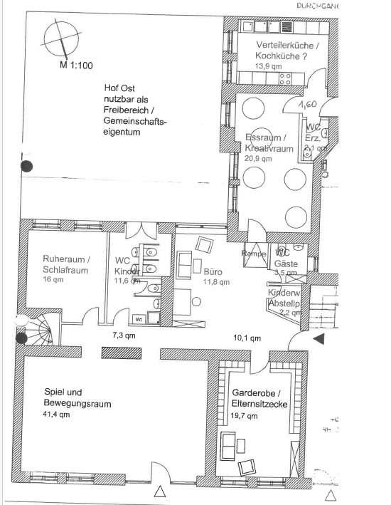
Die vielseitig nutzbare Gewerbeeinheit überzeugt durch eine durchdachte Raumaufteilung und flexible Nutzungsmöglichkeiten. Insgesamt stehen fünf gut geschnittene Räume zur Verfügung, die je nach Bedarf offen gestaltet oder voneinander abgetrennt genutzt werden können. Dadurch eignet sich die Fläche sowohl für kommunikative Arbeitskonzepte als auch für klar strukturierte, separate Nutzungsbereiche.

Ergänzt wird das Raumangebot durch eine funktionale Küche, zwei separate Toiletten sowie einen praktischen Abstellraum, der zusätzlichen Stauraum innerhalb der Einheit bietet. Ein zugehöriger Keller schafft weitere Lager- oder Archivflächen.

Die Einheit wurde zuletzt als Kindertagesstätte genutzt und erfüllt somit bereits viele Anforderungen für eine entsprechende Nutzung, sodass eine erneute Verwendung als Kita problemlos möglich ist. Gleichzeitig bietet die flexible Grundrissgestaltung ideale Voraussetzungen für zahlreiche andere Gewerbeformen. Ob als Büro, Praxis, Kanzlei, Ladengeschäft oder für alternative gewerbliche Konzepte – hier lassen sich unterschiedlichste Nutzungsideen realisieren.

Insgesamt handelt es sich um eine anpassungsfähige und funktionale Gewerbefläche, die sowohl durch ihre Struktur als auch durch ihre vielfältigen Einsatzmöglichkeiten überzeugt.

Ausstattungsmerkmale

KellerJa
Die Einheit verfügt über eine große Fensterfront zur Straße.

Ein großer Keller mit direktem Zugang über die Gewerberäume bietet zusätzliche Lagermöglichkeiten.

Das Haus wird über eine Gas-Heizung beheizt.

Energie

C
Energieeffizienzklasse C · 86.1 kWh/(m²*a)
EnergieausweistypVerbrauch
Ausstellungsdatum13. 04. 2018
Gültig bis12.04.2028
EnergieeffizienzklasseC
Energieverbrauchkennwert86.1 kWh/(m²*a)
Heizungsart Zentralheizung
Wesentlicher EnergieträgerGas
Energieträger/Befeuerung Gas

Karte wird geladen...
10405 Berlin – Berlin

Lage & Infrastruktur

Die Gewerbeeinheit in der Jablonskistraße 24 befindet sich im beliebten Berliner Stadtteil Prenzlauer Berg und überzeugt durch ihre angenehm ruhige Lage innerhalb eines gewachsenen Wohn- und Geschäftsumfelds.

Die Straße selbst ist geprägt von einer entspannten, nachbarschaftlichen Atmosphäre und bietet damit ideale Voraussetzungen für Gewerbe, die Wert auf ein konzentriertes Arbeiten oder diskrete Kundenkontakte legen. Abseits des hektischen Großstadttrubels entsteht hier ein Umfeld, das sowohl für Dienstleister, Kreativschaffende als auch für ruhige Praxis- oder Büroeinheiten hervorragend geeignet ist.

In der näheren Umgebung finden sich dennoch vielfältige Angebote des täglichen Bedarfs, charmante Cafés sowie kleinere Geschäfte, die das Viertel lebendig machen, ohne dabei an Ruhe einzubüßen. Diese ausgewogene Mischung macht den Standort besonders attraktiv für Gewerbetreibende, die eine inspirierende, aber zugleich entspannte Arbeitsumgebung suchen.

Die Anbindung an den öffentlichen Nahverkehr ist sehr gut: Tram- und Buslinien sowie fußläufig erreichbare S- und U-Bahnstationen sorgen für eine komfortable Erreichbarkeit aus allen Teilen Berlins.

Insgesamt bietet dieser Standort eine gelungene Kombination aus ruhiger Lage, urbanem Umfeld und guter Infrastruktur – ideale Voraussetzungen für nachhaltigen geschäftlichen Erfolg.

Sonstige Informationen

Eine Besichtigung sagt mehr als jede Beschreibung, bei Interesse zögern Sie nicht und vereinbaren Sie einen unverbindlichen Termin.
Wir bieten nicht nur eine kostenlose Hotline, sondern auch einen Service am Wochenende an.

Bei Interesse geben Sie bitte immer Ihre vollständigen Kontaktdaten an.

Die Objektbeschreibung beruht ganz oder zum Teil auf Angaben des Eigentümers. Für die Richtigkeit oder Vollständigkeit übernehmen wir keine Gewähr.

Sie haben auf Anhieb nichts gefunden oder suchen Sie etwas ganz bestimmtes?
Teilen Sie uns einfach mit was Sie suchen und wonach wir für Sie die Augen offen halten dürfen. Profitieren Sie von den Vorteilen einer professionellen Maklersuche. Der Suchauftrag ist unverbindlich.
Auf unser Homepage www.falcimmo.de unter der Rubrik Immobiliensuche halten wir für Sie zum einen den Onlinesuchauftrag bereit, haben aber auch viele andere nützliche Informationen für Kaufinteressenten und Eigentümer.
Ansprechpartner/in: Herr Rachid Dib
FALC Immobilien GmbH & Co. KG
Humperdickstr. 3, 53773 Hennef (Sieg)

Weitere Angebote in Berlin