Top-Einzelhandelsfläche (500 m²) in Hanau (63457) – Direkt am BAUHAUS – 28 Stellplätze

Benzstraße 13 63457 Hanau, Hessen
Frei ab: 01.07.2027
6.200 € Kaltmiete (netto)
12,40 € Preis/m² ca.
2,40 € NK/m²
Verkaufsfläche
500 m²
Etage
0

Mietpreis & Nebenkosten

Kaltmiete (netto)6.200 €
Nebenkosten 1200 €
Maklerprovisionkeine Provision, courtagefrei

Wohnfläche, Grundstück & Bausubstanz

Gesamtfläche510 m²
Verkaufsfläche500 m²
Stockwerk0
Baujahr1989
Verfügbar ab 01.07.2027

Beschreibung der Immobilie

FLÄCHE & NUTZUNG
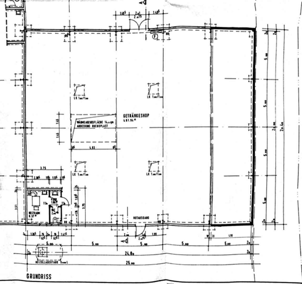
Gesamtfläche: Ca. 510 m² (ebenerdig, barrierefrei)
Verkaufsfläche: Ca. 500 m² (flexible Grundrissgestaltung)
Aktuelle Nutzung: Getränkemarkt (etablierter Fachmarktstandort)
Verfügbar: ab 01.07.2027

LOGISTIG & PARKEN
Stellplätze: ca. 28 Kundenparkplätze direkt am Objekt
Anlieferung: Bodengleich
Frequenz: Hoher „Cross-Shopping-Effekt“ durch unmittelbar angrenzendes Bauhaus und Gartencenter Risse etc.

TECHNISCHE DATEN
Bauweise: Flachdach, barrierefrei, ohne Keller
Lichte Höhe: Ca. 3 m
Boden: Industrieboden
Eingang: Automatik-Tür (Bestand)
Heizung: Eigene Gasbrennwerttherme (Einbau 2022)
Gas: Eigener Gasanschluss (direkte Abrechnung)
Strom: Eigener Stromanschluss (direkte Abrechnung)
Wasser: Gemeinschaftlich mit Fressnapf (jeweils eigene Zähler)
PV-Anlage: In Prüfung (attraktive Stromkonditionen für Mieter ggf. möglich)
Pylon: Vorhanden, beleuchtet

KONDITIONEN
Vermieter optiert zur Umsatzsteuer
Angegebene Nettomiete und Nebenkosten: netto (zzgl. gesetzlicher MwSt.)

Ausstattungsmerkmale


Energie

EnergieausweistypVerbrauch
Heizungsart Zentralheizung
Energieträger/Befeuerung Gas

Karte wird geladen...
Benzstraße 13
63457 Hanau – Hessen

Lage & Infrastruktur

Die Gewerbeeinheit befindet sich in erstklassiger Fachmarktlage direkt angrenzend an das BAUHAUS-Fachcentrum (ca. 26.500 m² Verkaufsfläche, Drive Inn Arena). Durch die gemeinsame Zufahrt und die hohe Sichtbarkeit profitiert der Standort von einer enormen täglichen Kundenfrequenz.

Ein besonderes Highlight für die zukünftige Standortentwicklung ist die unmittelbare Nachbarschaft zum Main-Au-Quartier (ehemaliges Bautz-Gelände). Mit der Schaffung von ca. 1.400 neuen Wohneinheiten entsteht hier ein modernes Stadtquartier, das in den kommenden Jahren ca. 3.000 bis 3.500 neue Anwohner und somit eine enorme Steigerung der lokalen Kaufkraft und Kundenfrequenz direkt vor Ihre Tür bringt.

Eckgrundstück mit hoher Werbewirksamkeit

Hervorragende Anbindung an das Fernstraßennetz (43a, A66, A45)

Sonstige Informationen

Heizungsart: Zentralheizung
Energieträger: Gas


ohne-makler (OM) ist weder Anbieter noch Vermittler der Immobilie. OM betreibt eine Plattform für Immobilieneigentümer, die unter anderem die gleichzeitige Veröffentlichung einzelner Inserate auf mehreren Immobilienportalen ermöglicht. Die Inhalte dieser Inserate werden ausschließlich von Dritten verantwortet. Für die Richtigkeit, Vollständigkeit oder Rechtmäßigkeit der Angaben übernimmt OM keine Haftung. Hinweise auf mögliche Rechtsverstöße können jederzeit gemeldet werden und werden nach Prüfung umgehend bearbeitet.
Ansprechpartner/in: Privat vom Eigentümer
OM PropTech GmbH
Humboldtstraße 25a, 21509 Glinde

Weitere Angebote in Hanau