Wohnlich ausgestattet Gewerbeeinheit

Lausitzer Str. 35 10999 Berlin, Berlin
Frei ab: sofort
140.000 € Kaufpreis
Bürofläche
8,22 m²
Etage
0
Einbauküche

Kaufpreis

Kaufpreis 140.000 €
Maklerprovisionkeine Provision, courtagefrei

Wohnfläche, Grundstück & Bausubstanz

Gesamtfläche13,82 m²
Bürofläche8,22 m²
Etagen5
Stockwerk0
Baujahr1900
Verfügbar ab sofort
ZustandModernisiert

Beschreibung der Immobilie

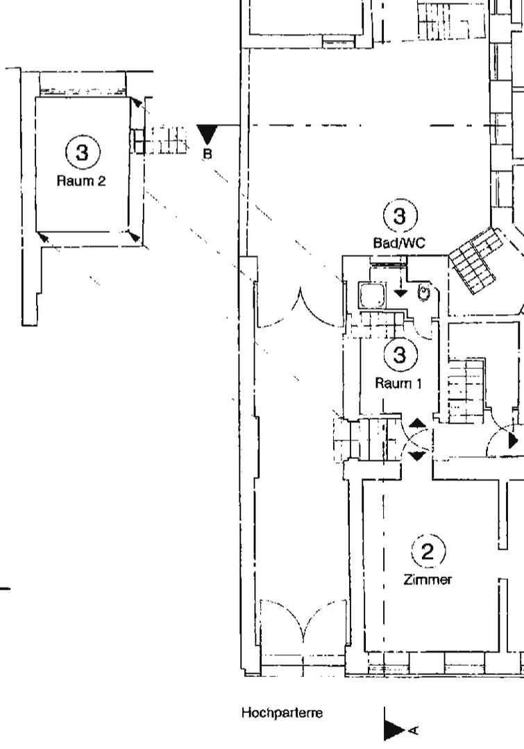
Die Immobilie in der Lausitzer Straße 35 repräsentiert in idealer Weise die für Berlin-Kreuzberg typische Architektur und das Prinzip der „Berliner Mischung“ – eine lebendige Symbiose aus Wohnen, kreativem Gewerbe und sozialen Initiativen. Die im Hochparterre gelegene Einheit verbinden neben kreativer Gestallung ein Mischung aus Moderne und Altbau.
Links vom Entrée erwartet Sie eine moderne, voll ausgestattete Küche, während der Blick geradezu auf das Badezimmer fällt, das mittels eines großzügigen Glaselements elegant separiert ist. Über vier Stufen erreichen Sie das hochgelegene Plateau: Dieser Bereich besticht durch seinen geborgenen Charakter und schafft ein besonders behagliches Ambiente, das zum Verweilen einlädt.
Das Objekt gliedert sich in ein repräsentatives Vorderhaus und teilweise angeschlossene Seitenflügel bzw. Quergebäude, die einen ruhigen und gemeinschaftlich genutzten Innenhof umschließen.

Ausstattungsmerkmale

KücheEinbauküche
BodenFliesen, Parkett
Einbauküche, Parkett, Fliesen

Energie

Heizungsart Fußbodenheizung
Energieträger/Befeuerung Gas

Karte wird geladen...
Lausitzer Str. 35
10999 Berlin – Berlin

Lage & Infrastruktur

Die Immobilie befindet sich in einer der gefragtesten und authentischsten Lagen von Berlin-Kreuzberg, direkt im pulsierenden Viertel rund um den Lausitzer Platz. Diese Adresse steht wie kaum eine andere für die einzigartige Mischung aus historischem Berliner Charme, kreativem Zeitgeist und einer lebendigen, multikulturellen Nachbarschaft.
Der unmittelbar benachbarte Görlitzer Park sowie der fußläufig erreichbare Landwehrkanal bieten vielfältige Möglichkeiten zur Freizeitgestaltung und Naherholung im Grünen.
Die Umgebung ist geprägt von einer exzellenten Gastronomieszene, die von gemütlichen Kiez-Cafés bis hin zu internationaler Sterneküche reicht. Kulturelle Highlights wie das Regenbogenkino oder die nahegelegene Markthalle Neun unterstreichen den besonderen Charakter dieses Standorts.
Alle Geschäfte des täglichen Bedarfs, Bio-Märkte sowie ärztliche Versorgungseinrichtungen (wie die Hausarztpraxis Kreuzberg) befinden sich in direkter Nachbarschaft.
Die Anbindung an den öffentlichen Nahverkehr ist als hervorragend zu bezeichnen.

Die Station Görlitzer Bahnhof (U1, U3) ist nur wenige Gehminuten entfernt und bietet eine schnelle Verbindung in die City West (Kurfürstendamm) sowie nach Friedrichshain.
Durch die jüngsten verkehrsberuhigten Umgestaltungen am Lausitzer Platz (Teilsperrung für den Autoverkehr) hat das Quartier deutlich an Aufenthaltsqualität gewonnen.

Die Lausitzer Straße bietet ein ideales Umfeld für Menschen, die das urbane Berlin in seiner reinsten Form erleben möchten – zentral, kreativ und bestens vernetzt.
Infrastruktur (im Umkreis von 5 km):
Apotheke, Lebensmittel-Discount, Allgemeinmediziner, Grundschule, Öffentliche Verkehrsmittel

Sonstige Informationen

Heizungsart: Fußbodenheizung
Energieträger: Gas

Die Immobilie ist bis zum Ende Juni 2026 vermietet.

Makleranfragen nicht erwünscht. Nach § 7 UWG sind unaufgeforderte Kontaktaufnahmen durch Makler ohne ausdrückliche Einwilligung des Empfängers verboten!

ohne-makler (OM) ist weder Anbieter noch Vermittler der Immobilie. OM betreibt eine Plattform für Immobilieneigentümer, die unter anderem die gleichzeitige Veröffentlichung einzelner Inserate auf mehreren Immobilienportalen ermöglicht. Die Inhalte dieser Inserate werden ausschließlich von Dritten verantwortet. Für die Richtigkeit, Vollständigkeit oder Rechtmäßigkeit der Angaben übernimmt OM keine Haftung. Hinweise auf mögliche Rechtsverstöße können jederzeit gemeldet werden und werden nach Prüfung umgehend bearbeitet.
Ansprechpartner/in: Privat von Herr Wieczorek
OM PropTech GmbH
Humboldtstraße 25a, 21509 Glinde

Weitere Angebote in Berlin