Flexible Büroflächen mit guter Ausstattung
immobilien.de Nr.: 9532989
Objektnummer: 1878_011
Mietpreis & Nebenkosten
| Kaltmiete | 0 € |
| Nebenkosten | Keine Angabe |
| Mietpreis pro m² | 12 € |
Wohnfläche, Grundstück & Bausubstanz
| Gesamtfläche | 195 m² |
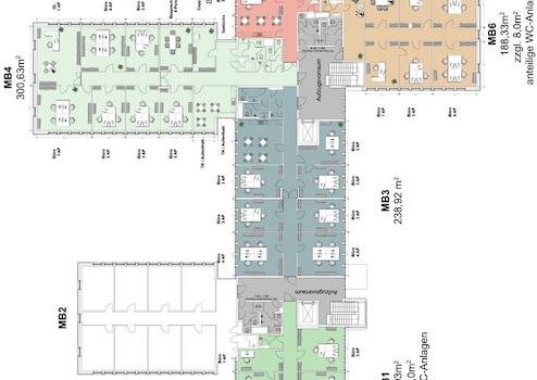
| Bürofläche | 239 m² |
| Verfügbar ab | kurzfristig |
Beschreibung der Immobilie
Das Gebäude überzeugt durch seine moderne Architektur und ein gepflegtes Erscheinungsbild. Die Flächen bieten flexible Nutzungsmöglichkeiten und lassen sich individuell gestalten. Großzügige Fensterfronten schaffen helle, freundliche Arbeitsbereiche und ein angenehmes Raumklima. Die Immobilie eignet sich ideal für Büro- und Dienstleistungsnutzungen und bietet ein professionelles Umfeld mit repräsentativem Charakter.
Ausstattungsmerkmale
| Inserat befindet sich im Stockwerk | 2 |
-Teppichboden
-abgehängte Decken
-integrierte Beleuchtung
-Teeküche
-außenliegender, elektrischer Sonnenschutz
-EDV-Verkabelung
-Personenaufzug
-PKW-Stellplätze auf dem Grundstück
-abgehängte Decken
-integrierte Beleuchtung
-Teeküche
-außenliegender, elektrischer Sonnenschutz
-EDV-Verkabelung
-Personenaufzug
-PKW-Stellplätze auf dem Grundstück
Sonstige Informationen
Über eine Vielzahl von Bahn- sowie Buslinien ist der Gewerbepark sehr gut an das Umland angebunden. Die nahegelegene S-Bahnhaltestelle Ratingen-Ost ermöglichst eine schnelle Anbindung an den Düsseldorfer Hauptbahnhof sowie das Ruhrgebiet (Essen).
Karte wird geladen...
Objektstandort
40878 Ratingen
- Nordrhein-Westfalen
Lage & Infrastruktur
Objektstandort
40878 Ratingen
- Nordrhein-Westfalen
Die Liegenschaft befindet sich in zentraler Lage von Ratingen, nur wenige Minuten von der Innenstadt entfernt. Dank der Nähe zu den Autobahnen A44 und A52 besteht eine hervorragende Anbindung an Düsseldorf, den Flughafen sowie die umliegenden Städte. Auch der öffentliche Nahverkehr ist optimal erreichbar – die S-Bahn-Station Ratingen Ost sowie verschiedene Bushaltestellen liegen in fußläufiger Entfernung. In der direkten Umgebung befinden sich gastronomische Angebote, Hotels sowie vielfältige Einkaufsmöglichkeiten.
Kontaktanfrage senden
Über den Anbieter
corealis Commercial Real Estate GmbH
Hohe Straße 8-10
40213 Düsseldorf
Kontakt
| Telefon | 004921152288470 |
| Fax | 004921152288479 |
| Website | www.corealis.de |
Ansprechpartner/in
Firma
Weitere Angebote des Anbieters
1
2.500 m² | Tischrampe | 8m UKB | Q3 2026
Hallen / Lager / Produktion
50997 Köln / Rondorf
2500 m²
Gesamtfläche
13
Kernsaniertes Objekt nähe Cecilienallee I Erstbezug ab ...
Büro / Praxen
40474 Düsseldorf
HOM12 bietet zahlreiche Besonderheiten, die es zu einer ausgezeichneten Wahl machen. Moderne Räumlichkeiten verfügen über großzügige Fensterflächen, die eine optimale Belichtung durch natürliches Tageslicht ...
23,5 €
Mietpreis pro m²
322 m²
Gesamtfläche
13
Kernsaniertes Objekt nähe Cecilienallee I Erstbezug ab ...
Büro / Praxen
40474 Düsseldorf
HOM12 bietet zahlreiche Besonderheiten, die es zu einer ausgezeichneten Wahl machen. Moderne Räumlichkeiten verfügen über großzügige Fensterflächen, die eine optimale Belichtung durch natürliches Tageslicht ...
23,5 €
Mietpreis pro m²
461 m²
Gesamtfläche
10
Bürocampus mit Tiefgarage und Bistro
Büro / Praxen
40880 Ratingen
Im Objekt "Goldbach-Office-Park" können pro Bauteil bis zu 6.000 m² Bürofläche angemietet werden. Somit ist der "Goldbach-Office-Park" ideal für den klassischen Großnutzer von heute. Die kleinste zu vermietende Einheit ...
11,5 €
Mietpreis pro m²
573 m²
Gesamtfläche
10
Bürocampus mit Tiefgarage und Bistro
Büro / Praxen
40880 Ratingen
Im Objekt "Goldbach-Office-Park" können pro Bauteil bis zu 6.000 m² Bürofläche angemietet werden. Somit ist der "Goldbach-Office-Park" ideal für den klassischen Großnutzer von heute. Die kleinste zu vermietende Einheit ...
11,5 €
Mietpreis pro m²
1386 m²
Gesamtfläche