VG3815c Gastrofläche an Hauptausfallstraße / Regensburg - Nord
3.616 €
Kaltmiete
3.616 €
Kaltmiete (netto)
226 m²
Nutzfläche
immobilien.de Nr.: 9517971
Objektnummer: VG 3815c
Mietpreis & Nebenkosten
| Kaltmiete | 3.616 € |
| Kaltmiete (netto) | 3.616 € |
| Nebenkosten | 678 € |
| Maklerprovision | Ortsübliche Provision vom Käufer/Mieter nur im Erfolgsfalle |
| Kaution | 10.848 € |
| Stellplatz Freiplatz Miete} | 50 € |
Wohnfläche, Grundstück & Bausubstanz
| Nutzfläche | 226 m² |
| Baujahr | 2001 |
| Letzte Modernisierung | 2017 |
| Verfügbar ab | sofort |
| Zustand | Modernisiert |
Energie
| Energieausweistyp | Bedarfsausweis |
| Ausstellungsdatum | 13. 02. 2022 |
| Energieverbrauchkennwert | 138.50 kWh/(m²*a) |
| Energieträger/Befeuerung | Elektro |
Beschreibung der Immobilie
Die Gewerbeflächen befinden sich an einer viel befahrenen Straße im Regensburger Norden. Eine Bushaltestelle ist in unmittelbarer Nähe. Durch die nahegelegene Bundesstraße besteht eine sehr gute Verkehrsanbindung.
Die Laden- und Büroflächen befinden sich in einem Geschäftshaus und werden über eine Gaszentralheizung beheizt. Die Gewerbeeinheiten sind klimatisiert. Toiletten für die Allgemeinheit sind vorhanden.
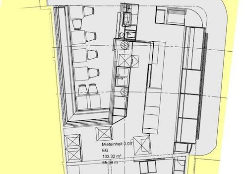
Die Mieteinheit 0.03 befindet sich im Erdgeschoss. Der Kundenzugang ist sowohl von der vollverglasten Straßenseite als auch vom Parkplatz aus möglich. Ein Personaleingang ist zusätzlich vorhanden. Die Fläche ist gefliest und mit einer Abluftanlage ausgestattet. An der vollverglasten Straßenseite entlang, welche sich gut als Werbemöglichkeit eignet, sind Sitzplätze vorhanden. Das WC ist hell gefliest
Die Mieteinheit 0.04 befindet sich im Erdgeschoss. Der Kundenzugang ist sowohl von der vollverglasten Straßenseite als auch vom Parkplatz aus möglich. Ein Personaleingang ist zusätzlich vorhanden. Die Fläche ist gefliest und mit einer Abluftanlage ausgestattet. An der vollverglasten Straßenseite entlang, welche sich gut als Werbemöglichkeit eignet, sind Sitzplätze vorhanden. Das WC ist hell gefliest. Die Ausstattung kann auf Wunsch mitgemietet werden.
In der Tiefgarage befinden sich Stellplätze, die auf Wunsch angemietet werden können. Für Kunden stehen ausreichend kostenlose Parkplätze zur Verfügung.
Die Laden- und Büroflächen befinden sich in einem Geschäftshaus und werden über eine Gaszentralheizung beheizt. Die Gewerbeeinheiten sind klimatisiert. Toiletten für die Allgemeinheit sind vorhanden.
Die Mieteinheit 0.03 befindet sich im Erdgeschoss. Der Kundenzugang ist sowohl von der vollverglasten Straßenseite als auch vom Parkplatz aus möglich. Ein Personaleingang ist zusätzlich vorhanden. Die Fläche ist gefliest und mit einer Abluftanlage ausgestattet. An der vollverglasten Straßenseite entlang, welche sich gut als Werbemöglichkeit eignet, sind Sitzplätze vorhanden. Das WC ist hell gefliest
Die Mieteinheit 0.04 befindet sich im Erdgeschoss. Der Kundenzugang ist sowohl von der vollverglasten Straßenseite als auch vom Parkplatz aus möglich. Ein Personaleingang ist zusätzlich vorhanden. Die Fläche ist gefliest und mit einer Abluftanlage ausgestattet. An der vollverglasten Straßenseite entlang, welche sich gut als Werbemöglichkeit eignet, sind Sitzplätze vorhanden. Das WC ist hell gefliest. Die Ausstattung kann auf Wunsch mitgemietet werden.
In der Tiefgarage befinden sich Stellplätze, die auf Wunsch angemietet werden können. Für Kunden stehen ausreichend kostenlose Parkplätze zur Verfügung.
Ausstattungsmerkmale
| Fahrstuhl | |
| Barrierefrei |
Lage: Regensburg - Nord
Mietpreis: EUR 3.616,-
Nebenkosten: EUR 678,-
Fläche: ca. 226 m²
Lageart: Einkaufszentrum
Baujahr: 2001
letzte Modernisierung: 2017
Kaution: EUR 10.848,-
Geschoss(e): EG
Bezug: sofort
Stellplatzanzahl: möglich
Stellplatzpreis: EUR 50,-
Schaufensterfront: vorhanden
Fußweg zum RVV: 5 min.
Fahrtzeit Bahnhof: 10 min.
Fahrtzeit Autobahn: 5 min.
Fahrtzeit Flughafen: 75 min.
Objekttyp: Gaststätte
Zustand: modernisiert
Stellplatz: Außenstellplatz
Ausstattung: keine Angabe
Heizung: Gas-Heizung
Energieausweis Art: Energiebedarfsausweis
Energieausweis Wert: 138,5 kWh kWh/m²a
Energieträger: Strom
Starkstrom: ja
barrierefrei: ja
DV-Verkabelung: ja
Lift: ja
Mietpreis: EUR 3.616,-
Nebenkosten: EUR 678,-
Fläche: ca. 226 m²
Lageart: Einkaufszentrum
Baujahr: 2001
letzte Modernisierung: 2017
Kaution: EUR 10.848,-
Geschoss(e): EG
Bezug: sofort
Stellplatzanzahl: möglich
Stellplatzpreis: EUR 50,-
Schaufensterfront: vorhanden
Fußweg zum RVV: 5 min.
Fahrtzeit Bahnhof: 10 min.
Fahrtzeit Autobahn: 5 min.
Fahrtzeit Flughafen: 75 min.
Objekttyp: Gaststätte
Zustand: modernisiert
Stellplatz: Außenstellplatz
Ausstattung: keine Angabe
Heizung: Gas-Heizung
Energieausweis Art: Energiebedarfsausweis
Energieausweis Wert: 138,5 kWh kWh/m²a
Energieträger: Strom
Starkstrom: ja
barrierefrei: ja
DV-Verkabelung: ja
Lift: ja
Sonstige Informationen
Um eine schnelle Bearbeitung zu gewähren benötigen wir Ihre Telefonnummer sowie Ihre komplette Adresse.
Karte wird geladen...
Objektstandort
93057 Regensburg
- Bayern
Lage & Infrastruktur
Objektstandort
93057 Regensburg
- Bayern
Regensburg - Nord
Kontaktanfrage senden
Über den Anbieter
TRUMMER Immobilien GmbH & Co. KG
Nußbergerstr. 6
93059 Regensburg
Kontakt
| Telefon | 0941/447633 |
| Fax | 0941/41793 |
| Website | www.trummer.de |
Ansprechpartner/in
Team Gewerbe
Weitere Angebote des Anbieters
3
VG3815c Gastrofläche an Hauptausfallstraße / ...
Gastgewerbe
93057 Regensburg
Die Gewerbeflächen befinden sich an einer viel befahrenen Straße im Regensburger Norden. Eine Bushaltestelle ist in unmittelbarer Nähe. Durch die nahegelegene Bundesstraße besteht eine sehr gute Verkehrsanbindung. Die ...
3.616 €
Kaltmiete
3.616 €
Kaltmiete (netto)
keine Angabe
Gesamtfläche
2
VL3815VGa Ladenfläche an Hauptausfallstraße / ...
Einzelhandel
93057 Regensburg
Die Gewerbeflächen befinden sich an einer viel befahrenen Straße im Regensburger Norden. Eine Bushaltestelle ist in unmittelbarer Nähe. Durch die nahegelegene Bundesstraße besteht eine sehr gute Verkehrsanbindung. Die ...
1.800 €
Kaltmiete
1.800 €
Kaltmiete (netto)
keine Angabe
Gesamtfläche
2
VL3815VGb Ladenfläche an Hauptausfallstraße / ...
Einzelhandel
93057 Regensburg
Die Gewerbeflächen befinden sich an einer viel befahrenen Straße im Regensburger Norden. Eine Bushaltestelle ist in unmittelbarer Nähe. Durch die nahegelegene Bundesstraße besteht eine sehr gute Verkehrsanbindung. Die ...
1.888 €
Kaltmiete
1.888 €
Kaltmiete (netto)
keine Angabe
Gesamtfläche
3
VL3815VGc Ladenfläche an Hauptausfallstraße / ...
Einzelhandel
93057 Regensburg
Die Gewerbeflächen befinden sich an einer viel befahrenen Straße im Regensburger Norden. Eine Bushaltestelle ist in unmittelbarer Nähe. Durch die nahegelegene Bundesstraße besteht eine sehr gute Verkehrsanbindung. Die ...
3.616 €
Kaltmiete
3.616 €
Kaltmiete (netto)
keine Angabe
Gesamtfläche
2
VG3815b Gastro-, Laden- und Büroflächen an ...
Gastgewerbe
93057 Regensburg
Die Gewerbeflächen befinden sich an einer viel befahrenen Straße im Regensburger Norden. Eine Bushaltestelle ist in unmittelbarer Nähe. Durch die nahegelegene Bundesstraße besteht eine sehr gute Verkehrsanbindung. Die ...
1.888 €
Kaltmiete
1.888 €
Kaltmiete (netto)
keine Angabe
Gesamtfläche