Grundstück (3.383 m²) mit Produktionshalle (900 m²) und Bürogebäude (590 m²)
1.850.000 €
Kaufpreis
immobilien.de Nr.: 9513147
Objektnummer: 399722
Kaufpreis
| Kaufpreis | 1.850.000 € |
| Maklerprovision | keine Provision, courtagefrei |
Wohnfläche, Grundstück & Bausubstanz
| Gesamtfläche | 1.490 m² |
| Freifläche | 2.000 m² |
| Grundstücksfläche | 3.383 m² |
| Baujahr | 1992 |
| Verfügbar ab | sofort |
| Zustand | Gepflegt |
Energie
| Heizungsart | Zentralheizung |
| Energieträger/Befeuerung | Gas |
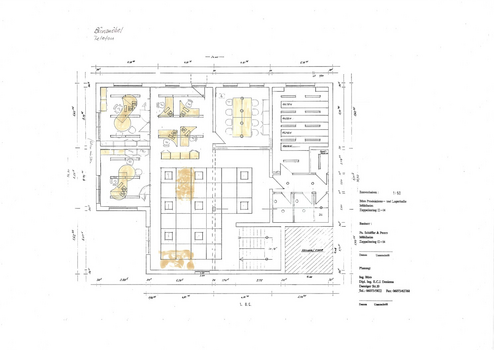
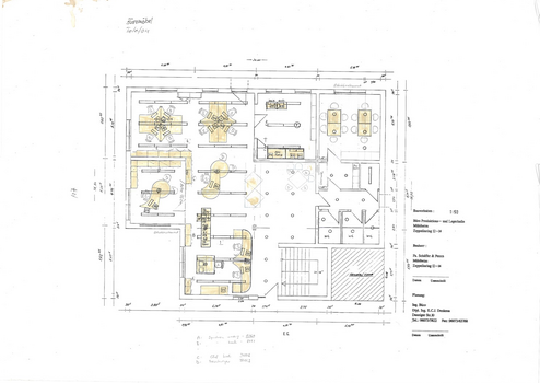
Beschreibung der Immobilie
Das angebotene Gewerbeobjekt befindet sich auf einem großzügigen Grundstück mit einer Gesamtfläche von ca. 3.383 m² in einem gemäß § 8 BauNVO ausgewiesenen Gewerbegebiet. Es bietet eine ideale Kombination aus Produktions-, Büro- und Freiflächen und eignet sich damit hervorragend für vielfältige gewerbliche Nutzungen.
Die bestehende Produktionshalle mit einer Nettofläche von rund 900 m² wurde im Jahr 1983 errichtet und verfügt über eine Hallenhöhe von ca. 3,60 m. Angrenzend befindet sich ein zweigeschossiges Bürogebäude aus dem Jahr 1992, das insgesamt etwa 590 m² Bürofläche auf Erdgeschoss und 1. Obergeschoss verteilt. Die Flächen sind funktional gestaltet und bieten Raum für Verwaltung, Vertrieb oder technische Büros.
Darüber hinaus steht eine großzügige Freifläche von ca. 2.000 m² zur Verfügung, die ausreichend Platz für Parkmöglichkeiten, Lagerung im Außenbereich oder zukünftige Erweiterungen bietet.
Das Planungsrecht sieht eine Grundflächenzahl (GRZ) von 0,8 vor, womit bis zu 2.706 m² überbaut werden dürfen. Die Geschossflächenzahl (GFZ) von 2,0 erlaubt eine zulässige Geschossfläche von bis zu 6.766 m² bei maximal vier Vollgeschossen und offener Bauweise.
Besonders hervorzuheben ist das Entwicklungspotenzial des Objekts: Derzeit besteht ein unbebauter Grundstücksanteil von ca. 1.317,5 m², der aktuell kurzfristig vermietet ist. Dieser Bereich bietet attraktive Möglichkeiten zur Erweiterung oder Neubebauung, um die vorhandenen GRZ- und GFZ-Reserven optimal auszuschöpfen.
Insgesamt handelt es sich um ein vielseitig nutzbares Gewerbeareal mit solidem Gebäudebestand, großzügigen Außenflächen und erheblichem Entwicklungspotenzial in einer gefragten Gewerbelage.
Die bestehende Produktionshalle mit einer Nettofläche von rund 900 m² wurde im Jahr 1983 errichtet und verfügt über eine Hallenhöhe von ca. 3,60 m. Angrenzend befindet sich ein zweigeschossiges Bürogebäude aus dem Jahr 1992, das insgesamt etwa 590 m² Bürofläche auf Erdgeschoss und 1. Obergeschoss verteilt. Die Flächen sind funktional gestaltet und bieten Raum für Verwaltung, Vertrieb oder technische Büros.
Darüber hinaus steht eine großzügige Freifläche von ca. 2.000 m² zur Verfügung, die ausreichend Platz für Parkmöglichkeiten, Lagerung im Außenbereich oder zukünftige Erweiterungen bietet.
Das Planungsrecht sieht eine Grundflächenzahl (GRZ) von 0,8 vor, womit bis zu 2.706 m² überbaut werden dürfen. Die Geschossflächenzahl (GFZ) von 2,0 erlaubt eine zulässige Geschossfläche von bis zu 6.766 m² bei maximal vier Vollgeschossen und offener Bauweise.
Besonders hervorzuheben ist das Entwicklungspotenzial des Objekts: Derzeit besteht ein unbebauter Grundstücksanteil von ca. 1.317,5 m², der aktuell kurzfristig vermietet ist. Dieser Bereich bietet attraktive Möglichkeiten zur Erweiterung oder Neubebauung, um die vorhandenen GRZ- und GFZ-Reserven optimal auszuschöpfen.
Insgesamt handelt es sich um ein vielseitig nutzbares Gewerbeareal mit solidem Gebäudebestand, großzügigen Außenflächen und erheblichem Entwicklungspotenzial in einer gefragten Gewerbelage.
Ausstattungsmerkmale
| Anzahl der Etagen im Haus | 1 |
| Inserat befindet sich im Stockwerk | 0 |
| Küche | Einbauküche |
| Boden | Teppich |
Einbauküche, Gäste-WC, Teppichboden, Sonstiges (s. Text)
Bemerkungen:
1. 2x Falttore ebenerdig
2. Deckenbeleuchtung
3. Sanitär-/Sozialräume
4. Stellplätze vorhanden
5. Elektro- /Starkstrom
6. WCs vorhanden
7. Küche
8. Fußbodenheizung Bürogebäude
9. Gas Zentralheizung
10. Glasfaseranschluss
Bemerkungen:
1. 2x Falttore ebenerdig
2. Deckenbeleuchtung
3. Sanitär-/Sozialräume
4. Stellplätze vorhanden
5. Elektro- /Starkstrom
6. WCs vorhanden
7. Küche
8. Fußbodenheizung Bürogebäude
9. Gas Zentralheizung
10. Glasfaseranschluss
Sonstige Informationen
Heizungsart: Zentralheizung
Energieträger: Gas
Energieausweis nicht vorhanden
Verkauf provisionsfrei ohne Makler
Makleranfragen nicht erwünscht. Nach § 7 UWG sind unaufgeforderte Kontaktaufnahmen durch Makler ohne ausdrückliche Einwilligung des Empfängers verboten!
ohne-makler (OM) ist weder Anbieter noch Vermittler der Immobilie. OM betreibt eine Plattform für Immobilieneigentümer, die unter anderem die gleichzeitige Veröffentlichung einzelner Inserate auf mehreren Immobilienportalen ermöglicht. Die Inhalte dieser Inserate werden ausschließlich von Dritten verantwortet. Für die Richtigkeit, Vollständigkeit oder Rechtmäßigkeit der Angaben übernimmt OM keine Haftung. Hinweise auf mögliche Rechtsverstöße können jederzeit gemeldet werden und werden nach Prüfung umgehend bearbeitet.
Energieträger: Gas
Energieausweis nicht vorhanden
Verkauf provisionsfrei ohne Makler
Makleranfragen nicht erwünscht. Nach § 7 UWG sind unaufgeforderte Kontaktaufnahmen durch Makler ohne ausdrückliche Einwilligung des Empfängers verboten!
ohne-makler (OM) ist weder Anbieter noch Vermittler der Immobilie. OM betreibt eine Plattform für Immobilieneigentümer, die unter anderem die gleichzeitige Veröffentlichung einzelner Inserate auf mehreren Immobilienportalen ermöglicht. Die Inhalte dieser Inserate werden ausschließlich von Dritten verantwortet. Für die Richtigkeit, Vollständigkeit oder Rechtmäßigkeit der Angaben übernimmt OM keine Haftung. Hinweise auf mögliche Rechtsverstöße können jederzeit gemeldet werden und werden nach Prüfung umgehend bearbeitet.
Karte wird geladen...
Objektstandort
Zeppelinring 12-14
63165 Mühlheim am Main
- Hessen
Lage & Infrastruktur
Objektstandort
Zeppelinring 12-14
63165 Mühlheim am Main
- Hessen
Die Immobilie befindet sich im Gewerbegebiet von Mühlheim – einem beliebten Standort für Unternehmen aus Handel, Produktion und Logistik. Die nahegelegene Bundesstraße B43 gewährleistet eine hervorragende Verkehrsanbindung und schnelle Verbindungen innerhalb der gesamten Region. Auch der Frankfurter Flughafen ist in kurzer Zeit erreichbar, was den Standort besonders für international tätige Firmen interessant macht. Zahlreiche Gewerbebetriebe und Dienstleister in der Umgebung unterstreichen die ausgezeichnete Lage zusätzlich.
Infrastruktur (im Umkreis von 5 km):
Apotheke, Lebensmittel-Discount, Öffentliche Verkehrsmittel
Infrastruktur (im Umkreis von 5 km):
Apotheke, Lebensmittel-Discount, Öffentliche Verkehrsmittel
Kontaktanfrage senden
Über den Anbieter
OM PropTech GmbH
Humboldtstraße 25a
21509 Glinde
Kontakt
| Telefon | - |
| Fax | - |
| Website | www.ohne-makler.net |
Ansprechpartner/in
Privat von Kai Peters
Weitere Angebote des Anbieters
4
Grundstück für Einfamilenhaus zu verkaufen
Grundstück
46244 Bottrop
Errichtet werden kann hier ein Einfamilienhaus. Das Einfamilienhaus ist nicht freistehend, sondern müsste direkt an das bereits bestehende Haus angebaut werden. Hier kann ein Einfamilienhaus mit einer Wohnfläche ...
200.000 €
Kaufpreis
400 m²
Grundstücksfläche
18
Top Lage für Laden,Bäckereicafe,Pizzeria ...
Einzelhandel
73312 Geislingen
Es handelt sich um eine sehr schöne, ebenerdige Tageslicht-Geschäftsfläche von 130 m², die ohne störende Säulen sehr großzügig ist und eine freie Gestaltung und Einteilung ermöglicht. Höhe EG ca. 3,40 Meter Den ...
keine Angabe
Preis
180 m²
Gesamtfläche
6
Private kleine Büros im Zuckerspeicher - 15 - 30 m² ...
Büro / Praxen
24103 Kiel
Der Zuckerspeicher in der Kieler Altstadt verbindet historische Architektur mit zeitgemäßer Ausstattung. Nach der umfassenden Kernsanierung entsteht ein repräsentatives Arbeitsumfeld in zentraler Lage. Im Erdgeschoss ...
keine Angabe
Preis
225 m²
Gesamtfläche
16
Moderne 2 Zimmer-Wohnung mit Terrasse im Herzen der ...
Wohnung
97332 Volkach
Zur Vermietung steht eine moderne 2-Zimmer-Wohnung mit Terrasse in der Hauptstraße in 97332 Volkach. Sie befindet sich im ersten Obergeschoss. Das Gebäude wurde 2015 umfassend saniert und auf Neubaustandard gebracht. ...
725 €
Kaltmiete (netto)
69 m²
Wohnfläche
2
Zimmer
12
Schöne 2,5 Zimmer-Wohnung mit gehobener Innenausstattun ...
Wohnung
74626 Bretzfeld
Diese moderne Neubau-Dachgeschosswohnung ist ein absolutes Highlight für jeden, der nach einem neuen Zuhause sucht. Mit 2,5 Räumen und einem Schlafzimmer sowie einem Badezimmer bietet die Wohnung alles, was man sich ...
800 €
Kaltmiete (netto)
65 m²
Wohnfläche
2,5
Zimmer