HALLEN.flaechen im Gewerbepark Leipzig-Airport mit ca. 548m²
immobilien.de Nr.: 9506803
Objektnummer: 413/G2/E2/Eh1
Mietpreis & Nebenkosten
| Miete für das Objekt | Auf Anfrage |
| Nebenkosten | Keine Angabe |
| Maklerprovision | provisionsfrei |
Wohnfläche, Grundstück & Bausubstanz
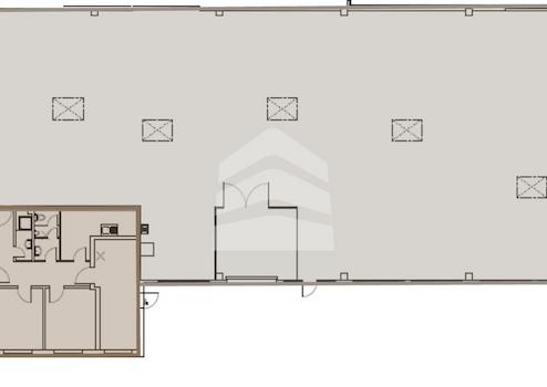
| Gesamtfläche | 548 m² |
| Fläche teilbar ab | 548 m² |
| Verfügbar ab | 01.06.26 |
Beschreibung der Immobilie
Der "Businesspark" Glesien wurde Mitte der 90iger Jahre als kleines Lager-und Logistikzentrum errichtet und in 2024 umfangreich saniert. Hier stehen kleinere Hallen mit anliegenden zweigeschossigen Büro- und Serviceflächen zur Anmietung zur Verfügung. Auf dem Gelände gibt es zahlreiche Stellplätze. Büro und Hallenflächen können entsprechend der Vorstellungen des Mieters und Verfügbarkeit zusammen oder getrennt angemietet und entsprechend ausgebaut werden. Die angebotene Hallenfläche von ca. 548m² verfügt über eine direkt angeschlossene ca. 79m² große Bürofläche welche hinzugemietet werden kann. Des Weiteren stehen im Objekt - je nach Bedarf - noch weitere Büroflächen zur Anmietung zur Verfügung.
Die Hallenflächen verfügen über folgende Ausstattungsmerkmale:
- Sektionaltor
- UK Binder von ca. 4,60m
- Verkehrslast von ca. 10kN/m²
- LED Beleuchtung
- Beheizbare Hallenfläche
Die Büroflächen verfügen über folgende Ausstattungsmerkmale:
- Datenverkabelung in Kabelkanälen
- Teeküche
- gefliester Sanitärbereich
- elektrischer Sonnenschutz in allen Büroräumen der Süd- und Westseite
- flexible Grundrissgestaltung durch Trockenbauweise
Die Hallenflächen verfügen über folgende Ausstattungsmerkmale:
- Sektionaltor
- UK Binder von ca. 4,60m
- Verkehrslast von ca. 10kN/m²
- LED Beleuchtung
- Beheizbare Hallenfläche
Die Büroflächen verfügen über folgende Ausstattungsmerkmale:
- Datenverkabelung in Kabelkanälen
- Teeküche
- gefliester Sanitärbereich
- elektrischer Sonnenschutz in allen Büroräumen der Süd- und Westseite
- flexible Grundrissgestaltung durch Trockenbauweise
Sonstige Informationen
Der Mietpreis richtet sich nach Ausstattung sowie Mietvertragslaufzeit und liegt für die Hallen- und Büroflächen zwischen 5,00 und 6,00 EUR/m². Gern unterbreiten wir Ihnen Ihr persönliches Mietangebot für Ihre gewünschte Ausstattung in Abstimmung mit dem Eigentümer.
Karte wird geladen...
Objektstandort
Ikarusstraße 10
04435 Schkeuditz
Lage & Infrastruktur
Objektstandort
Ikarusstraße 10
04435 Schkeuditz
Das ''Gewerbegebiet Glesien'' befindet sich in einem neu errichteten Gewerbegebiet am Flughafen Leipzig/Halle, ca. 1km nördlich der Flughafenlandebahn mit direkter Anbindung an das Autobahnkreuz A9/A14 (Schkeuditzer Kreuz). Dieser Standort eignet sich als hervorragender Verkehrsknotenpunkt für die Erschließung der Region Mitteldeutschlands. Nahe des Güterverkehrszentrum, der Werke von BMW und Porsche und des DHL-Frachtzentrums am Flughafen gelegen, ist dies auch ein idealer Standort für Logistikunternehmen und Automobilzulieferindustrie.
Kontaktanfrage senden
Über den Anbieter
BUERO.IMMOBILIEN GmbH & Co KG
Markt 9
04109 Leipzig
Kontakt
| Telefon | +49 341 5643000 |
| Website | www.buero-immobilien.com |
Ansprechpartner/in
Team Vermietung
Weitere Angebote des Anbieters
9
BUERO.flächen mit 430 m² mit Blick auf die THOMASKIRCHE ...
Büro / Praxen
04109 Leipzig
Das bis 1972 als Bankgebäude genutzte denkmalgeschützte Jugendstilhaus wurde umfangreich saniert und besticht durch seine historische Fassade und den direkten Blick auf die Thomaskirche. Durch ein repräsentatives ...
keine Angabe
Preis
15 €
Mietpreis pro m²
948 m²
Gesamtfläche
948 m²
Teilbar ab
3
Exclusive BUERO.flächen in direkter Innenstadtlage
Büro / Praxen
04109 Leipzig
Das bis 1972 als Bankgebäude genutzte denkmalgeschützte Jugendstilhaus wurde umfangreich saniert und besticht durch seine historische Fassade und den direkten Blick auf die Thomaskirche. Durch ein repräsentatives ...
keine Angabe
Preis
16 €
Mietpreis pro m²
1.797 m²
Gesamtfläche
519 m²
Teilbar ab
3
Exclusive BUERO.flächen in direkter Innenstadtlage
Büro / Praxen
04109 Leipzig
Das bis 1972 als Bankgebäude genutzte denkmalgeschützte Jugendstilhaus wurde umfangreich saniert und besticht durch seine historische Fassade und den direkten Blick auf die Thomaskirche. Durch ein repräsentatives ...
keine Angabe
Preis
16 €
Mietpreis pro m²
1.467 m²
Gesamtfläche
519 m²
Teilbar ab
3
Exclusive BUERO.flächen in direkter Innenstadtlage
Büro / Praxen
04109 Leipzig
Das bis 1972 als Bankgebäude genutzte denkmalgeschützte Jugendstilhaus wurde umfangreich saniert und besticht durch seine historische Fassade und den direkten Blick auf die Thomaskirche. Durch ein repräsentatives ...
keine Angabe
Preis
16 €
Mietpreis pro m²
1.037,61 m²
Gesamtfläche
519 m²
Teilbar ab
7
BUERO.flächen mit 330 m² mit Blick auf die THOMASKIRCHE ...
Büro / Praxen
04109 Leipzig
Das bis 1972 als Bankgebäude genutzte denkmalgeschützte Jugendstilhaus wurde umfangreich saniert und besticht durch seine historische Fassade und den direkten Blick auf die Thomaskirche. Durch ein repräsentatives ...
keine Angabe
Preis
15 €
Mietpreis pro m²
330 m²
Gesamtfläche
330 m²
Teilbar ab