Flachdachhalle, Büros
3.000 €
Kaltmiete (netto)
immobilien.de Nr.: 9493768
Objektnummer: 426434
Mietpreis & Nebenkosten
| Kaltmiete (netto) | 3.000 € |
| Nebenkosten | 550 € |
| Maklerprovision | keine Provision, courtagefrei |
Wohnfläche, Grundstück & Bausubstanz
| Gesamtfläche | 1.833 m² |
| Freifläche | 850 m² |
| Verfügbar ab | nach Absprache |
| Zustand | Gepflegt |
Energie
| Heizungsart | Zentralheizung |
| Energieträger/Befeuerung | Gas |
Beschreibung der Immobilie
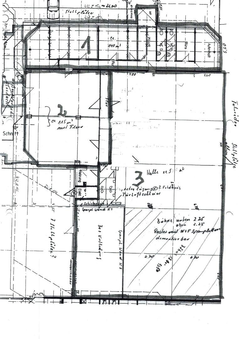
Flachdachhalle:
ca. 560 qm Fläche + ca. 156 qm zusätzliche Fläche durch Zwischenbühne
beheizbar
innenliegende Büroräume können eingebaut werden
Sektionaltor
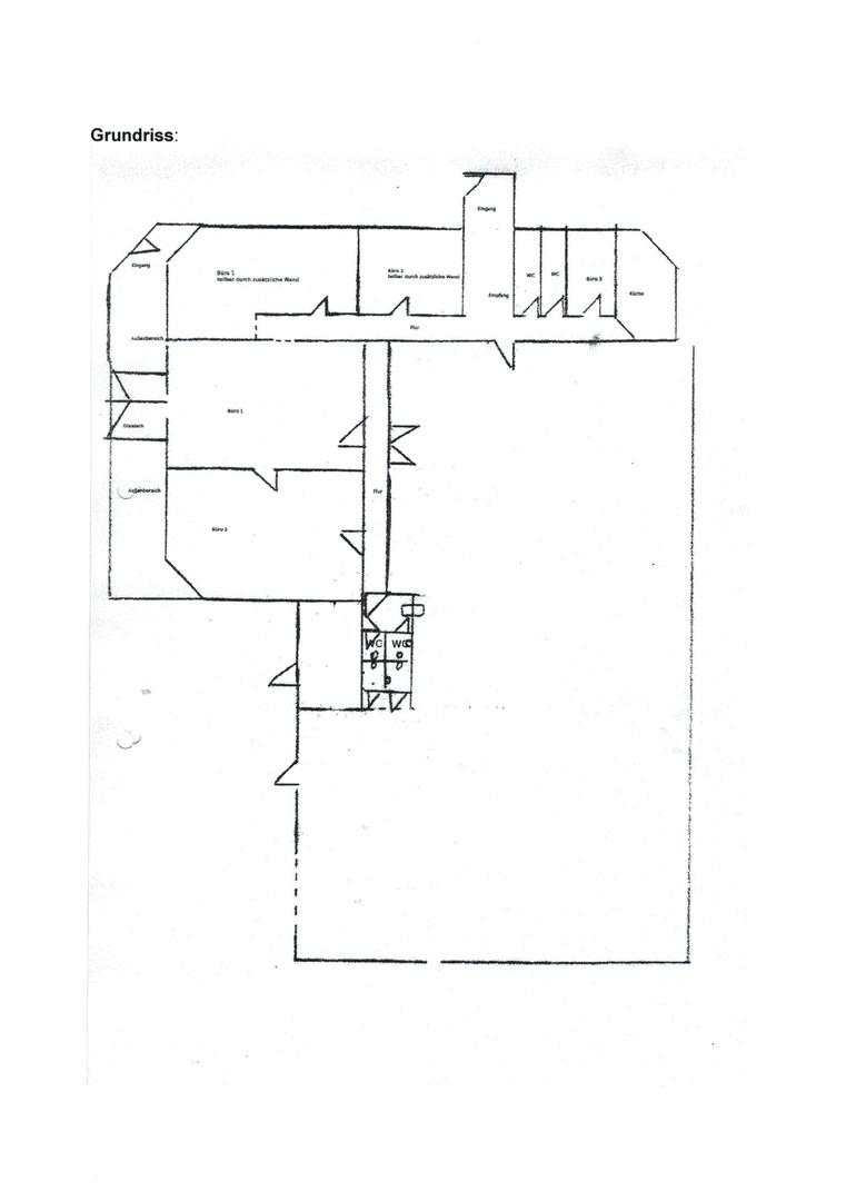
Büroflächen:
Büro 1
Büro 2
Büro 3
2 Ausstellungsräume (auch als Büros nutzbar)
Teeküche
3 WC-Räume
überdachte Terrasse
Außenanlage (ca. 850 qm):
große Anzahl an Parkplätzen
eingezäunter Hinterhof mit kleiner Garteninstallation und großem Tor
im Hinterhof weitere Parkmöglichkeiten
Die Flächen können auch in 3 verschiedene Mietobjekte aufgeteilt werden.
Ein Exposé wird zeitnah erstellt.
Der voraussichtliche frühestmögliche Mietbeginn ist der 01.07.2026.
ca. 560 qm Fläche + ca. 156 qm zusätzliche Fläche durch Zwischenbühne
beheizbar
innenliegende Büroräume können eingebaut werden
Sektionaltor
Büroflächen:
Büro 1
Büro 2
Büro 3
2 Ausstellungsräume (auch als Büros nutzbar)
Teeküche
3 WC-Räume
überdachte Terrasse
Außenanlage (ca. 850 qm):
große Anzahl an Parkplätzen
eingezäunter Hinterhof mit kleiner Garteninstallation und großem Tor
im Hinterhof weitere Parkmöglichkeiten
Die Flächen können auch in 3 verschiedene Mietobjekte aufgeteilt werden.
Ein Exposé wird zeitnah erstellt.
Der voraussichtliche frühestmögliche Mietbeginn ist der 01.07.2026.
Ausstattungsmerkmale
| Anzahl der Etagen im Haus | 1 |
| Inserat befindet sich im Stockwerk | 0 |
| Balkone | 0 |
| Terrassen | 1 |
Terrasse, Gäste-WC
Bemerkungen:
Klimaanlage
Sektionaltor
Hochwertige Bodenbeläge (Vinyl, Fliesen)
Umfangreiche Lichtinstallationen
Teeküche
Jalousetten zur Beschattung
Erweiterung der Lagerfläche durch eine Zwischenbühne um ca. 156 qm
die derzeitige Einrichtung kann größtenteils vom Vormieter (Regale, Büromöbel, Ausstellungsmöbel) nach Rücksprache übernommen werden
Bemerkungen:
Klimaanlage
Sektionaltor
Hochwertige Bodenbeläge (Vinyl, Fliesen)
Umfangreiche Lichtinstallationen
Teeküche
Jalousetten zur Beschattung
Erweiterung der Lagerfläche durch eine Zwischenbühne um ca. 156 qm
die derzeitige Einrichtung kann größtenteils vom Vormieter (Regale, Büromöbel, Ausstellungsmöbel) nach Rücksprache übernommen werden
Sonstige Informationen
Heizungsart: Zentralheizung
Energieträger: Gas
Energieausweis nicht vorhanden
Wissing Immobilien GmbH & Co. KG
Nelly-Sachs-Straße 7, 48282 Emsdetten
Ust-IdNr.: DE240405969 Steuer Nr. 311/5930/2158
Handelsregister: Amtsgericht Steinfurt, Abt. A Nr. 4930
Geschäftsführung: persönlich haftende Gesellschafterin: Wissing Verwaltungsgesellschaft mbH
Vertreten durch den Geschäftsführer: Franz-Josef Wissing, Abt. B Nr. 3997
Makleranfragen nicht erwünscht. Nach § 7 UWG sind unaufgeforderte Kontaktaufnahmen durch Makler ohne ausdrückliche Einwilligung des Empfängers verboten!
ohne-makler (OM) ist weder Anbieter noch Vermittler der Immobilie. OM betreibt eine Plattform für Immobilieneigentümer, die unter anderem die gleichzeitige Veröffentlichung einzelner Inserate auf mehreren Immobilienportalen ermöglicht. Die Inhalte dieser Inserate werden ausschließlich von Dritten verantwortet. Für die Richtigkeit, Vollständigkeit oder Rechtmäßigkeit der Angaben übernimmt OM keine Haftung. Hinweise auf mögliche Rechtsverstöße können jederzeit gemeldet werden und werden nach Prüfung umgehend bearbeitet.
Energieträger: Gas
Energieausweis nicht vorhanden
Wissing Immobilien GmbH & Co. KG
Nelly-Sachs-Straße 7, 48282 Emsdetten
Ust-IdNr.: DE240405969 Steuer Nr. 311/5930/2158
Handelsregister: Amtsgericht Steinfurt, Abt. A Nr. 4930
Geschäftsführung: persönlich haftende Gesellschafterin: Wissing Verwaltungsgesellschaft mbH
Vertreten durch den Geschäftsführer: Franz-Josef Wissing, Abt. B Nr. 3997
Makleranfragen nicht erwünscht. Nach § 7 UWG sind unaufgeforderte Kontaktaufnahmen durch Makler ohne ausdrückliche Einwilligung des Empfängers verboten!
ohne-makler (OM) ist weder Anbieter noch Vermittler der Immobilie. OM betreibt eine Plattform für Immobilieneigentümer, die unter anderem die gleichzeitige Veröffentlichung einzelner Inserate auf mehreren Immobilienportalen ermöglicht. Die Inhalte dieser Inserate werden ausschließlich von Dritten verantwortet. Für die Richtigkeit, Vollständigkeit oder Rechtmäßigkeit der Angaben übernimmt OM keine Haftung. Hinweise auf mögliche Rechtsverstöße können jederzeit gemeldet werden und werden nach Prüfung umgehend bearbeitet.
Karte wird geladen...
Objektstandort
Im Hagenkamp 13
48282 Emsdetten
- Nordrhein-Westfalen
Lage & Infrastruktur
Objektstandort
Im Hagenkamp 13
48282 Emsdetten
- Nordrhein-Westfalen
Gewerbegebiet, aber sehr ruhig und stadtnah – Top-Lage
optimale Verkehrsanbindung (60 m zur B481)
700 m zum Bahnhof und Busbahnhof
Emsdetten ist eine Kleinstadt durch die die Hauptverkehrsader von Rheine nach Münster verläuft. Die Auffahrten zur A 1 in Greven sowie in Ladbergen sind vom Standort leicht zu erreichen.
Infrastruktur (im Umkreis von 5 km):
Apotheke, Lebensmittel-Discount, Allgemeinmediziner, Kindergarten, Grundschule, Hauptschule, Realschule, Gymnasium, Öffentliche Verkehrsmittel
optimale Verkehrsanbindung (60 m zur B481)
700 m zum Bahnhof und Busbahnhof
Emsdetten ist eine Kleinstadt durch die die Hauptverkehrsader von Rheine nach Münster verläuft. Die Auffahrten zur A 1 in Greven sowie in Ladbergen sind vom Standort leicht zu erreichen.
Infrastruktur (im Umkreis von 5 km):
Apotheke, Lebensmittel-Discount, Allgemeinmediziner, Kindergarten, Grundschule, Hauptschule, Realschule, Gymnasium, Öffentliche Verkehrsmittel
Kontaktanfrage senden
Über den Anbieter
OM PropTech GmbH
Humboldtstraße 25a
21509 Glinde
Kontakt
| Telefon | - |
| Fax | - |
| Website | www.ohne-makler.net |
Ansprechpartner/in
Angebot von Franz-Josef Wissing
Weitere Angebote des Anbieters
4
Gewerbeeinheit für Praxis oder Ladengeschäft
Büro / Praxen
80639 München
Das Objekt liegt im belebten Viertel Neuhausen-Nymphenburg und punktet als Nachbarviertel der hippen Maxvorstadt mit gemütlichen Ecken zum Wohnen, traditionsreichen Geschäften, guten Restaurants und einem ...
380.000 €
Kaufpreis
42 m²
Gesamtfläche
29
Doppelhaushälfte mit großem Grundstück in wunderbarer ...
Haus
63071 Offenbach
🏡 Zuhause ankommen. Platz haben. Durchatmen. Diese liebevoll renovierte Doppelhaushälfte in Offenbach bietet auf 120 m² Wohnfläche und 600 m² Grundstück genau das, was Familien suchen: Raum, Garten, Ruhe – und dennoch ...
639.000 €
Kaufpreis
120 m²
Wohnfläche
5
Zimmer
9
Zwei-Zimmer-Wohnung, EBK, Klima, Abstellraum
Wohnung
38300 Wolfenbüttel
Zum Erstbezug steht die frisch sanierte Dachgeschosswohnung in Wolfenbüttel. Die Wohnung wurde umfangreich saniert. Zur Ausstattung und im Mietpreis enthalten ist eine moderne Einbauküche sowie zwei Klima-Splittanlagen ...
580 €
Kaltmiete (netto)
40 m²
Wohnfläche
2
Zimmer
19
Exklusive 2-Zimmer-Wohnung, Erstbezug nach Sanierung ...
Wohnung
90762 Fürth
Diese kernsanierte 2-Zimmer-Wohnung vereint modernes Design mit maximalem Wohnkomfort. Auf ca. 50 m² Wohnfläche erwartet Mieter:innen ein hochwertiger Erstbezug nach Sanierung. Hinweis zur Möblierung – Übernahme der ...
790 €
Kaltmiete (netto)
50 m²
Wohnfläche
2
Zimmer
12
Moderne Neubauwohnungen mit Küche im Erstbezug – ...
Wohnung
33609 Bielefeld
Wir freuen uns Ihnen zum Erstbezug in ruhiger und dennoch stadtnaher Lage eine Neubauwohnung zur Miete anbieten zu können. Kürzlich wurde der hochwertige Neubau mit insgesamt 6 hellen, barrierefreien Wohneinheiten ...
1.130 €
Kaltmiete (netto)
79 m²
Wohnfläche
3,5
Zimmer