PREISHAMMER - SUPERBÜRO - PROVISIONSFREI

immobilien.de Nr.: 9477486 Objektnummer: 2767
eingang2
eingang
Südansicht
bsp. innen
konfi1
großraum
bsp. innen 2
Teeküche
i2
1
Ansicht (6)
Ansicht (5)
Ansicht (7)
Ansicht (8)
Ansicht (1)
Ansicht (9)
Ansicht (2)
Ansicht (3)
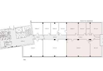
GR 3.OG 283 m2
GR 1.OG 93 m²

Mietpreis & Nebenkosten

Miete für das Objekt Auf Anfrage
Nebenkosten 2,5 €
Mietpreis pro m² 12,8 €

Wohnfläche, Grundstück & Bausubstanz

Bürofläche 283 m²
Baujahr 1973
Verfügbar ab kurzfristig

Energie

Energieausweistyp Verbrauch
Ausstellungsdatum 01. 02. 2017
Gültig bis 01.02.2027
Heizungsart Zentralheizung
Wesentlicher Energieträger Fernwärme
Energieträger/Befeuerung Fernwärme

Beschreibung der Immobilie

Attraktives Bürogebäude mit schönem Entrée, Personen- und Lastenaufzug, Treppenhaus und Fassade neu renoviert, helle lichtdurchflutete Räume durch deckenhohe Fenster. In jedem Stockwerk befindet sich eine Teeküche – zusätzlich befindet sich im 4. Stock eine Cafeteria mit eingebauten Herden, Kühlschränken und Mikrowellenherden. Diese Cafeteria kann gegen Mitbeteiligung an den Reinigungskosten von den Mietern mitgenutzt werden. Im Erdgeschoss befindet sich eine ständig besetzte Zentrale, die Besucher gerne weiterleitet. Die Trennwände der einzelnen Büroabteile sind aus Rigips und können ggf. den Bedürfnissen der Mieter angepasst werden. TG- Stellplätze und Freistellplätze anmietbar.

Ausstattungsmerkmale

Inserat befindet sich im Stockwerk 3
 
Treppenhaus und Fassade neu renoviert - 2 Personenaufzüge - 1 Lastenaufzug (Türhöhe 2m, Innenhöhe 2,3m, Tiefe 2,4m, Breite1,3m, Traglast 1,5 to) - außenliegender Sonnenschutz mit Sensorsteuerung - attraktive Cafeteria mit separatem Raucherzimmer im 4.OG - bap-gerechte Beleuchtung - CAT - Verkabelung mit klimatisiertem Serverraum - hochwertiger textiler Bodenbelag -Zugangskontrolle durch Chipsteuerung individuell steuerbar oder 7 Tage 24 Stunden

Sonstige Informationen

Noch nicht die Ideallösung? Bitte kontaktieren Sie uns unter info@hdic.de oder telefonisch unter 0171 - 380 26 49 und schildern Sie uns Ihr Suchprofil. Aus über 800 Objekten in München und Umland finden wir Ihr Wunschbüro - professionell, schnell, zielführend und diskret.
Karte wird geladen...
Objektstandort
81379 München

Lage & Infrastruktur

Obersendling, in attraktiver Ecklage, sehr gute Infrastruktur, REWE- und LIDL-Markt direkt angrenzend, diverse Fachmärkte, Autohäuser, Banken, mehrere Hotel s und alle Geschäfte des täglichen Bedarfs in unmittelbarer Nähe, Kantine/Cafeteria im Gebäude, U-Bahn-Station "Machtlfinger Str." nur 250 m entfernt; ausgezeichnete Verkehrsanbindung an die Autobahnen Lindau, Garmisch und Salzburg.

Kontaktanfrage senden

Über den Anbieter

Harald Dördrechter Immobilien Consulting
Schluchtweg 23
82340 Feldafing
Kontakt
Telefon 08157 - 92 47 72
Fax 08157 - 92 47 71
Website www.hdic.de
Ansprechpartner/in
Herr Harald Dördrechter
Weitere Anbieterdaten

Weitere Angebote des Anbieters

CENTRAL TOWER - TRAUMBÜROS MIT BESTEN AUSSICHTEN ...

Büro / Praxen
80339 München
Gemeinsam mit dem gegenüber gelegenen Mercedes-Benz-Hochhaus prägt der Central - Tower heute das Stadtbild der westlichen City. Nicht nur wegen seiner bemerkenswerten Architektur ist der Central - Tower ein attraktiver ...
keine Angabe
Preis
23,5 €
Mietpreis pro m²
5000 m²
Gesamtfläche
279 m²
Teilbar ab

CENTRAL TOWER - TRAUMBÜROS MIT BESTEN AUSSICHTEN ...

Büro / Praxen
80339 München
Gemeinsam mit dem gegenüber gelegenen Mercedes-Benz-Hochhaus prägt der Central - Tower heute das Stadtbild der westlichen City. Nicht nur wegen seiner bemerkenswerten Architektur ist der Central - Tower ein attraktiver ...
keine Angabe
Preis
28,5 €
Mietpreis pro m²
1107 m²
Gesamtfläche

Exklusives Bürohaus an der Theresienhöhe: ...

Büro / Praxen
80339 München
Das im Jahre 2002 erbaute Bürohaus besticht durch Symmetrie und architektonische Details. Es verfügt über 7 Geschosse und ein zweigeschossiges Untergeschoss. Die Natursteinfassade und bodentiefen Metallfenster ...
keine Angabe
Preis
25 €
Mietpreis pro m²
202,95 m²
Gesamtfläche

TRAUMBÜROS AUF DER THERESIENHÖHE - provisionsfrei

Büro / Praxen
80339 München
Spektakuläres Geschäftsensemble, das sich durch durch eine hochwertige und unverwechselbare Architektur auszeichnet und zudem eine umfassende Infrastruktur im Hauptgebäude A mit Empfangs- und Sicherheitsdienst und ...
keine Angabe
Preis
32 €
Mietpreis pro m²
4010 m²
Gesamtfläche
257 m²
Teilbar ab

SUNRISE - Business in Bestform - provisionsfrei

Büro / Praxen
82008 Unterhaching
Sunrise im Münchner Süden hat sich als attraktive Business-Adresse etabliert – citynah, naturnah und bestens erreichbar. Die moderne Architektur mit variierenden Gebäudehöhen, viel Grün, Dachgärten und einem ...
keine Angabe
Preis
14,5 €
Mietpreis pro m²
1.721 m²
Gesamtfläche
275 m²
Teilbar ab