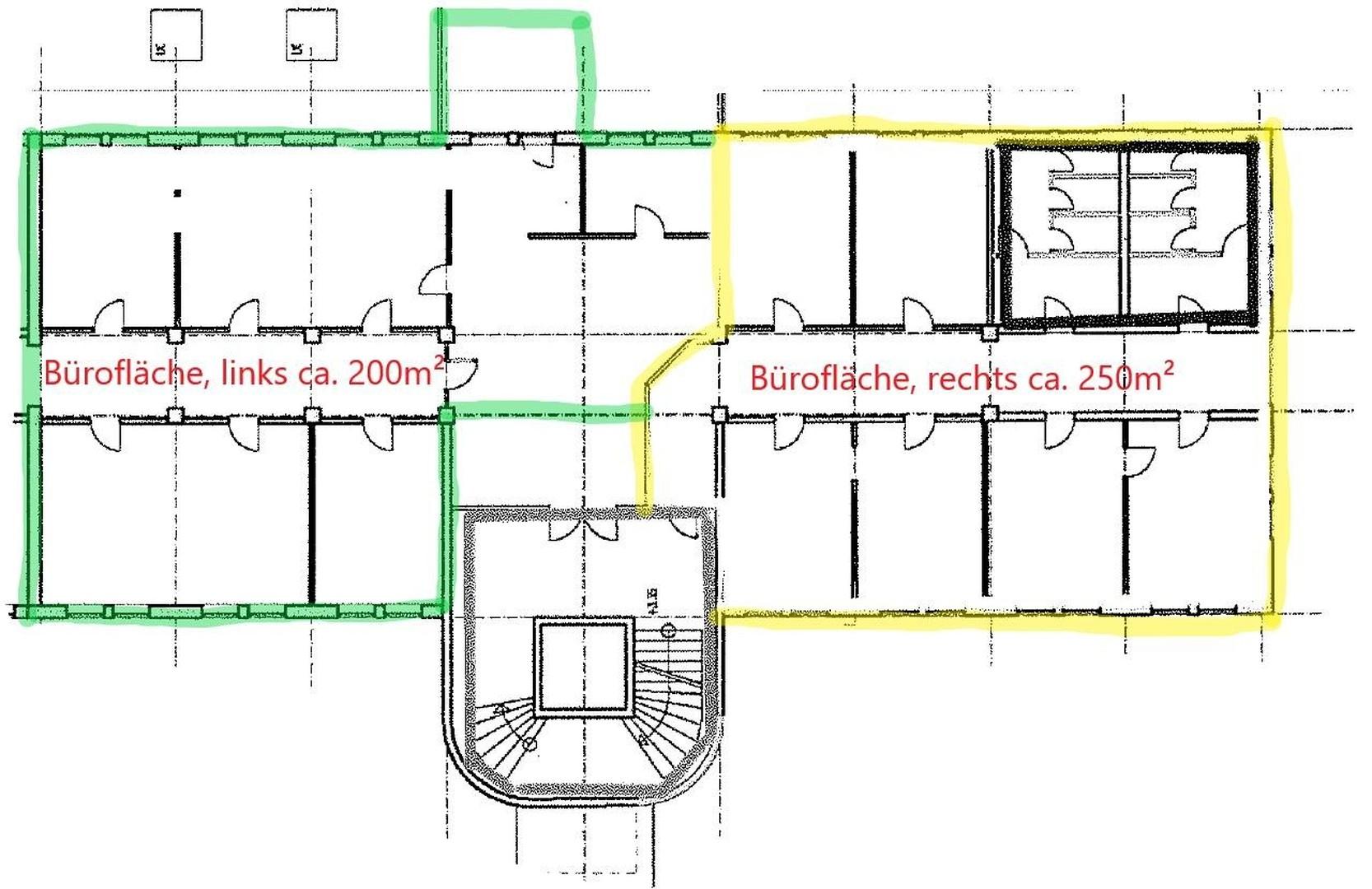
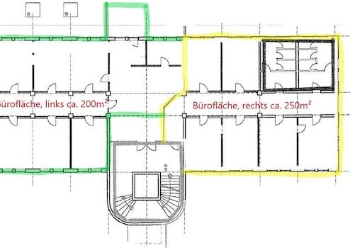
Büro-/Geschäftsräume zwischen 18 und 450m² ab 9€/m², barrierefrei
immobilien.de Nr.: 9442841
Objektnummer: 403048
Mietpreis & Nebenkosten
| Miete für das Objekt | Auf Anfrage |
| Nebenkosten | Keine Angabe |
| Maklerprovision | keine Provision, courtagefrei |
Wohnfläche, Grundstück & Bausubstanz
| Gesamtfläche | 450 m² |
| Bürofläche | 450 m² |
| Baujahr | 1995 |
| Verfügbar ab | sofort |
| Zustand | Gepflegt |
Energie
| Energieausweistyp | Verbrauch |
| Heizungsart | Zentralheizung |
| Energieträger/Befeuerung | Gas |
Beschreibung der Immobilie
Sie suchen lichtdurchflutete, flexibel gestaltbare Räume für Ihr Büro, Ihre Praxis oder Ihr Unternehmen?
Großzügige Gewerbeflächen in einem gepflegten Geschäftshaus in Reilingen bieten Ihnen ideale Voraussetzungen für modernes Arbeiten – hell, ruhig und verkehrsgünstig gelegen.
Es stehen Räume in unterschiedlichen Größen von 18m² bis zu 450m² ab 9 €/m² Kaltmiete zur Verfügung. Eine individuelle Gestaltung und Aufteilung ist möglich.
Großzügige Gewerbeflächen in einem gepflegten Geschäftshaus in Reilingen bieten Ihnen ideale Voraussetzungen für modernes Arbeiten – hell, ruhig und verkehrsgünstig gelegen.
Es stehen Räume in unterschiedlichen Größen von 18m² bis zu 450m² ab 9 €/m² Kaltmiete zur Verfügung. Eine individuelle Gestaltung und Aufteilung ist möglich.
Ausstattungsmerkmale
| Anzahl der Etagen im Haus | 2 |
| Küche | Einbauküche |
| Boden | Fliesen, Teppich, Kunststoff |
| Balkone | 1 |
| Terrassen | 0 |
| Fahrstuhl | |
| Barrierefrei |
Balkon, Fahrstuhl, Einbauküche, Gäste-WC, Barrierefrei, Teppichboden, Fliesen, Sonstiges (s. Text)
Bemerkungen:
•Barrierefreier Zugang: Großzügiger Aufzug & geräumiges Treppenhaus
•Flexible Nutzung: Ideal für Büros, Agenturen, Praxen oder Kanzleien
•Individuelle Gestaltung: Raumaufteilung und Renovierung in Absprache
•Größe nach Bedarf: Räume in unterschiedlichen Größen von 18m² bis 450m² verfügbar
•Zustand: teilweise klimatisiert, renoviert oder unrenoviert
•Terrasse: Kleine Außenfläche – z. B. für Pausen oder Meetings im Freien
•Sozialräume sowie getrennte Toiletten und Duschmöglichkeiten
•Parkplätze: Außenstellplätze & Tiefgaragenplätze auf Wunsch verfügbar
•Gute Lage: Verkehrsgünstige Anbindung, zentrale Lage in Reilingen
Bemerkungen:
•Barrierefreier Zugang: Großzügiger Aufzug & geräumiges Treppenhaus
•Flexible Nutzung: Ideal für Büros, Agenturen, Praxen oder Kanzleien
•Individuelle Gestaltung: Raumaufteilung und Renovierung in Absprache
•Größe nach Bedarf: Räume in unterschiedlichen Größen von 18m² bis 450m² verfügbar
•Zustand: teilweise klimatisiert, renoviert oder unrenoviert
•Terrasse: Kleine Außenfläche – z. B. für Pausen oder Meetings im Freien
•Sozialräume sowie getrennte Toiletten und Duschmöglichkeiten
•Parkplätze: Außenstellplätze & Tiefgaragenplätze auf Wunsch verfügbar
•Gute Lage: Verkehrsgünstige Anbindung, zentrale Lage in Reilingen
Sonstige Informationen
Heizungsart: Zentralheizung
Energieträger: Gas
HERAUSGEBER
SPGI Grundstücks GmbH
Wilhelmstraße 78
68799 Reilingen
Fon +49 (0)6205 977496
Fax +49 (0)6205 977468
spgi@schaumaplast.de
Angaben gemäß § 5 DDG (Gesetz über Nutzung von Telediensten)
Geschäftsführer: Bernhard Hauck, Markus Hoffmann
Sitz der Gesellschaft ist Reilingen.
Eingetragen beim Registergericht Mannheim HRB 753795
Umsatzsteueridentifikationsnummer: DE 453291862
Makleranfragen nicht erwünscht. Nach § 7 UWG sind unaufgeforderte Kontaktaufnahmen durch Makler ohne ausdrückliche Einwilligung des Empfängers verboten!
ohne-makler (OM) ist weder Anbieter noch Vermittler der Immobilie. OM betreibt eine Plattform für Immobilieneigentümer, die unter anderem die gleichzeitige Veröffentlichung einzelner Inserate auf mehreren Immobilienportalen ermöglicht. Die Inhalte dieser Inserate werden ausschließlich von Dritten verantwortet. Für die Richtigkeit, Vollständigkeit oder Rechtmäßigkeit der Angaben übernimmt OM keine Haftung. Hinweise auf mögliche Rechtsverstöße können jederzeit gemeldet werden und werden nach Prüfung umgehend bearbeitet.
Energieträger: Gas
HERAUSGEBER
SPGI Grundstücks GmbH
Wilhelmstraße 78
68799 Reilingen
Fon +49 (0)6205 977496
Fax +49 (0)6205 977468
spgi@schaumaplast.de
Angaben gemäß § 5 DDG (Gesetz über Nutzung von Telediensten)
Geschäftsführer: Bernhard Hauck, Markus Hoffmann
Sitz der Gesellschaft ist Reilingen.
Eingetragen beim Registergericht Mannheim HRB 753795
Umsatzsteueridentifikationsnummer: DE 453291862
Makleranfragen nicht erwünscht. Nach § 7 UWG sind unaufgeforderte Kontaktaufnahmen durch Makler ohne ausdrückliche Einwilligung des Empfängers verboten!
ohne-makler (OM) ist weder Anbieter noch Vermittler der Immobilie. OM betreibt eine Plattform für Immobilieneigentümer, die unter anderem die gleichzeitige Veröffentlichung einzelner Inserate auf mehreren Immobilienportalen ermöglicht. Die Inhalte dieser Inserate werden ausschließlich von Dritten verantwortet. Für die Richtigkeit, Vollständigkeit oder Rechtmäßigkeit der Angaben übernimmt OM keine Haftung. Hinweise auf mögliche Rechtsverstöße können jederzeit gemeldet werden und werden nach Prüfung umgehend bearbeitet.
Karte wird geladen...
Objektstandort
Wilhelmstraße 78
68799 Reilingen
- Baden-Württemberg
Lage & Infrastruktur
Objektstandort
Wilhelmstraße 78
68799 Reilingen
- Baden-Württemberg
Die Immobilie befindet sich in zentraler ruhiger Lage in Reilingen. Der Standort bietet eine gute Verkehrsanbindung zwischen A5 (6 km, 7 Minuten) und A6 (11 km, 10 Minuten) und ist mit dem Auto und mit öffentlichen Verkehrsmitteln gut zu erreichen. In der Umgebung befinden sich zahlreiche Geschäfte der Nahversorgung, Dienstleister und gastronomische Angebote.
Infrastruktur (im Umkreis von 5 km):
Apotheke, Lebensmittel-Discount, Allgemeinmediziner, Kindergarten, Grundschule, Gesamtschule, Öffentliche Verkehrsmittel
Infrastruktur (im Umkreis von 5 km):
Apotheke, Lebensmittel-Discount, Allgemeinmediziner, Kindergarten, Grundschule, Gesamtschule, Öffentliche Verkehrsmittel