BUERO.flächen mit 1.422 m² über 2 Geschosse direkt im Zentrum
14
Zimmer
immobilien.de Nr.: 9426741
Objektnummer: 202/G1/E7/Eh1
Preise & Kosten
| Miete für das Objekt | Auf Anfrage |
| Nebenkosten | keine Angabe |
| Mietpreis pro m² | 17,5 € |
| Maklerprovision | provisionsfrei |
Größe & Zustand
| Bürofläche | 1.422 m² |
| Bürofläche | 650 m² |
| Fläche teilbar ab | 650 m² |
| Zimmer | 14 |
| Verfügbar ab | keine Angabe |
Objektbeschreibung
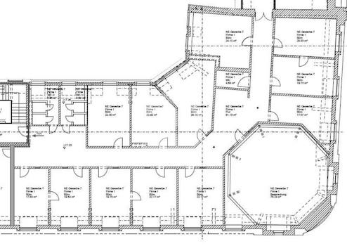
Der Reichshof mit seiner markanten, historischen Fassade, befindet sich in Mitten der Fußgängerzone an der Reichsstraße Ecke Grimmaische Straße, gegenüber von Galeria Kaufhof. Die Büroetagen auf den Obergeschossen werden über den Eingang Reichsstraße oder Grimmaische Straße über Aufzuganlagen und Treppenhäuser erschlossen. Im Gebäude haben sich sowohl in den Büro- als auch in den Einzelhandelsflächen im Erdgeschoss bereits viele renommierte Unternehmen angesiedelt. Im Objekt stehen folgende Flächen zur Anmietung zur Verfügung:
3. Obergeschoss mit ca. 862 m²
4. Oberschoss mit ca. 560 m²
Die freien Flächen sind bereits ausgebaut, können jedoch entsprechend dem Raumprofil des Mieters umgebaut werden. Für Kunden und Besucher stehen zahlreiche PKW - Stellplätze in den öffentlichen Tiefgaragen der Leipziger Innenstadt zur Verfügung.
3. Obergeschoss mit ca. 862 m²
4. Oberschoss mit ca. 560 m²
Die freien Flächen sind bereits ausgebaut, können jedoch entsprechend dem Raumprofil des Mieters umgebaut werden. Für Kunden und Besucher stehen zahlreiche PKW - Stellplätze in den öffentlichen Tiefgaragen der Leipziger Innenstadt zur Verfügung.
Sonstige Informationen
Der Mietpreis betragt zwischen 17,50 - 18,50 EUR/m² und richtet sich je nach Ausstattung, Lage im Gebäude und Vertragslaufzeit.
Lage des Objektes
Die zentrale Lage und das gewachsene, vielfältige Umfeld haben die historische Innenstadt zu einer der beliebtesten Geschäftsstandorte werden lassen. Alle wichtigen Institutionen, wie das Neue Rathaus, die verschiedensten Banken und die Leipziger Universität sind von hier aus innerhalb weniger Minuten zu erreichen.
