Exklusive Wohnyacht mit Liegeplatz auf Usedom - Premium Hausboot, Ferienimmobilie - Rendite 7%
499.000 €
Kaufpreis
58 m²
Wohnfläche
immobilien.de Nr.: 9425881
Objektnummer: 421685
Kaufpreis
| Kaufpreis | 499.000 € |
| Maklerprovision | keine Provision, courtagefrei |
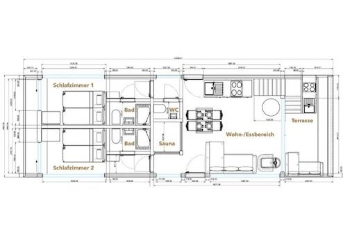
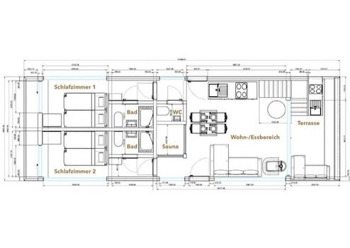
Wohnfläche, Grundstück & Bausubstanz
| Wohnfläche | 58 m² |
| Gesamtfläche | 75 m² |
| Baujahr | 2026 |
| Verfügbar ab | nach Absprache |
| Zustand | Erstbezug |
Energie
| Heizungsart | Fußbodenheizung |
| Energieträger/Befeuerung | Solar |
Beschreibung der Immobilie
Sun Island 58 - die exklusive Wohnyacht (Premium-Hausboot) mit Liegeplatz auf Usedom:
- nachhaltig, komfortabel, autark, charterfertig -
Erfüllen Sie sich den Traum vom Leben auf dem Wasser: Wir bieten Ihnen eine hochwertige Stahl-Wohnyacht (Made in Germany) der Kategorie C (küstennah) – voll charterfertig ausgestattet und ideal für private Nutzung oder professionelle Vercharterung.
Nutzen Sie den IAB und erzielen Sie eine sehr hohe Rendite. #Steueroptimierung #hoheRendite #Kapitalanlage #Eigennutzen
Der Stahlrumpf von 5x15m kann auch mit weiteren Aufbau-Modellen ausgeführt werden (Nautic 55 und Calimero 43).
- nachhaltig, komfortabel, autark, charterfertig -
Erfüllen Sie sich den Traum vom Leben auf dem Wasser: Wir bieten Ihnen eine hochwertige Stahl-Wohnyacht (Made in Germany) der Kategorie C (küstennah) – voll charterfertig ausgestattet und ideal für private Nutzung oder professionelle Vercharterung.
Nutzen Sie den IAB und erzielen Sie eine sehr hohe Rendite. #Steueroptimierung #hoheRendite #Kapitalanlage #Eigennutzen
Der Stahlrumpf von 5x15m kann auch mit weiteren Aufbau-Modellen ausgeführt werden (Nautic 55 und Calimero 43).
Ausstattungsmerkmale
| Küche | Einbauküche |
| Bad | Dusche |
| Balkone | 1 |
| Terrassen | 1 |
Terrasse, Dachterrasse, Duschbad, Sauna, Einbauküche, Gäste-WC, Kamin
Bemerkungen:
Highlights auf einen Blick:
- Sauna, Kamin, En-Suite-Bäder
- Nachhaltiger Stahlrumpf und robuste Stahlstruktur des Aufbaus für eine lebenslange wartungsarme Haltbarkeit
- Exklusive, strapazierfähige Innenausstattung für langjährige Nutzung
- BIO-Kläranlage & Trinkwasseraufbereitung – autark und umweltfreundlich
- Heizung & Klimaanlage mit moderner Wärmepumpentechnik
- Leiser kraftvoller Elektroantrieb mit 2x 16,4 KW Leistung (auf 48V Basis)
- Großzügiger Batteriespeicher mit hoher Kapazität: Ideal für komfortables Wohnen, Ganzjahresnutzung und Charterbetrieb
Bemerkungen:
Highlights auf einen Blick:
- Sauna, Kamin, En-Suite-Bäder
- Nachhaltiger Stahlrumpf und robuste Stahlstruktur des Aufbaus für eine lebenslange wartungsarme Haltbarkeit
- Exklusive, strapazierfähige Innenausstattung für langjährige Nutzung
- BIO-Kläranlage & Trinkwasseraufbereitung – autark und umweltfreundlich
- Heizung & Klimaanlage mit moderner Wärmepumpentechnik
- Leiser kraftvoller Elektroantrieb mit 2x 16,4 KW Leistung (auf 48V Basis)
- Großzügiger Batteriespeicher mit hoher Kapazität: Ideal für komfortables Wohnen, Ganzjahresnutzung und Charterbetrieb
Sonstige Informationen
Heizungsart: Fußbodenheizung
Energieträger: Solar
Interesse geweckt? Gerne beantworten wir Ihre Fragen und beraten Sie persönlich zu Ausstattung, Nutzungsmöglichkeiten und Charterkonzepten.
Kontaktieren Sie uns – wir freuen uns auf Sie!
Makleranfragen nicht erwünscht. Nach § 7 UWG sind unaufgeforderte Kontaktaufnahmen durch Makler ohne ausdrückliche Einwilligung des Empfängers verboten!
ohne-makler (OM) ist weder Anbieter noch Vermittler der Immobilie. OM betreibt eine Plattform für Immobilieneigentümer, die unter anderem die gleichzeitige Veröffentlichung einzelner Inserate auf mehreren Immobilienportalen ermöglicht. Die Inhalte dieser Inserate werden ausschließlich von Dritten verantwortet. Für die Richtigkeit, Vollständigkeit oder Rechtmäßigkeit der Angaben übernimmt OM keine Haftung. Hinweise auf mögliche Rechtsverstöße können jederzeit gemeldet werden und werden nach Prüfung umgehend bearbeitet.
Energieträger: Solar
Interesse geweckt? Gerne beantworten wir Ihre Fragen und beraten Sie persönlich zu Ausstattung, Nutzungsmöglichkeiten und Charterkonzepten.
Kontaktieren Sie uns – wir freuen uns auf Sie!
Makleranfragen nicht erwünscht. Nach § 7 UWG sind unaufgeforderte Kontaktaufnahmen durch Makler ohne ausdrückliche Einwilligung des Empfängers verboten!
ohne-makler (OM) ist weder Anbieter noch Vermittler der Immobilie. OM betreibt eine Plattform für Immobilieneigentümer, die unter anderem die gleichzeitige Veröffentlichung einzelner Inserate auf mehreren Immobilienportalen ermöglicht. Die Inhalte dieser Inserate werden ausschließlich von Dritten verantwortet. Für die Richtigkeit, Vollständigkeit oder Rechtmäßigkeit der Angaben übernimmt OM keine Haftung. Hinweise auf mögliche Rechtsverstöße können jederzeit gemeldet werden und werden nach Prüfung umgehend bearbeitet.
Karte wird geladen...
Objektstandort
17454 Zinnowitz
- Mecklenburg-Vorpommern
Lage & Infrastruktur
Objektstandort
17454 Zinnowitz
- Mecklenburg-Vorpommern
Wir halten Ihnen einen attraktiven Liegeplatz auf der Sonneninsel Usedom (nahe Zinnowitz) bereit. Er ist für eine 12-monatige Ganzjahrescharter geeignet und befindet sich an der längsten Binnen-Seebrücke Deutschlands.
- Langfristig anmietbar (z. B. 10 Jahre)
- Voll ausgestattete Marina mit allen charterrelevanten Dienstleistungen vor Ort
Auf Wunsch übernehmen wir den Rundum-Service für Sie:
Vermarktung & Buchungsmanagement
Reinigung & Gästebetreuung
Technische Instandhaltung & Service
- Langfristig anmietbar (z. B. 10 Jahre)
- Voll ausgestattete Marina mit allen charterrelevanten Dienstleistungen vor Ort
Auf Wunsch übernehmen wir den Rundum-Service für Sie:
Vermarktung & Buchungsmanagement
Reinigung & Gästebetreuung
Technische Instandhaltung & Service
Kontaktanfrage senden
Über den Anbieter
OM PropTech GmbH
Humboldtstraße 25a
21509 Glinde
Kontakt
| Telefon | - |
| Fax | - |
| Website | www.ohne-makler.net |
Ansprechpartner/in
Angebot von Matthias Wittig
Weitere Angebote des Anbieters
45
Witten-Bommern: grosses Haus mit großem Grundstück zu ...
Haus
58452 Witten
Individuell ausgestattetes freistehendes Haus mit Fernblick, einem uneinsehbaren Innenhof und einem uneinsehbaren Grundstück mit einem großen Garten! Das Mietobjekt ist nur etwas für Gartenfreunde! Details werden nach ...
2.000 €
Kaltmiete (netto)
250 m²
Wohnfläche
8
Zimmer
27
Objekt Domblick 61, 53639 Königswinter Thomasberg WE 04 ...
Wohnung
53639 Königswinter
In 2018 stellten wir ein Mehrfamilienhaus in Königswinter Thomasberg fertig, das seit diesem Datum vermietet wird. Sämtliche Wohneinheiten werden von der Feldhoff Projekte GmbH + Co. KG als Eigentümerin vermietet und ...
1.240 €
Kaltmiete (netto)
94 m²
Wohnfläche
3
Zimmer
8
Ab sofort! Helle, ruhige 2-Zi-WHG in Sendling! Kein ...
Wohnung
81369 München
Prüfen Sie regelmäßig Ihren SPAM-Ordner wenn Sie eine Anfrage versenet haben, vielen Dank! Keine WG möglich - Durchgangszimmer! - Bad mit Wanne - Küchenzeile, offene Küche - Böden: Fliesenboden, Laminat - Zustand: ...
1.180 €
Kaltmiete (netto)
50 m²
Wohnfläche
2
Zimmer
6
Gewerbegrundstück in Top-Sichtlage bei Lüneburg ...
Grundstück
21339 Lüneburg
Zum Verkauf steht ein hochinteressantes Gewerbebaugrundstück mit einer Gesamtfläche von ca. 2.403 m² im etablierten und stark frequentierten Gewerbegebiet von Adendorf. Die Lage überzeugt durch ihre direkte ...
399.000 €
Kaufpreis
2.403 m²
Grundstücksfläche
26
Massive DHH in ruhiger Lage mit Blick auf die Natur
Haus
86706 Weichering OT Lichtenau
Die süd-westlich ausgerichtete Doppelhaushälfte in Massivbauweise, besticht durch ihre ruhige Lage, der tolle Ausblick auf die Felder sowie die Waldrandnähe lädt zum Verweilen ein. Ideal nicht nur für Hundebesitzer ...
539.000 €
Kaufpreis
125 m²
Wohnfläche
5
Zimmer