Büro / Lager / Studio - Erdgeschoß in zentraler Lage in Oederan zu vermieten
immobilien.de Nr.: 9421060
Objektnummer: 421257
Preise & Kosten
| Miete für das Objekt | Auf Anfrage |
| Nebenkosten | 85 € |
| Maklerprovision | keine Provision, courtagefrei |
| Kaution | 750 € |
Größe & Zustand
| Gesamtfläche | 63 m² |
| Bürofläche | 63 m² |
| Baujahr | 1900 |
| Verfügbar ab | 01.03.2026 |
| Zustand | Neuwertig |
Energie
| Energieausweistyp | Bedarfsausweis |
| Heizungsart | Zentralheizung |
| Energieträger/Befeuerung | Gas |
Objektbeschreibung
Vermieten helle Räume im Erdgeschoß eines komplett neu ausgebauten Hauses im Zentrum von Oederan (Kleine Kirchgasse - Fußgängerzone)
Geeignet für Büro, Praxis, Studio oder Lager
Viel Platz zum Realisieren der eigenen Geschäftsidee, für Hobby oder einfach nur als Abstellraum.
Sanitär- und Elektroinstallation neu in 2023
Heizung (Gas-Brennwert) neu in 2024
Glasfaser-Internet
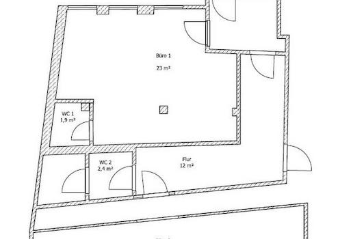
Die Fläche besteht aus 2 Büros
Büro 1 (Straßenseite) - 25 m²
Büro 2 (Hofseite) - 24m² zzgl. Flur nach Abstimmung
jeweils mit separatem WC
Büros haben Tageslicht und sind separat abschließbar
Einzeln oder als Gesamtfläche zu vermieten
Wir freuen uns auf Anfragen.
Verfügbar ab 01.03.2026
Geeignet für Büro, Praxis, Studio oder Lager
Viel Platz zum Realisieren der eigenen Geschäftsidee, für Hobby oder einfach nur als Abstellraum.
Sanitär- und Elektroinstallation neu in 2023
Heizung (Gas-Brennwert) neu in 2024
Glasfaser-Internet
Die Fläche besteht aus 2 Büros
Büro 1 (Straßenseite) - 25 m²
Büro 2 (Hofseite) - 24m² zzgl. Flur nach Abstimmung
jeweils mit separatem WC
Büros haben Tageslicht und sind separat abschließbar
Einzeln oder als Gesamtfläche zu vermieten
Wir freuen uns auf Anfragen.
Verfügbar ab 01.03.2026
Ausstattung
| Anzahl der Etagen im Haus | 1 |
| Inserat befindet sich im Stockwerk | 0 |
| Boden | Fliesen |
Gäste-WC, Fliesen, Sonstiges (s. Text)
Bemerkungen:
Kompletter Neuausbau in 2022-2025.
Bemerkungen:
Kompletter Neuausbau in 2022-2025.
Sonstige Informationen
Heizungsart: Zentralheizung
Energieträger: Gas
Makleranfragen nicht erwünscht. Nach § 7 UWG sind unaufgeforderte Kontaktaufnahmen durch Makler ohne ausdrückliche Einwilligung des Empfängers verboten!
ohne-makler (OM) ist weder Anbieter noch Vermittler der Immobilie. OM betreibt eine Plattform für Immobilieneigentümer, die unter anderem die gleichzeitige Veröffentlichung einzelner Inserate auf mehreren Immobilienportalen ermöglicht. Die Inhalte dieser Inserate werden ausschließlich von Dritten verantwortet. Für die Richtigkeit, Vollständigkeit oder Rechtmäßigkeit der Angaben übernimmt OM keine Haftung. Hinweise auf mögliche Rechtsverstöße können jederzeit gemeldet werden und werden nach Prüfung umgehend bearbeitet.
Energieträger: Gas
Makleranfragen nicht erwünscht. Nach § 7 UWG sind unaufgeforderte Kontaktaufnahmen durch Makler ohne ausdrückliche Einwilligung des Empfängers verboten!
ohne-makler (OM) ist weder Anbieter noch Vermittler der Immobilie. OM betreibt eine Plattform für Immobilieneigentümer, die unter anderem die gleichzeitige Veröffentlichung einzelner Inserate auf mehreren Immobilienportalen ermöglicht. Die Inhalte dieser Inserate werden ausschließlich von Dritten verantwortet. Für die Richtigkeit, Vollständigkeit oder Rechtmäßigkeit der Angaben übernimmt OM keine Haftung. Hinweise auf mögliche Rechtsverstöße können jederzeit gemeldet werden und werden nach Prüfung umgehend bearbeitet.
Lage des Objektes
Reihenhaus im Zentrum von Oederan in Fußgängerzone. Guter Zugang - Erdgeschoß.
Parken kostenfrei (tagsüber teilweise mit Parkuhr) in unmittelbarer Umgebung.
Bushaltestelle in 50m Entfernung.
Infrastruktur (im Umkreis von 5 km):
Apotheke, Lebensmittel-Discount, Allgemeinmediziner, Kindergarten, Grundschule, Gesamtschule, Öffentliche Verkehrsmittel
Parken kostenfrei (tagsüber teilweise mit Parkuhr) in unmittelbarer Umgebung.
Bushaltestelle in 50m Entfernung.
Infrastruktur (im Umkreis von 5 km):
Apotheke, Lebensmittel-Discount, Allgemeinmediziner, Kindergarten, Grundschule, Gesamtschule, Öffentliche Verkehrsmittel
