Repräsentative Büroflächen provisionsfrei zur Miete. Moderne Ausstattung, Klimatisierung
immobilien.de Nr.: 9416486
Objektnummer: 1706
Preise & Kosten
| Kaltmiete | 0 € |
| Nebenkosten | keine Angabe |
| Mietpreis pro m² | 14,5 € |
| Stellplatz Tiefgarage Miete | 60 € |
Größe & Zustand
| Gesamtfläche | 23.048,81 m² |
| Bürofläche | 1.466 m² |
| Gastrofläche | 592 m² |
| Fläche teilbar ab | 620 m² |
| Baujahr | 1999 |
| Verfügbar ab | kurzfristig |
Energie
| Heizungsart | Zentralheizung |
| Energieträger/Befeuerung | Gas |
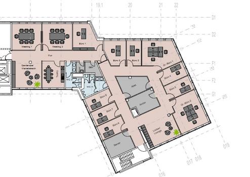
Objektbeschreibung
Exklusiver Büropark - so hochwertig wie das Konzept ist auch die Ausstattung des Objektes: attraktive Fassade aus verspiegelten Glas-, kunststoffbeschichteten Aluminium - und hellen Sandsteinelementen. Repräsentativer Eingangsbereich am großzügig verglasten Tower, zwei separate Eingangsbereiche mit leistungsfähigen Personenaufzügen und einem Windfang mit automatischen Doppeltüren. Der offen gestaffelte Grundriss des Gebäudes lässt großzügige Freiflächen entstehen, die für eine intensive Begrünung genutzt werden. Nach Süden erschließt sich auf allen Nutzflächen eine helle Atmosphäre mit Blick in eine natürliche Umgebung. Ein ansteigender Landschaftswall bildet die organische Abschirmung gegen die westlichen Bahngleise. Der Büropark ist dank exzellenter Autobahnanbindung sehr gut mit dem PKW erreichbar. Sicheres Parken in der hauseigenen Tiefgarage ist auf zwei Ebenen im Untergeschoss eine Selbstverständlichkeit. Insgesamt 431 PKW-Einstellplätze stehen ausschließlich den Nutzern des Objektes zur Verfügung.
Ausstattung
| Anzahl der Etagen im Haus | 8 |
| Boden | Teppich |
| Fahrstuhl | |
| Keller |
Lage des Objektes
Das Objekt befindet sich in Düsseldorf-Unterrath und hat eine hervorragende Verkehrsanbindung und Infrastruktur. Auch für die Bedürfnisse des täglichen Bedarfs findet man in der unmittelbaren Umgebung ein reichhaltiges Waren- und Dienstleistungsangebot.
Anbieter kontaktieren
Anbieter
corealis Commercial Real Estate GmbH
Hohe Straße 8-10
40213 Düsseldorf
Kontakt
| Telefon | 004921152288470 |
| Fax | 004921152288479 |
| Website | www.corealis.de |
