gepflegte, helle Räume für ihren Erfolg: Praxis, Therapie, Kanzlei, Büro
immobilien.de Nr.: 9404629
Objektnummer: 277600
Dateien
Preise & Kosten
| Miete für das Objekt | Auf Anfrage |
| Nebenkosten | keine Angabe |
| Maklerprovision | keine Provision, courtagefrei |
Größe & Zustand
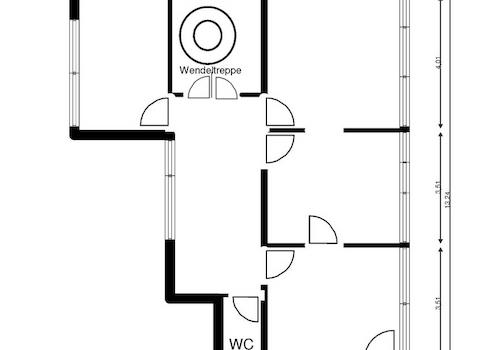
| Gesamtfläche | 120 m² |
| Bürofläche | 120 m² |
| Baujahr | 1973 |
| Verfügbar ab | 01.01.2026 |
| Zustand | Gepflegt |
Energie
| Energieausweistyp | Bedarfsausweis |
| Heizungsart | Zentralheizung |
| Energieträger/Befeuerung | Öl |
Objektbeschreibung
Ab dem 01.01.26 steht in zentraler Lage von Stockstadt am Rhein eine vielseitig nutzbare, gepflegte Gewerbefläche mit ca. 120 m2 zur Verfügung. Die schönen, zeitlosen Räume erstrecken sich über das Erdgeschoß und das Souterrain und bieten somit flexible Nutzungsmöglichkeiten.
Besonderheiten:
•Großzügige Fenster mit Blick ins Grüne sorgen für viel Tageslicht und ein einladendes Ambiente
•Eigener PKW-Stellplatz und zusätzliche Parkmöglichkeiten in der Straße
•Gepflegtes Umfeld mit gutem Kunden- und Klientenzugang
•Die Fläche lässt sich auf Wunsch an Ihre individuellen Bedürfnisse anpassen. Ideal geeignet für Therapiepraxen, Rechtsanwaltskanzleien, Coachings oder kreative Bürolösungen
Besonderheiten:
•Großzügige Fenster mit Blick ins Grüne sorgen für viel Tageslicht und ein einladendes Ambiente
•Eigener PKW-Stellplatz und zusätzliche Parkmöglichkeiten in der Straße
•Gepflegtes Umfeld mit gutem Kunden- und Klientenzugang
•Die Fläche lässt sich auf Wunsch an Ihre individuellen Bedürfnisse anpassen. Ideal geeignet für Therapiepraxen, Rechtsanwaltskanzleien, Coachings oder kreative Bürolösungen
Ausstattung
| Anzahl der Etagen im Haus | 2 |
| Inserat befindet sich im Stockwerk | 0 |
| Boden | Laminat |
Laminat
Sonstige Informationen
Heizungsart: Zentralheizung
Energieträger: Öl
ohne-makler (OM) ist weder Anbieter noch Vermittler der Immobilie. OM betreibt eine Plattform für Immobilieneigentümer, die unter anderem die gleichzeitige Veröffentlichung einzelner Inserate auf mehreren Immobilienportalen ermöglicht. Die Inhalte dieser Inserate werden ausschließlich von Dritten verantwortet. Für die Richtigkeit, Vollständigkeit oder Rechtmäßigkeit der Angaben übernimmt OM keine Haftung. Hinweise auf mögliche Rechtsverstöße können jederzeit gemeldet werden und werden nach Prüfung umgehend bearbeitet.
Energieträger: Öl
ohne-makler (OM) ist weder Anbieter noch Vermittler der Immobilie. OM betreibt eine Plattform für Immobilieneigentümer, die unter anderem die gleichzeitige Veröffentlichung einzelner Inserate auf mehreren Immobilienportalen ermöglicht. Die Inhalte dieser Inserate werden ausschließlich von Dritten verantwortet. Für die Richtigkeit, Vollständigkeit oder Rechtmäßigkeit der Angaben übernimmt OM keine Haftung. Hinweise auf mögliche Rechtsverstöße können jederzeit gemeldet werden und werden nach Prüfung umgehend bearbeitet.
Lage des Objektes
Lage und Verkehrsanbindungen
•Die Gemeinde Stockstadt am Rhein liegt am südlichen Rand des Ballungsgebietes Rhein-Main und verfügt über beste Verkehrsanbindungen:
•naheliegende Autobahnzufahrten (BAB 67 – Pfungstadt bzw. Gernsheim (direkt über die B44) und Groß-Gerau)
•Flughafen Frankfurt, erreichbar in 30 Minuten
•Einwohnerzahl: 6.275 (Stand 2021)
•Naherholung gelingt in größtem hessischen Naturschutzgebiet und Europareservat "Kühkopf-Knoblauchsaue" mit dem Umweltbildungszentrum Schatzinsel Kühkopf
Infrastruktur (im Umkreis von 5 km):
Apotheke, Lebensmittel-Discount, Allgemeinmediziner, Kindergarten, Grundschule, Hauptschule, Öffentliche Verkehrsmittel
•Die Gemeinde Stockstadt am Rhein liegt am südlichen Rand des Ballungsgebietes Rhein-Main und verfügt über beste Verkehrsanbindungen:
•naheliegende Autobahnzufahrten (BAB 67 – Pfungstadt bzw. Gernsheim (direkt über die B44) und Groß-Gerau)
•Flughafen Frankfurt, erreichbar in 30 Minuten
•Einwohnerzahl: 6.275 (Stand 2021)
•Naherholung gelingt in größtem hessischen Naturschutzgebiet und Europareservat "Kühkopf-Knoblauchsaue" mit dem Umweltbildungszentrum Schatzinsel Kühkopf
Infrastruktur (im Umkreis von 5 km):
Apotheke, Lebensmittel-Discount, Allgemeinmediziner, Kindergarten, Grundschule, Hauptschule, Öffentliche Verkehrsmittel
