Vermietete Kfz-Werkstatt in Thannhausen; bei Eigennutzung zügig verfügbar - für Bauträger geeignet
399.000 €
Kaufpreis
immobilien.de Nr.: 9360999
Objektnummer: U-3935
Dateien
Preise & Kosten
| Kaufpreis | 399.000 € |
| Nebenkosten | keine Angabe |
| Maklerprovision | 4,165 % inkl. MwSt. |
Größe & Zustand
| Gesamtfläche | 362 m² |
| Grundstücksfläche | 714 m² |
| Baujahr | 1973 |
| Verfügbar ab | nach Vereinbarung |
Energie
| Heizungsart | Zentralheizung |
| Energieträger/Befeuerung | Gas |
Objektbeschreibung
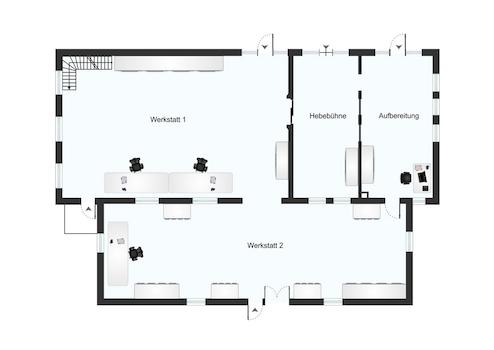
- ca. 362 qm Werkstattfläche aufgeteilt auf vier Hallen, inkl. Inventar (3 x Hebebühnen)
- davon ca. 185 qm (zwei Hallen) vermietet zu einer Kaltmiete von 1.000,- €
- zwei weitere Hallen mit zusammen ca. 177 qm werden aktuell unentgeltlich vom Betreiber genutzt (hohes Mietpotenzial)
- zusätzlich ca. 112 qm Lagerfläche im Dachboden
- Mietvertrag ist monatlich kündbar - schnelle Verfügbarkeit bei Eigenbedarf
- ca. 600 qm Stellfläche für PKW´s hinter der Werkstatt
- auf dem Grundstück mit den Stellplätzen steht eine große Garage sowie ein Carport
Für Bauträger:
- genehmigter Werkstattumbau zu vier Wohneinheiten mit ca. 250 qm Wohnfläche über drei Geschosse
- Umbau im rechten Teil der Werkstatt in dem bestehendem Gebäude mit Satteldach
- das Grundstück kann zusätzlich bebaut werden
- davon ca. 185 qm (zwei Hallen) vermietet zu einer Kaltmiete von 1.000,- €
- zwei weitere Hallen mit zusammen ca. 177 qm werden aktuell unentgeltlich vom Betreiber genutzt (hohes Mietpotenzial)
- zusätzlich ca. 112 qm Lagerfläche im Dachboden
- Mietvertrag ist monatlich kündbar - schnelle Verfügbarkeit bei Eigenbedarf
- ca. 600 qm Stellfläche für PKW´s hinter der Werkstatt
- auf dem Grundstück mit den Stellplätzen steht eine große Garage sowie ein Carport
Für Bauträger:
- genehmigter Werkstattumbau zu vier Wohneinheiten mit ca. 250 qm Wohnfläche über drei Geschosse
- Umbau im rechten Teil der Werkstatt in dem bestehendem Gebäude mit Satteldach
- das Grundstück kann zusätzlich bebaut werden
Sonstige Informationen
- die Werkstatt steht auf zwei verschiedenen Grundstücken
- das Grundstück mit den Stellplätzen hat eine eigene Flurnummer - dieses muss somit gesondert beurkundet werden
- es müssen 6 Stellplätze für die anliegende Bäckerei frei gehalten werden
Haben wir Ihr Interesse geweckt, dann ist die weitere Vorgehensweise wie folgt:
1. Senden Sie uns über den entsprechenden Button eine Anfrage. Sie erhalten dann per E-Mail das Exposé zur Immobilie.
2. Danach senden wir Ihnen die Objektadresse mit dem Lageplan und dem Bebauungsplan zu.
Das Magazin Focus hat uns durch eine unabhängige Auswertung in einer Maklerliste 2025 wiederholt zu einem der 1.000 besten Makler Deutschlands ausgezeichnet.
Euro am Sonntag hat gemeinsam mit dem Deutschen Kundeninstitut (DKI) 83 Makler geprüft. Ausgewählt wurden neben den fünf größten überregionalen Anbietern die bekanntesten Makler der 12 größten Städte Deutschlands. Spieler & Seeberger Immobilien GmbH erhielt die Note "sehr gut" und steht in Stuttgart damit auf Platz 2.
Das Magazin "Capital" zeichnete uns erstmals im Okt. 2014 als einen der 100 Topmakler Deutschlands aus. 2024 erhielten wir diese Auszeichnung zum elften Mal in Folge. Diverse nationale u. internationale Auszeichnungen kamen hinzu. Kundenzufriedenheit steht für uns an erster Stelle!
Möglicherweise ist Ihr Immobilienerwerb von einem guten Verkaufserlös und einer zügigen Abwicklung Ihrer jetzige Immobilie abhängig. Gerne führen wir für Sie die wahrscheinlich präziseste Wertermittlung im Großraum Stuttgart für Ihre Immobilie durch.
- das Grundstück mit den Stellplätzen hat eine eigene Flurnummer - dieses muss somit gesondert beurkundet werden
- es müssen 6 Stellplätze für die anliegende Bäckerei frei gehalten werden
Haben wir Ihr Interesse geweckt, dann ist die weitere Vorgehensweise wie folgt:
1. Senden Sie uns über den entsprechenden Button eine Anfrage. Sie erhalten dann per E-Mail das Exposé zur Immobilie.
2. Danach senden wir Ihnen die Objektadresse mit dem Lageplan und dem Bebauungsplan zu.
Das Magazin Focus hat uns durch eine unabhängige Auswertung in einer Maklerliste 2025 wiederholt zu einem der 1.000 besten Makler Deutschlands ausgezeichnet.
Euro am Sonntag hat gemeinsam mit dem Deutschen Kundeninstitut (DKI) 83 Makler geprüft. Ausgewählt wurden neben den fünf größten überregionalen Anbietern die bekanntesten Makler der 12 größten Städte Deutschlands. Spieler & Seeberger Immobilien GmbH erhielt die Note "sehr gut" und steht in Stuttgart damit auf Platz 2.
Das Magazin "Capital" zeichnete uns erstmals im Okt. 2014 als einen der 100 Topmakler Deutschlands aus. 2024 erhielten wir diese Auszeichnung zum elften Mal in Folge. Diverse nationale u. internationale Auszeichnungen kamen hinzu. Kundenzufriedenheit steht für uns an erster Stelle!
Möglicherweise ist Ihr Immobilienerwerb von einem guten Verkaufserlös und einer zügigen Abwicklung Ihrer jetzige Immobilie abhängig. Gerne führen wir für Sie die wahrscheinlich präziseste Wertermittlung im Großraum Stuttgart für Ihre Immobilie durch.
Lage des Objektes
- Thannhausen liegt an der östlichen Hügelkette des 500 m ü. NHN liegenden Mindeltals zwischen Augsburg, Ulm und Memmingen
- am Westrand des Naturparks Augsburg-Westliche Wälder gelegen
- das Objekt liegt verkehrsgünstig in Richtung Krumbach und Mindelheim
- täglicher Bedarf in wenigen Minuten erreichbar
- Bäckerei und Imbiss in unmittelbarer Nähe
- am Westrand des Naturparks Augsburg-Westliche Wälder gelegen
- das Objekt liegt verkehrsgünstig in Richtung Krumbach und Mindelheim
- täglicher Bedarf in wenigen Minuten erreichbar
- Bäckerei und Imbiss in unmittelbarer Nähe
Anbieter kontaktieren
Anbieter
Spieler & Seeberger Immobilien GmbH
Industriestr. 4
70565 Stuttgart
Kontakt
| Telefon | 004973196330036 |
| Mobil | 00491717685962 |
| Fax | 004973196330034 |
| Website | www.spieler-seeberger.immo |
