Düsseldorf Nord: Ihr Büro mit Komfort und Charme zur Miete | provisionsfrei!
immobilien.de Nr.: 9280761
Objektnummer: 10478
Preise & Kosten
| Kaltmiete | 0 € |
| Nebenkosten | keine Angabe |
| Mietpreis pro m² | 14,5 € |
Größe & Zustand
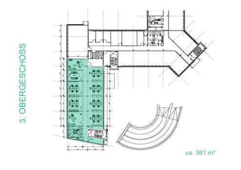
| Gesamtfläche | 478 m² |
| Bürofläche | 478 m² |
| Verfügbar ab | sofort |
Objektbeschreibung
Diese moderne Bürofläche aus dem Jahr 2002 überzeugt mit Stil und Funktionalität. Die ansprechende Natursteinfassade mit Glaselementen, hochwertige Isolierverglasung und Alu-Profile verleihen dem Gebäude einen professionellen Auftritt.
Die flexible Raumaufteilung lässt sich optimal an Ihre Bedürfnisse anpassen. Helle Bandrasterdecken, abgependelte Leuchten und ein moderner Hohlraumboden sorgen für ein angenehmes Arbeitsumfeld. Zwei Personenaufzüge gewährleisten komfortablen Zugang zu allen Etagen.
Für zusätzlichen Komfort sorgen außenliegender Sonnenschutz, Lüftungsanlage mit Spitzenlastkühlung und ein Balkon – perfekt für kleine Pausen an der frischen Luft.
Dieses Büro ist ab sofort verfügbar und bietet den idealen Rahmen, um Ihr Unternehmen erfolgreich zu positionieren.
Die flexible Raumaufteilung lässt sich optimal an Ihre Bedürfnisse anpassen. Helle Bandrasterdecken, abgependelte Leuchten und ein moderner Hohlraumboden sorgen für ein angenehmes Arbeitsumfeld. Zwei Personenaufzüge gewährleisten komfortablen Zugang zu allen Etagen.
Für zusätzlichen Komfort sorgen außenliegender Sonnenschutz, Lüftungsanlage mit Spitzenlastkühlung und ein Balkon – perfekt für kleine Pausen an der frischen Luft.
Dieses Büro ist ab sofort verfügbar und bietet den idealen Rahmen, um Ihr Unternehmen erfolgreich zu positionieren.
Ausstattung
| Inserat befindet sich im Stockwerk | 5 |
- Natursteinfassade mit Glaselementen
- Isolierverglasung mit Alu-Profilen
- Bandrasterdecken im Flurbereich
- Raumaufteilung flexibel
- 2 Personenaufzüge
- Abgependelte Leuchten
- Hohlraumboden- u. Doppelboden
- Sonnenschutz außenliegend
- Teppichboden
- Lüftung mit Spitzenlastkühlung
- Isolierverglasung mit Alu-Profilen
- Bandrasterdecken im Flurbereich
- Raumaufteilung flexibel
- 2 Personenaufzüge
- Abgependelte Leuchten
- Hohlraumboden- u. Doppelboden
- Sonnenschutz außenliegend
- Teppichboden
- Lüftung mit Spitzenlastkühlung
Lage des Objektes
Düsseldorf-Lichtenbroich; in unmittelbarer Nähe zum Flughafen Düsseldorf International (ca. 1,9 km).
Mit den Autobahnen A52, A44 und A3 liegt das Autobahnetz (Autobahnanschlußstelle Düsseldorf-Rath) direkt am Objekt.
Bushaltestellen, der U- und S-Bahnhof Düsseldorf-Unterrath sind fußläufig in ca. 5-8 Gehminuten zu erreichen.
Mit den Autobahnen A52, A44 und A3 liegt das Autobahnetz (Autobahnanschlußstelle Düsseldorf-Rath) direkt am Objekt.
Bushaltestellen, der U- und S-Bahnhof Düsseldorf-Unterrath sind fußläufig in ca. 5-8 Gehminuten zu erreichen.
Anbieter kontaktieren
Anbieter
corealis Commercial Real Estate GmbH
Hohe Straße 8-10
40213 Düsseldorf
Kontakt
| Telefon | 004921152288470 |
| Fax | 004921152288479 |
| Website | www.corealis.de |
