Airport Business Center – Modernes Arbeiten in bester Lage
immobilien.de Nr.: 9262076
Objektnummer: 1617_007
Preise & Kosten
| Kaltmiete | 0 € |
| Nebenkosten | keine Angabe |
| Mietpreis pro m² | 12,95 € |
| Stellplatz Freiplatz Miete} | 0 € |
Größe & Zustand
| Gesamtfläche | 777,9 m² |
| Bürofläche | 777,9 m² |
| Fläche teilbar ab | 300 m² |
| Baujahr | 2002 |
| Verfügbar ab | kurzfristig |
Energie
| Energieausweistyp | Bedarfsausweis |
| Gültig bis | 2020-12-30 |
| Baujahr (laut Energieausweis) | 2002 |
| Energieeffizienzklasse | B |
| Heizungsart | Zentralheizung |
| Wesentlicher Energieträger | Gas |
| Energieträger/Befeuerung | Gas |
Objektbeschreibung
Das im Jahr 2002 errichtete Airport Business Center ist ein moderner Bürokomplex mit repräsentativer Natursteinfassade und markantem Solitärcharakter. Insgesamt stehen rund 12.216 m² Bürofläche zur Verfügung.
Die Flächen bieten höchste Flexibilität: Je nach Bedarf lassen sich sowohl Einzelbüros als auch Großraumbüros realisieren. Der Zugang zu den Büroeinheiten erfolgt über drei separate Eingänge, die jeweils über Treppenhäuser und Aufzüge erschlossen sind.
Im Untergeschoss befinden sich Tiefgaragenstellplätze sowie Lagerflächen. Zusätzliche PKW-Stellplätze stehen auf dem gesicherten Außengelände zur Verfügung.
Ein begrünter Innenhof lädt zu entspannten Pausen ein, während zahlreiche Nahversorgungsmöglichkeiten im direkten Umfeld den Standort besonders attraktiv machen.
Die Flächen bieten höchste Flexibilität: Je nach Bedarf lassen sich sowohl Einzelbüros als auch Großraumbüros realisieren. Der Zugang zu den Büroeinheiten erfolgt über drei separate Eingänge, die jeweils über Treppenhäuser und Aufzüge erschlossen sind.
Im Untergeschoss befinden sich Tiefgaragenstellplätze sowie Lagerflächen. Zusätzliche PKW-Stellplätze stehen auf dem gesicherten Außengelände zur Verfügung.
Ein begrünter Innenhof lädt zu entspannten Pausen ein, während zahlreiche Nahversorgungsmöglichkeiten im direkten Umfeld den Standort besonders attraktiv machen.
Ausstattung
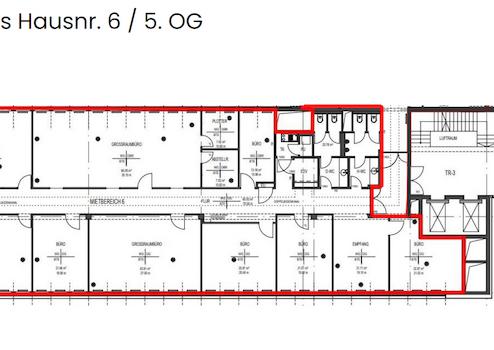
| Anzahl der Etagen im Haus | 6 |
| Inserat befindet sich im Stockwerk | 4 |
| Boden | Parkett, Doppelboden |
| Fahrstuhl |
- Thermopane Verglasung
- außenliegender, elektrischer Sonnenschutz
- abgehängte Decken mit integrierter BAP-Beleuchtung
- Doppel-Hohlraumboden
- 6 Personenaufzüge à 12 Personen
- Lüftungsanlage, Spitzenlastkühlung
- hochwertiger antistatischer, stuhlrollengeeigneter Teppichboden
- außenliegender, elektrischer Sonnenschutz
- abgehängte Decken mit integrierter BAP-Beleuchtung
- Doppel-Hohlraumboden
- 6 Personenaufzüge à 12 Personen
- Lüftungsanlage, Spitzenlastkühlung
- hochwertiger antistatischer, stuhlrollengeeigneter Teppichboden
Lage des Objektes
Das Objekt liegt im Norden von Düsseldorf, nur etwa 1,9 km vom Flughafen Düsseldorf International entfernt. In wenigen Minuten erreichen Sie das Dienstleistungszentrum Düsseldorf-Rath mit zahlreichen Geschäften des täglichen Bedarfs.
Die Autobahnanschlussstelle Düsseldorf-Rath (A52) befindet sich rund 200 m entfernt und ermöglicht eine schnelle Verbindung zum „Breitscheider Kreuz“. Über die Rheinquerung (A44) besteht zudem eine hervorragende Anbindung an das linksrheinische Autobahnnetz (A57 und A52).
Öffentliche Verkehrsmittel sind ebenfalls fußläufig erreichbar: Die S-Bahnhaltestelle in ca. 300 m Entfernung wird von den Linien S1, S21 und S7 bedient.
Die Autobahnanschlussstelle Düsseldorf-Rath (A52) befindet sich rund 200 m entfernt und ermöglicht eine schnelle Verbindung zum „Breitscheider Kreuz“. Über die Rheinquerung (A44) besteht zudem eine hervorragende Anbindung an das linksrheinische Autobahnnetz (A57 und A52).
Öffentliche Verkehrsmittel sind ebenfalls fußläufig erreichbar: Die S-Bahnhaltestelle in ca. 300 m Entfernung wird von den Linien S1, S21 und S7 bedient.
Anbieter kontaktieren
Anbieter
corealis Commercial Real Estate GmbH
Hohe Straße 8-10
40213 Düsseldorf
Kontakt
| Telefon | 004921152288470 |
| Fax | 004921152288479 |
| Website | www.corealis.de |
