Innovative und ertragsstarke Multifunktionshallen mit Monteurswohnungen und 2 Solaranlagen
2.600.000 €
Kaufpreis
immobilien.de Nr.: 9217490
Objektnummer: 721674
Preise & Kosten
| Kaufpreis | 2.600.000 € |
| Nebenkosten | keine Angabe |
| Maklerprovision | 4,76 % (inkl. MwSt.) |
Größe & Zustand
| Gesamtfläche | 804 m² |
| Grundstücksfläche | 2.080 m² |
| Baujahr | 2003 |
| Verfügbar ab | vermietet |
| Zustand | Gepflegt |
Energie
| Energieausweistyp | Bedarfsausweis |
| Ausstellungsdatum | 28. 07. 2025 |
| Baujahr (laut Energieausweis) | 2003 |
| Wesentlicher Energieträger | Strom |
| Energieträger/Befeuerung | Elektro |
Objektbeschreibung
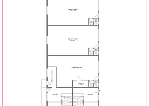
Das zum Verkauf stehende Objekt wurde 2003 auf einem ebenen Grundstück von ca. 2080 qm fertiggestellt und bietet insgesamt eine Nutzfläche von ca. 804 qm auf 2 Etagen. Die Immobilie wird zum Teil selbst genutzt und größtenteils vermietet. Auf der Fläche befindet sich ein Motel, 4 Hallen, eine größere Wohnung sowie eine größere Anzahl Container.
Im Detail:
Gewerbeeinheiten im Erdgeschoss auf ca. 416 qm Nutzfläche:
1. Halle: Galerie und Kunstatelier
2. Halle: KFZ-Werkstatt
3. Halle: Werkstatt mit Büroraum
4. Halle: anderweitig vermietet.
Die Hallen haben eine Nutzfläche von insgesamt 338 qm. Jede Halle verfügt über eigenes WC mit Fenster.
Weiter liegen im EG auf ca. 78 qm Nutzfläche vier Monteurswohnungen mit eigenem Bad und Küchenzeile mit elektrischen Geräten.
Mehrere Container in verschiedenen Größen sind zum Teil eigengenutzt, zum Teil vermietet.
Ein Waschsalon mit Münzautomaten, der auch für externe Besucher geöffnet ist sorgt für weitere Einnahmen.
Obergeschoss:
Hier findet sich auf ca. 73 qm eine geräumige, moderne, noch nie bezogene Hausmeisterwohnung bestehend aus Wohn-Essbereich und offener Küche, Schlafzimmer, Badezimmer mit Wanne und Gäste-WC mit Dusche.
Highlight ist hier die gigantische Terrasse mit tollem unverbaubarem Ausblick auf Wiesen und Felder.
Ein Flur trennt auf einer Fläche von ca. 314 qm die anschließenden 13 Appartements, eingerichtet wie im EG mit Bad und Küchenmodul.
Das Dachgeschoss bietet im Speicher weiteren zusätzlichen Stauraum.
Sämtliche vermieteten Objekt werden zum Pauschalpreis angeboten, da die beiden voluminösen Solaranlagen mit ca. 30KWpeak und ca. 60 KWpeak dafür sorgen, dass in den Sommermonaten sogar ein Überschuss an Energie erzeugt wird, der in das öffentliche Stromnetz eingespeist wird.
Der Ertrag der Immobilie beträgt aktuell EUR 204.132,- im Jahr.
Gerne besprechen wir Details bei einer ausführlichen Besichtigung!
Weitere Angebote unter www.GARANT-IMMO.de
Im Detail:
Gewerbeeinheiten im Erdgeschoss auf ca. 416 qm Nutzfläche:
1. Halle: Galerie und Kunstatelier
2. Halle: KFZ-Werkstatt
3. Halle: Werkstatt mit Büroraum
4. Halle: anderweitig vermietet.
Die Hallen haben eine Nutzfläche von insgesamt 338 qm. Jede Halle verfügt über eigenes WC mit Fenster.
Weiter liegen im EG auf ca. 78 qm Nutzfläche vier Monteurswohnungen mit eigenem Bad und Küchenzeile mit elektrischen Geräten.
Mehrere Container in verschiedenen Größen sind zum Teil eigengenutzt, zum Teil vermietet.
Ein Waschsalon mit Münzautomaten, der auch für externe Besucher geöffnet ist sorgt für weitere Einnahmen.
Obergeschoss:
Hier findet sich auf ca. 73 qm eine geräumige, moderne, noch nie bezogene Hausmeisterwohnung bestehend aus Wohn-Essbereich und offener Küche, Schlafzimmer, Badezimmer mit Wanne und Gäste-WC mit Dusche.
Highlight ist hier die gigantische Terrasse mit tollem unverbaubarem Ausblick auf Wiesen und Felder.
Ein Flur trennt auf einer Fläche von ca. 314 qm die anschließenden 13 Appartements, eingerichtet wie im EG mit Bad und Küchenmodul.
Das Dachgeschoss bietet im Speicher weiteren zusätzlichen Stauraum.
Sämtliche vermieteten Objekt werden zum Pauschalpreis angeboten, da die beiden voluminösen Solaranlagen mit ca. 30KWpeak und ca. 60 KWpeak dafür sorgen, dass in den Sommermonaten sogar ein Überschuss an Energie erzeugt wird, der in das öffentliche Stromnetz eingespeist wird.
Der Ertrag der Immobilie beträgt aktuell EUR 204.132,- im Jahr.
Gerne besprechen wir Details bei einer ausführlichen Besichtigung!
Weitere Angebote unter www.GARANT-IMMO.de
Ausstattung
| Anzahl der Etagen im Haus | 2 |
| Balkone | 1 |
* Zwei Photovoltaikanlagen mit 29 KW-peak und 69 KW-peak
Leistung, incl. Batterie-Stromspeicher
* zentrale Satellitenschüssel für Fernsehempfang in jedem
Appartement
* Appartements voll möbliert mit TV, Klimagerät mit Münzautomat,
Pantryküche mit E-Geräten
* W-Lan und LAN-Anschluss in jedem Zimmer
* Glasfaseranschluss für schnelles Internet aktuell neu verlegt
* alle 4 Hallen verfügen über elektrisch betriebene Rolltore
* Startstromanschluss in jeder Halle
* Werkstatt mit Sandstrahlkammer und Schweißgerät in Halle 3
* KFZ-Werkstatt mit Hebebühne in Halle 2
Leistung, incl. Batterie-Stromspeicher
* zentrale Satellitenschüssel für Fernsehempfang in jedem
Appartement
* Appartements voll möbliert mit TV, Klimagerät mit Münzautomat,
Pantryküche mit E-Geräten
* W-Lan und LAN-Anschluss in jedem Zimmer
* Glasfaseranschluss für schnelles Internet aktuell neu verlegt
* alle 4 Hallen verfügen über elektrisch betriebene Rolltore
* Startstromanschluss in jeder Halle
* Werkstatt mit Sandstrahlkammer und Schweißgerät in Halle 3
* KFZ-Werkstatt mit Hebebühne in Halle 2
Sonstige Informationen
* Außenwände aus wärmedämmenden Vulkansteinen gemauert
* eigener Brunnen
* 2 Rigolen zur Kostensenkung des Regen/Niederschlagswassers
* Wäscherei mit Münzeinwurf auch für außenstehende
Personen
* Lagerraum im Speicher
* eigener Brunnen
* 2 Rigolen zur Kostensenkung des Regen/Niederschlagswassers
* Wäscherei mit Münzeinwurf auch für außenstehende
Personen
* Lagerraum im Speicher
Lage des Objektes
Biblis, eine Gemeinde mit ca. 9000 Einwohnern, liegt verkehrsgünstig direkt an der Bundesstraße B 44 mit einem Verkehrsaufkommen von ca. 20.000 Autos am Tag.
Strategisch günstig liegt Biblis zwischen den beiden Metropolregionen Frankfurt/M. und Heidelberg/Mannheim.
Autobahnen A 5, A 6 und A 67 Richtung Frankfurt, Mannheim, Heidelberg in ca. 10 km Entfernung.
Entfernungen: Worms 11 km, Bensheim 15 km, Mannheim 25 km, Darmstadt 28 km, Heidelberg 50 km, Frankfurt 65 km.
Strategisch günstig liegt Biblis zwischen den beiden Metropolregionen Frankfurt/M. und Heidelberg/Mannheim.
Autobahnen A 5, A 6 und A 67 Richtung Frankfurt, Mannheim, Heidelberg in ca. 10 km Entfernung.
Entfernungen: Worms 11 km, Bensheim 15 km, Mannheim 25 km, Darmstadt 28 km, Heidelberg 50 km, Frankfurt 65 km.
Anbieter kontaktieren
Kontakt
| Telefon | 0621/84 55 78-0 |
| Fax | 0621/84 55 78-40 |
| Website | www.garant-immo.de |
