repräsentative Büroräume in ländlicher Gegend - Langenau
1.300 €
Kaltmiete
1.300 €
Kaltmiete (netto)
1.695 €
Warmmiete
6
Zimmer
immobilien.de Nr.: 9202600
Objektnummer: 186
Mietpreis & Nebenkosten
| Kaltmiete | 1.300 € |
| Kaltmiete (netto) | 1.300 € |
| Warmmiete | 1.695 € |
| Nebenkosten | 370 € |
| Kaution | 2 Monatsnettomieten |
| Stellplatz Freiplatz Miete} | 25 € |
Wohnfläche, Grundstück & Bausubstanz
| Gesamtfläche | 191 m² |
| Bürofläche | 184 m² |
| Zimmer | 6 |
| Verfügbar ab | sofort |
| Zustand | Teil Vollrenoviert |
Energie
| Heizungsart | Zentralheizung, Fußbodenheizung |
| Energieträger/Befeuerung | Gas, Solar |
Beschreibung der Immobilie
Arbeiten in ruhiger Lage wie in einem Schloss.
Diese repräsentativen Büroräume stehen zur sofortigen Anmietung.
Hochwertig, kernsanierte Anlage die keine Wünsche offen lässt.
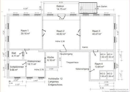
Drei große Büroräume. Ein Raum mit Kamin und Zugang zum großen Balkon.
Der Balkon führt wiederum zu den Kfz-Stellplätzen.
In allen Räumen wurde Laminatboden verlegt.
Ein großer Raum muss noch renoviert werden. Hier können Ihre Wünsche berücksichtigt werden.
Eine zuletzt als 2-Zimmer Wohnung genutzte Flächen können weiterhin zu Wohnzwecken verwandt wie auch zu Büroräumen umgewandelt werden.
Es stehen je 2 Herren-WC und 2 Damen-WC zur Verfügung
Eine Solaranlage zur Warmwasserbereitung ist unterstützend zur Warmwasseraufbereitung installiert und spart somit Betriebskosten.
Diese repräsentativen Büroräume stehen zur sofortigen Anmietung.
Hochwertig, kernsanierte Anlage die keine Wünsche offen lässt.
Drei große Büroräume. Ein Raum mit Kamin und Zugang zum großen Balkon.
Der Balkon führt wiederum zu den Kfz-Stellplätzen.
In allen Räumen wurde Laminatboden verlegt.
Ein großer Raum muss noch renoviert werden. Hier können Ihre Wünsche berücksichtigt werden.
Eine zuletzt als 2-Zimmer Wohnung genutzte Flächen können weiterhin zu Wohnzwecken verwandt wie auch zu Büroräumen umgewandelt werden.
Es stehen je 2 Herren-WC und 2 Damen-WC zur Verfügung
Eine Solaranlage zur Warmwasserbereitung ist unterstützend zur Warmwasseraufbereitung installiert und spart somit Betriebskosten.
Ausstattungsmerkmale
| Inserat befindet sich im Stockwerk | 0 |
| Küche | Einbauküche |
| Bad | 1 |
| Bad | Wanne, Fenster |
| Garten | |
| Keller |
Karte wird geladen...
Objektstandort
Hofstraße 12
09618 Brand-Erbisdorf / Langenau
Lage & Infrastruktur
Objektstandort
Hofstraße 12
09618 Brand-Erbisdorf / Langenau
Langenau ist ein Ortsteil der Großen Kreisstadt Brand-Erbisdorf in Sachsen.
In Brand-Erbisdorf sind alle Schulen vertreten, Grundschule, Oberschule und Gymnasium.
Gute Busverbindungen nach – Brand-Erbisdorf – Freiberg oder Richtung Eppendorf / Chemnitz.
10 km bis zur großen Kreisstadt Freiberg, 32 km bis Chemnitz und 47 km bis Dresden.
In Brand-Erbisdorf sind alle Schulen vertreten, Grundschule, Oberschule und Gymnasium.
Gute Busverbindungen nach – Brand-Erbisdorf – Freiberg oder Richtung Eppendorf / Chemnitz.
10 km bis zur großen Kreisstadt Freiberg, 32 km bis Chemnitz und 47 km bis Dresden.
Kontaktanfrage senden
Über den Anbieter
Gesine Richter Immobilien
Leipziger Strasse 24
09599 Freiberg
Kontakt
| Telefon | 0049373139800 |
| Website | www.richterimmobilien.de |
Ansprechpartner/in
Herr Berthold Hauschild