Ihr neuer Ideenraum im TurmCenter
9.800 €
Kaltmiete
12.780,6 €
Warmmiete
immobilien.de Nr.: 9191821
Objektnummer: FALC-RoMu-72724
Preise & Kosten
| Kaltmiete | 9.800 € |
| Warmmiete | 12.780,6 € |
| Nebenkosten | 2980,6 € |
| Maklerprovision | 2,38 KM inkl. MwSt. |
| Kaution | 29400 |
Größe & Zustand
| Bürofläche | 700 m² |
| Verfügbar ab | keine Angabe |
Objektbeschreibung
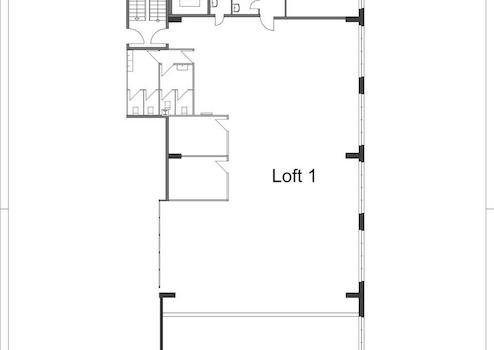
Diese moderne Gewerbeeinheit besticht durch ihr offenes Loft-Design und bietet vielfältige Möglichkeiten zur individuellen Nutzung. Großzügige, helle Räume mit großen Fensterflächen schaffen eine angenehme und inspirierende Arbeitsatmosphäre, die perfekt für Unternehmen aus den Bereichen Kreativwirtschaft, Beratung, IT oder Design geeignet ist.
Der flexible Grundriss ermöglicht die Gestaltung offener Arbeitsbereiche ebenso wie separater Räume für Besprechungen oder konzentriertes Arbeiten. Gemeinschaftlich genutzte WC-Anlagen befinden sich direkt angrenzend und sorgen für zusätzlichen Komfort.
Die klare Architektur und die zentrale Lage im TurmCenter, machen diese Gewerbefläche zu einem idealen Standort für Unternehmen, die Wert auf modernes Arbeiten in einem professionellen und zugleich kreativen Umfeld legen.
Der flexible Grundriss ermöglicht die Gestaltung offener Arbeitsbereiche ebenso wie separater Räume für Besprechungen oder konzentriertes Arbeiten. Gemeinschaftlich genutzte WC-Anlagen befinden sich direkt angrenzend und sorgen für zusätzlichen Komfort.
Die klare Architektur und die zentrale Lage im TurmCenter, machen diese Gewerbefläche zu einem idealen Standort für Unternehmen, die Wert auf modernes Arbeiten in einem professionellen und zugleich kreativen Umfeld legen.
Ausstattung
| Küche | Einbauküche |
| Boden | Fliesen |
| Fahrstuhl | |
| Barrierefrei |
Die angebotene Gewerbeeinheit verfügt über einen industriellen Look und bietet durch ihre offene Gestaltung ein modernes Arbeitsumfeld.
Ein pflegeleichter Boden sorgt für eine robuste und wartungsarme Nutzung im täglichen Betrieb. Großzügige Freiflächen ermöglichen eine flexible Raumgestaltung und bieten Platz für unterschiedliche Arbeitsbereiche. Ergänzt wird die Fläche durch mehrere Einzelbüros sowie einen separaten Besprechungsraum.
Für die Mitarbeitenden steht ein Pausenraum zur Verfügung. Drei Toiletteneinheiten sind vorhanden. Die Räumlichkeiten sind teilweise klimatisiert und verfügen über eine moderne KAT-7-Sternverkabelung sowie einen leistungsstarken Glasfaseranschluss, der eine zuverlässige digitale Infrastruktur gewährleistet.
Dank der durchdachten Gebäudestruktur und der energieeffizienten technischen Ausstattung sind die Nebenkosten besonders gering. Im direkten Umfeld stehen zahlreiche kostenlose Parkmöglichkeiten zur Verfügung; zusätzlich ist die Anmietung von Stellplätzen direkt am Objekt möglich.
Die Liegenschaft ist verkehrsgünstig gelegen und sowohl mit dem Pkw als auch mit öffentlichen Verkehrsmitteln gut erreichbar. Eine Anmietung der Fläche ist ab Oktober 2025 möglich.
Ein pflegeleichter Boden sorgt für eine robuste und wartungsarme Nutzung im täglichen Betrieb. Großzügige Freiflächen ermöglichen eine flexible Raumgestaltung und bieten Platz für unterschiedliche Arbeitsbereiche. Ergänzt wird die Fläche durch mehrere Einzelbüros sowie einen separaten Besprechungsraum.
Für die Mitarbeitenden steht ein Pausenraum zur Verfügung. Drei Toiletteneinheiten sind vorhanden. Die Räumlichkeiten sind teilweise klimatisiert und verfügen über eine moderne KAT-7-Sternverkabelung sowie einen leistungsstarken Glasfaseranschluss, der eine zuverlässige digitale Infrastruktur gewährleistet.
Dank der durchdachten Gebäudestruktur und der energieeffizienten technischen Ausstattung sind die Nebenkosten besonders gering. Im direkten Umfeld stehen zahlreiche kostenlose Parkmöglichkeiten zur Verfügung; zusätzlich ist die Anmietung von Stellplätzen direkt am Objekt möglich.
Die Liegenschaft ist verkehrsgünstig gelegen und sowohl mit dem Pkw als auch mit öffentlichen Verkehrsmitteln gut erreichbar. Eine Anmietung der Fläche ist ab Oktober 2025 möglich.
Sonstige Informationen
Wir bieten Ihnen 24/7 eine kostenlose Hotline (0800-6460646) an. Bei Interesse fordern Sie einfach das Exposé mit einigen weiteren Inhalten an. Dieses wird Ihnen automatisch i. d. R. kurzfristig zugesandt. Bei einem Besichtigungswunsch antworten Sie am besten per Mail auf das Exposé, wir melden uns dann umgehend mit Terminvorschlägen bei Ihnen. Bitte geben Sie immer Ihre vollständigen Kontaktdaten an.
Die Objektbeschreibung beruht ganz oder zum Teil auf Angaben des Eigentümers. Für die Richtigkeit oder Vollständigkeit übernehmen wir keine Gewähr. Die Mietpreise verstehen sich netto und werden i.d.R. mit der gesetzl. MwSt. in Höhe von 19% zusätzlich belastet.
Sie wollen Ihre Immobilie ebenfalls professionell vermarkten, rufen Sie uns an, wir stehen Ihnen von Mo. bis So. von 6.00 - 22.00 h persönlich zur Seite, über 200.000 aktive Interessenten warten bereits auf Sie.
Die Objektbeschreibung beruht ganz oder zum Teil auf Angaben des Eigentümers. Für die Richtigkeit oder Vollständigkeit übernehmen wir keine Gewähr. Die Mietpreise verstehen sich netto und werden i.d.R. mit der gesetzl. MwSt. in Höhe von 19% zusätzlich belastet.
Sie wollen Ihre Immobilie ebenfalls professionell vermarkten, rufen Sie uns an, wir stehen Ihnen von Mo. bis So. von 6.00 - 22.00 h persönlich zur Seite, über 200.000 aktive Interessenten warten bereits auf Sie.
Lage des Objektes
Die Immobilie an der Adresse Am Turm 30 in Siegburg bietet eine hervorragende Anbindung für Gewerbetreibende, die Wert auf eine strategisch günstige Lage legen. Die Nähe zu mehreren Autobahnauffahrten, darunter die A 560, die in ca. 1,5 km erreichbar ist, ermöglicht eine schnelle Verbindung zu den umliegenden Städten und Regionen. Dies ist ideal für Unternehmen, die auf effiziente Logistik und Mobilität angewiesen sind.
Der öffentliche Nahverkehr ist ebenfalls gut erschlossen, mit einer Anbindung in ca. 1 km Entfernung. Dies erleichtert nicht nur den täglichen Arbeitsweg für Mitarbeiter, sondern auch den Zugang für Kunden und Geschäftspartner. Die Nähe zum Flughafen Köln/Bonn, der in ca. 20 km erreichbar ist, bietet zudem eine ausgezeichnete Anbindung für nationale und internationale Geschäftsreisen.
In der unmittelbaren Umgebung der Immobilie befinden sich wichtige Einrichtungen, die den Arbeitsalltag erleichtern. Ein gut sortierter Supermarkt ist in ca. 1 km Entfernung zu finden, was die Versorgung mit täglichen Bedarfsgütern unkompliziert macht. Für die Gesundheit der Mitarbeiter ist ebenfalls gesorgt, da sich in der Nähe mehrere Arztpraxen und Apotheken befinden.
Sport- und Freizeitmöglichkeiten sind in Siegburg reichlich vorhanden, was eine ausgewogene Work-Life-Balance unterstützt. Die hohe Dichte an Sporteinrichtungen in der Umgebung bietet zahlreiche Optionen für sportliche Aktivitäten nach der Arbeit. Diese Aspekte machen die Lage der Immobilie besonders attraktiv für Unternehmen, die ihren Mitarbeitern ein angenehmes Arbeitsumfeld bieten möchten.
Der öffentliche Nahverkehr ist ebenfalls gut erschlossen, mit einer Anbindung in ca. 1 km Entfernung. Dies erleichtert nicht nur den täglichen Arbeitsweg für Mitarbeiter, sondern auch den Zugang für Kunden und Geschäftspartner. Die Nähe zum Flughafen Köln/Bonn, der in ca. 20 km erreichbar ist, bietet zudem eine ausgezeichnete Anbindung für nationale und internationale Geschäftsreisen.
In der unmittelbaren Umgebung der Immobilie befinden sich wichtige Einrichtungen, die den Arbeitsalltag erleichtern. Ein gut sortierter Supermarkt ist in ca. 1 km Entfernung zu finden, was die Versorgung mit täglichen Bedarfsgütern unkompliziert macht. Für die Gesundheit der Mitarbeiter ist ebenfalls gesorgt, da sich in der Nähe mehrere Arztpraxen und Apotheken befinden.
Sport- und Freizeitmöglichkeiten sind in Siegburg reichlich vorhanden, was eine ausgewogene Work-Life-Balance unterstützt. Die hohe Dichte an Sporteinrichtungen in der Umgebung bietet zahlreiche Optionen für sportliche Aktivitäten nach der Arbeit. Diese Aspekte machen die Lage der Immobilie besonders attraktiv für Unternehmen, die ihren Mitarbeitern ein angenehmes Arbeitsumfeld bieten möchten.
Anbieter kontaktieren
Anbieter
FALC Immobilien GmbH & Co. KG
Humperdickstr. 3
53773 Hennef (Sieg)
Kontakt
| Telefon | +49 2242 90103611 |
| Mobil | +49 172 7146625 |
| Fax | +49 2242 9010319 |
| Website | www.falcimmo.de |
