Helle und weitläufige Bürofläche mit effizienter Raumaufteilung
35.140 €
Kaltmiete
45.817,38 €
Warmmiete
immobilien.de Nr.: 9191819
Objektnummer: FALC-RoMu-72598
Preise & Kosten
| Kaltmiete | 35.140 € |
| Warmmiete | 45.817,38 € |
| Nebenkosten | 10677,38 € |
| Maklerprovision | 2,38 KM inkl. MwSt. |
| Kaution | 105.420 |
Größe & Zustand
| Bürofläche | 2.510 m² |
| Verfügbar ab | keine Angabe |
Objektbeschreibung
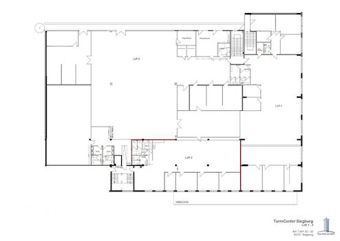
In bester Lage von Siegburg erwartet Sie hier moderne und flexibel gestaltbare Gewerbeflächen, die Raum für vielfältige Nutzungsmöglichkeiten bieten. Die Einheiten sind in drei separat zugängliche Lofts unterteilt und eignen sich für Nutzungen aus den Bereichen Büro, Dienstleistung, Agentur oder Praxis.
Loft 1 verfügt über mehrere Einzelbüros, Besprechungsräume, eine Teeküche, ein Doppelbüro sowie sanitäre Anlagen. Die Fläche ist auf klassische Bürokonzepte mit abgeschlossenen Arbeitsbereichen ausgerichtet. Loft 2 bietet eine offene Grundstruktur mit direktem Zugang zu einem Pausenraum und gemeinschaftlichen WC-Anlagen. Diese Einheit ist für offene Arbeitsformen wie Agenturen oder Coworking geeignet. Loft 3 kombiniert offene Flächen mit Einzelbüros und ist direkt vom Haupteingang erreichbar. Auch hier sind separate WC-Anlagen vorhanden, wodurch eine eigenständige Nutzung möglich ist.
Alle Lofts sind mit großen Fensterflächen ausgestattet, die eine gute natürliche Belichtung ermöglichen. Der Zugang erfolgt barrierefrei über ein zentrales Treppenhaus mit Personenaufzug. Die Bereiche sind durch separate Erschließungen und Brandschutzabschnitte voneinander getrennt, was eine flexible Aufteilung und individuelle Nutzungskonzepte unterstützt.
Die Liegenschaft ist verkehrsgünstig gelegen: Die Siegburger Innenstadt, der ICE-Bahnhof sowie die Autobahnanschlüsse sind kurzfristig erreichbar. In der näheren Umgebung befinden sich gastronomische Angebote und Einkaufsmöglichkeiten.
Die Flächen eignen sich für Unternehmen, die moderne Gewerberäume in zentraler Lage mit flexibler Struktur suchen.
Bei Interesse oder zur Vereinbarung eines Besichtigungstermins stehen wir gerne zur Verfügung.
Loft 1 verfügt über mehrere Einzelbüros, Besprechungsräume, eine Teeküche, ein Doppelbüro sowie sanitäre Anlagen. Die Fläche ist auf klassische Bürokonzepte mit abgeschlossenen Arbeitsbereichen ausgerichtet. Loft 2 bietet eine offene Grundstruktur mit direktem Zugang zu einem Pausenraum und gemeinschaftlichen WC-Anlagen. Diese Einheit ist für offene Arbeitsformen wie Agenturen oder Coworking geeignet. Loft 3 kombiniert offene Flächen mit Einzelbüros und ist direkt vom Haupteingang erreichbar. Auch hier sind separate WC-Anlagen vorhanden, wodurch eine eigenständige Nutzung möglich ist.
Alle Lofts sind mit großen Fensterflächen ausgestattet, die eine gute natürliche Belichtung ermöglichen. Der Zugang erfolgt barrierefrei über ein zentrales Treppenhaus mit Personenaufzug. Die Bereiche sind durch separate Erschließungen und Brandschutzabschnitte voneinander getrennt, was eine flexible Aufteilung und individuelle Nutzungskonzepte unterstützt.
Die Liegenschaft ist verkehrsgünstig gelegen: Die Siegburger Innenstadt, der ICE-Bahnhof sowie die Autobahnanschlüsse sind kurzfristig erreichbar. In der näheren Umgebung befinden sich gastronomische Angebote und Einkaufsmöglichkeiten.
Die Flächen eignen sich für Unternehmen, die moderne Gewerberäume in zentraler Lage mit flexibler Struktur suchen.
Bei Interesse oder zur Vereinbarung eines Besichtigungstermins stehen wir gerne zur Verfügung.
Ausstattung
| Küche | Einbauküche |
| Boden | Fliesen, Laminat |
| Balkone | 1 |
| Fahrstuhl | |
| Barrierefrei |
Die hier angebotene Gewerbe-Bürofläche überzeugt durch ihren modernen, industriellen Look, der eine offene und repräsentative Arbeitsatmosphäre schafft.
Der pflegeleichte Bodenbelag eignet sich ideal für eine intensive gewerbliche Nutzung und unterstreicht zugleich den funktionalen Charakter der Immobilie. Großzügige Freiflächen bieten vielfältige Gestaltungsmöglichkeiten für individuelle Arbeitsplatzkonzepte oder offene Arbeitsbereiche. Eine moderne KAT-7-Sternverkabelung sowie ein leistungsfähiger Glasfaseranschluss gewährleisten eine zukunftssichere technische Infrastruktur und ermöglichen effizientes Arbeiten auch bei hoher digitaler Auslastung.
Der vorhandene Empfangsbereich sorgt für einen professionellen ersten Eindruck bei Kunden und Geschäftspartnern. Für das Wohlbefinden der Mitarbeitenden stehen insgesamt fünf separate Toiletteneinheiten sowie ein Pausenraum zur Verfügung. Die Räumlichkeiten sind teilweise klimatisiert und bieten somit auch an warmen Tagen ein angenehmes Raumklima.
Besonders hervorzuheben sind die äußerst niedrigen Nebenkosten, die dank der durchdachten Gebäudestruktur und technischen Ausstattung realisierbar sind. In unmittelbarer Umgebung stehen zahlreiche kostenfreie Parkmöglichkeiten zur Verfügung, zusätzlich können bei Bedarf Stellplätze direkt am Objekt angemietet werden.
Die Anbindung an den öffentlichen Nahverkehr sowie an das überregionale Straßennetz ist ausgezeichnet, sodass der Standort sowohl mit dem Auto als auch mit Bus und Bahn komfortabel erreichbar ist. Die Flächen stehen ab Oktober 2025 zur Anmietung bereit.
Der pflegeleichte Bodenbelag eignet sich ideal für eine intensive gewerbliche Nutzung und unterstreicht zugleich den funktionalen Charakter der Immobilie. Großzügige Freiflächen bieten vielfältige Gestaltungsmöglichkeiten für individuelle Arbeitsplatzkonzepte oder offene Arbeitsbereiche. Eine moderne KAT-7-Sternverkabelung sowie ein leistungsfähiger Glasfaseranschluss gewährleisten eine zukunftssichere technische Infrastruktur und ermöglichen effizientes Arbeiten auch bei hoher digitaler Auslastung.
Der vorhandene Empfangsbereich sorgt für einen professionellen ersten Eindruck bei Kunden und Geschäftspartnern. Für das Wohlbefinden der Mitarbeitenden stehen insgesamt fünf separate Toiletteneinheiten sowie ein Pausenraum zur Verfügung. Die Räumlichkeiten sind teilweise klimatisiert und bieten somit auch an warmen Tagen ein angenehmes Raumklima.
Besonders hervorzuheben sind die äußerst niedrigen Nebenkosten, die dank der durchdachten Gebäudestruktur und technischen Ausstattung realisierbar sind. In unmittelbarer Umgebung stehen zahlreiche kostenfreie Parkmöglichkeiten zur Verfügung, zusätzlich können bei Bedarf Stellplätze direkt am Objekt angemietet werden.
Die Anbindung an den öffentlichen Nahverkehr sowie an das überregionale Straßennetz ist ausgezeichnet, sodass der Standort sowohl mit dem Auto als auch mit Bus und Bahn komfortabel erreichbar ist. Die Flächen stehen ab Oktober 2025 zur Anmietung bereit.
Sonstige Informationen
Wir bieten Ihnen 24/7 eine kostenlose Hotline (0800-6460646) an. Bei Interesse fordern Sie einfach das Exposé mit einigen weiteren Inhalten an. Dieses wird Ihnen automatisch i. d. R. kurzfristig zugesandt. Bei einem Besichtigungswunsch antworten Sie am besten per Mail auf das Exposé, wir melden uns dann umgehend mit Terminvorschlägen bei Ihnen. Bitte geben Sie immer Ihre vollständigen Kontaktdaten an.
Die Objektbeschreibung beruht ganz oder zum Teil auf Angaben des Eigentümers. Für die Richtigkeit oder Vollständigkeit übernehmen wir keine Gewähr. Die Mietpreise verstehen sich netto und werden i.d.R. mit der gesetzl. MwSt. in Höhe von 19 % zusätzlich belastet.
Sie wollen Ihre Immobilie ebenfalls professionell vermarkten, rufen Sie uns an, wir stehen Ihnen von Mo. bis So. von 6.00 - 22.00 h persönlich zur Seite, über 200.000 aktive Interessenten warten bereits auf Sie.
Die Objektbeschreibung beruht ganz oder zum Teil auf Angaben des Eigentümers. Für die Richtigkeit oder Vollständigkeit übernehmen wir keine Gewähr. Die Mietpreise verstehen sich netto und werden i.d.R. mit der gesetzl. MwSt. in Höhe von 19 % zusätzlich belastet.
Sie wollen Ihre Immobilie ebenfalls professionell vermarkten, rufen Sie uns an, wir stehen Ihnen von Mo. bis So. von 6.00 - 22.00 h persönlich zur Seite, über 200.000 aktive Interessenten warten bereits auf Sie.
Lage des Objektes
Die Immobilie an der Adresse Am Turm 30 in Siegburg bietet eine hervorragende Anbindung für Gewerbetreibende, die Wert auf eine strategisch günstige Lage legen. Die Nähe zu mehreren Autobahnauffahrten, darunter die A 560, die in ca. 1,5 km erreichbar ist, ermöglicht eine schnelle Verbindung zu den umliegenden Städten und Regionen. Dies ist ideal für Unternehmen, die auf effiziente Logistik und Mobilität angewiesen sind.
Der öffentliche Nahverkehr ist ebenfalls gut erschlossen, mit einer Anbindung in ca. 1 km Entfernung. Dies erleichtert nicht nur den täglichen Arbeitsweg für Mitarbeiter, sondern auch den Zugang für Kunden und Geschäftspartner. Die Nähe zum Flughafen Köln/Bonn, der in ca. 20 km erreichbar ist, bietet zudem eine ausgezeichnete Anbindung für nationale und internationale Geschäftsreisen.
In der unmittelbaren Umgebung der Immobilie befinden sich wichtige Einrichtungen, die den Arbeitsalltag erleichtern. Ein gut sortierter Supermarkt ist in ca. 1 km Entfernung zu finden, was die Versorgung mit täglichen Bedarfsgütern unkompliziert macht. Für die Gesundheit der Mitarbeiter ist ebenfalls gesorgt, da sich in der Nähe mehrere Arztpraxen und Apotheken befinden.
Sport- und Freizeitmöglichkeiten sind in Siegburg reichlich vorhanden, was eine ausgewogene Work-Life-Balance unterstützt. Die hohe Dichte an Sporteinrichtungen in der Umgebung bietet zahlreiche Optionen für sportliche Aktivitäten nach der Arbeit. Diese Aspekte machen die Lage der Immobilie besonders attraktiv für Unternehmen, die ihren Mitarbeitern ein angenehmes Arbeitsumfeld bieten möchten.
Der öffentliche Nahverkehr ist ebenfalls gut erschlossen, mit einer Anbindung in ca. 1 km Entfernung. Dies erleichtert nicht nur den täglichen Arbeitsweg für Mitarbeiter, sondern auch den Zugang für Kunden und Geschäftspartner. Die Nähe zum Flughafen Köln/Bonn, der in ca. 20 km erreichbar ist, bietet zudem eine ausgezeichnete Anbindung für nationale und internationale Geschäftsreisen.
In der unmittelbaren Umgebung der Immobilie befinden sich wichtige Einrichtungen, die den Arbeitsalltag erleichtern. Ein gut sortierter Supermarkt ist in ca. 1 km Entfernung zu finden, was die Versorgung mit täglichen Bedarfsgütern unkompliziert macht. Für die Gesundheit der Mitarbeiter ist ebenfalls gesorgt, da sich in der Nähe mehrere Arztpraxen und Apotheken befinden.
Sport- und Freizeitmöglichkeiten sind in Siegburg reichlich vorhanden, was eine ausgewogene Work-Life-Balance unterstützt. Die hohe Dichte an Sporteinrichtungen in der Umgebung bietet zahlreiche Optionen für sportliche Aktivitäten nach der Arbeit. Diese Aspekte machen die Lage der Immobilie besonders attraktiv für Unternehmen, die ihren Mitarbeitern ein angenehmes Arbeitsumfeld bieten möchten.
Anbieter kontaktieren
Anbieter
FALC Immobilien GmbH & Co. KG
Humperdickstr. 3
53773 Hennef (Sieg)
Kontakt
| Telefon | +49 2242 90103611 |
| Mobil | +49 172 7146625 |
| Fax | +49 2242 9010319 |
| Website | www.falcimmo.de |
