BUERO.fläche mit 180,35 m² im Brühl-Pulse in der Leipziger Innenstadt
immobilien.de Nr.: 9103121
Objektnummer: 1540/G1/E4/Eh1
Preise & Kosten
| Miete für das Objekt | Auf Anfrage |
| Nebenkosten | keine Angabe |
| Mietpreis pro m² | 18,5 € |
| Maklerprovision | provisionsfrei |
Größe & Zustand
| Bürofläche | 180,35 m² |
| Bürofläche | 180,35 m² |
| Fläche teilbar ab | 180,35 m² |
| Verfügbar ab | keine Angabe |
Objektbeschreibung
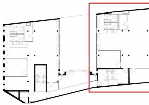
Das Objekt "Brühl Pulse" liegt im Herzen von Leipzig und wurde umfangreich und denkmalgerecht grundsaniert. Der Gewerbekomplex setzt sich hierbei aus einem Vorder-, sowie einem Hinterhaus zusammen, welche durch eine Passage verbunden sind. Im Erdgeschoss finden Sie verschiedene Ladeneinheiten, in den oberen Etagen können sich unterschiedliche Büro- und Praxisnutzer ansiedeln. Das Objekt verbindet eine historische Fassade mit einer modernen und funktionalen Innengestaltung, wobei die Mietbereiche entsprechend der Wünsche und Vorstellungen des Mieters gestaltet und ausgebaut werden können.
Aktuell stehen im Haus folgende Flächen zur Verfügung, welche sowohl einzeln als auch zusammen angemietet werden können:
- ca. 813,40m² Ladenfläche in der Passage, teilbar ab 30,42m²
- ca. 713,08m² Büro- und Praxisfläche im Vorderhaus, teilbar ab 172,72m²
- ca. 1.237,99m² Büro- und Praxisfläche im Hinterhaus, teilbar ab 196,23m²
Die Flächen verfügen über folgende Grundausstattung:
- Klimatisierung
- Aufzug
- Teeküche
- CAT-7 Datenverkabelung
- flexible Grundrissgestaltung
Stellplätze stehen in der hauseigenen Tiefgarage zur Anmietung zur Verfügung.
Aktuell stehen im Haus folgende Flächen zur Verfügung, welche sowohl einzeln als auch zusammen angemietet werden können:
- ca. 813,40m² Ladenfläche in der Passage, teilbar ab 30,42m²
- ca. 713,08m² Büro- und Praxisfläche im Vorderhaus, teilbar ab 172,72m²
- ca. 1.237,99m² Büro- und Praxisfläche im Hinterhaus, teilbar ab 196,23m²
Die Flächen verfügen über folgende Grundausstattung:
- Klimatisierung
- Aufzug
- Teeküche
- CAT-7 Datenverkabelung
- flexible Grundrissgestaltung
Stellplätze stehen in der hauseigenen Tiefgarage zur Anmietung zur Verfügung.
Sonstige Informationen
Der Mietpreis richtet sich nach Ausstattung, Mietvertragslaufzeit und Lage im Objekt und liegt zwischen ca. 16,50EUR/m² und 18,50EUR/m² zzgl. MwSt.
Flächenanmietung leicht gemacht?
Bitte sprechen Sie uns an, gern stellen wir Ihnen eine Auswahl geeigneter Büroflächenangebote zusammen. Für Fragen, ein persönliches Gespräch oder auch eine persönliche Terminvereinbarung stehen wir Ihnen gern telefonisch unter 0341|5643000 zur Verfügung.
Flächenanmietung leicht gemacht?
Bitte sprechen Sie uns an, gern stellen wir Ihnen eine Auswahl geeigneter Büroflächenangebote zusammen. Für Fragen, ein persönliches Gespräch oder auch eine persönliche Terminvereinbarung stehen wir Ihnen gern telefonisch unter 0341|5643000 zur Verfügung.
Lage des Objektes
Die zentrale Lage und das gewachsene, vielfältige Umfeld glänzen mit unterschiedlichsten Ladengeschäften und touristischen Anziehungspunkten. Alle wichtigen Standorte, wie das Rathaus, die Oper, das Gewandhaus, die Universität und alle anderen Magneten der Leipziger Innenstadt sind von hier aus fußläufig zu erreichen. Durch die direkte Lage am Leipziger Hauptbahnhof sind Sie optimal an den Nah- und Fernverkehr angeschlossen.
Der Brühl ist eine charmante und lebendige Straße im Herzen von Leipzig, die sich durch ihre historische Bedeutung und kulturelle Vielfalt auszeichnet. Hier finden sich zahlreiche Cafés, Restaurants und Geschäfte, die sowohl Einheimische als auch Besucher anziehen. Auch haben sich hier bereits die unterschiedlichsten Branchen niedergelassen.
Der Brühl ist eine charmante und lebendige Straße im Herzen von Leipzig, die sich durch ihre historische Bedeutung und kulturelle Vielfalt auszeichnet. Hier finden sich zahlreiche Cafés, Restaurants und Geschäfte, die sowohl Einheimische als auch Besucher anziehen. Auch haben sich hier bereits die unterschiedlichsten Branchen niedergelassen.
Anbieter kontaktieren
Kontakt
| Telefon | +49 341 56430-30 |
| Website | www.buero-immobilien.com |
