Großzügige Büro-/Gewerbefläche in Autobahnnähe!
4.500 €
Kaltmiete
6.500 €
Warmmiete
40 m²
Nutzfläche
immobilien.de Nr.: 9101770
Objektnummer: FALC-DK-54540
Dateien
Preise & Kosten
| Kaltmiete | 4.500 € |
| Warmmiete | 6.500 € |
| Nebenkosten | 2000 € |
| Maklerprovision | 3 Brutto Monatsmieten zzgl. 19% MwSt. |
| Kaution | 3 Monatsmieten |
Größe & Zustand
| Nutzfläche | 40 m² |
| Bürofläche | 523 m² |
| Verfügbar ab | sofort |
Objektbeschreibung
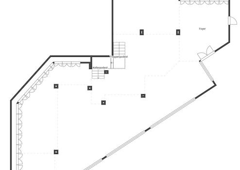
Ehemals von einer Bankfiliale genutzt, steht diese attraktive Fläche nun zur Neuvermietung frei. Im Erdgeschoss ein großer, durchgängiger Raum, mit Leichtbauwänden unterteilbar. Zugang zum Keller und zum Obergeschoss. Dort sind Einzelbüros und/oder Pausenräume möglich. Getrennte Waschräume sind ebenfalls vorhanden.
Ausstattung
| Anzahl der Etagen im Haus | 2 |
| Bad | 2 |
| Keller |
Die Fläche ist unrenoviert und wird leer, aber ansonsten so wie auf den Fotos zu sehen ist, übergeben. Der neue Mieter kann daher den Laden entsprechend eigener Vorstellungen gestalten.
Sonstige Informationen
Alle Preise verstehen sich zzgl. 19% MwSt. Aufgrund der nötigen Renovierungsarbeiten ist ein Entgegenkommen des Vermieters verhandelbar.
Wir bieten nicht nur eine kostenlose Hotline, sondern auch einen Service am Wochenende. Bei Interesse geben Sie bitte immer Ihre vollständigen Kontaktdaten an.
Die Objektbeschreibung wurde nach bestem Wissen und Gewissen erstellt. Für die Richtigkeit oder Vollständigkeit übernehmen wir jedoch keine Gewähr.
Sie wollen Ihre Immobilie ebenfalls professionell vermarkten? Rufen Sie uns gerne an, wir stehen Ihnen von Mo. bis So. von 6.00 - 22.00 h persönlich zur Seite.
Wir bieten nicht nur eine kostenlose Hotline, sondern auch einen Service am Wochenende. Bei Interesse geben Sie bitte immer Ihre vollständigen Kontaktdaten an.
Die Objektbeschreibung wurde nach bestem Wissen und Gewissen erstellt. Für die Richtigkeit oder Vollständigkeit übernehmen wir jedoch keine Gewähr.
Sie wollen Ihre Immobilie ebenfalls professionell vermarkten? Rufen Sie uns gerne an, wir stehen Ihnen von Mo. bis So. von 6.00 - 22.00 h persönlich zur Seite.
Anbieter
FALC Immobilien GmbH & Co. KG
Humperdickstr. 3
53773 Hennef (Sieg)
Kontakt
| Telefon | +49 800 6460646 |
| Mobil | +49 177 7515529 |
| Fax | +49 2242 9010319 |
| Website | www.falcimmo.de |
