Schönes Büro mit sehr hohen Decken in Lichtenberg zu mieten
5.694 €
Kaltmiete
5.694 €
Kaltmiete (netto)
7.402,2 €
Warmmiete
7
Zimmer
immobilien.de Nr.: 9080907
Objektnummer: ITI 12242
Preise & Kosten
| Kaltmiete | 5.694 € |
| Kaltmiete (netto) | 5.694 € |
| Warmmiete | 7.402,2 € |
| Nebenkosten | 1708,2 € |
| Mietpreis pro m² | 13 € |
| Maklerprovision | provisionsfreie Vermietung |
| Kaution | 3 Warmmieten |
| Stellplatz Freiplatz Miete} | 50 € |
Größe & Zustand
| Gesamtfläche | 438 m² |
| Bürofläche | 438 m² |
| Bürofläche | 438 m² |
| Zimmer | 7 |
| Baujahr | 1927 |
| Verfügbar ab | Nach Vereinbarung |
| Zustand | Gepflegt |
Energie
| Energieausweistyp | Bedarfsausweis |
| Ausstellungsdatum | 28. 08. 2024 |
| Gültig bis | 08-2034 |
| Energieeffizienzklasse | E |
| Endenergiebedarf | 136 |
| Heizungsart | Zentralheizung |
| Wesentlicher Energieträger | Fern |
| Energieträger/Befeuerung | Fernwärme |
Objektbeschreibung
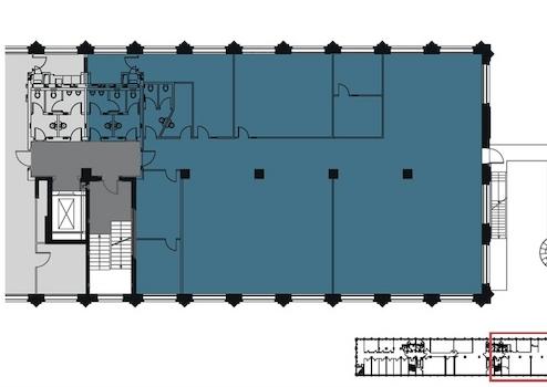
Das Büro besteht aus zwei großen Büroräumen und 5 Kleineren abgeschlossenen Büroräumen. Zur Küche gehört auch ein größeres Esszimmer. Es gibt eine Toilette im Büro und zwei im Hausflur beim Eingang zum Büro. Steckdosen und EDV Anschlüsse befinden sich in Bodentanks
Ausstattung
| Küche | Einbauküche |
| Boden | Teppich, Parkett |
| Fahrstuhl |
- Altbau
- Hohe Decken ca. 4,40 m
- Fahrstuhl
- Teppichboden mit teils Parkettboden in allen Räumen
- Serverraum
- WC im Büro
- Herren und Damen WC im Flur
- Zentralheizung
- Einbauküche mit angeschlossenen Esszimmer
- Parkplätze können mit angemietet werden
- Hohe Decken ca. 4,40 m
- Fahrstuhl
- Teppichboden mit teils Parkettboden in allen Räumen
- Serverraum
- WC im Büro
- Herren und Damen WC im Flur
- Zentralheizung
- Einbauküche mit angeschlossenen Esszimmer
- Parkplätze können mit angemietet werden
