BUERO.flächen im Forum am Brühl
10
Zimmer
immobilien.de Nr.: 9076834
Objektnummer: 292/G1/E9/Eh3
Preise & Kosten
| Miete für das Objekt | Auf Anfrage |
| Nebenkosten | keine Angabe |
| Mietpreis pro m² | 19,5 € |
| Maklerprovision | provisionsfrei |
Größe & Zustand
| Bürofläche | 396 m² |
| Bürofläche | 396 m² |
| Fläche teilbar ab | 396 m² |
| Zimmer | 10 |
| Baujahr | 1996 |
| Verfügbar ab | keine Angabe |
| Zustand | Teil Vollrenoviert |
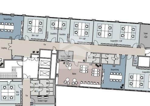
Objektbeschreibung
In zwei Bauabschnitten entstanden getrennte Karrees, die durch die Ritterpassage miteinander verbunden sind. Im Erdgeschoss haben sich diverse Einzelhandelsgeschäfte angesiedelt. Die Büroetagen werden durch moderne Aufzugsanlagen erschlossen. Die Mietbereiche können entsprechend des Raumprofils des Mieters ausgebaut und ausgestattet werden z. B:
- Glassystemwände für Besprechungsräume
- Neuer Bodenbelag (Parkett/Teppich)
- Offene Decke mit Decken-Akustiksegel
- Neue Innentüren mit teilweise Glaseinsatz
- Modernes Beleuchtungskonzept
- Modernisierung der Sanitärräume
- Neue zeitgemäße Teeküche
- Optional: Nachrüstung Kühlung
- Tiefgarage mit 167 Stellplätzen
- Fahrradstellplätze
- E-Ladeinfrastruktur
- Glassystemwände für Besprechungsräume
- Neuer Bodenbelag (Parkett/Teppich)
- Offene Decke mit Decken-Akustiksegel
- Neue Innentüren mit teilweise Glaseinsatz
- Modernes Beleuchtungskonzept
- Modernisierung der Sanitärräume
- Neue zeitgemäße Teeküche
- Optional: Nachrüstung Kühlung
- Tiefgarage mit 167 Stellplätzen
- Fahrradstellplätze
- E-Ladeinfrastruktur
Sonstige Informationen
Der Mietpreis richtet sich nach Ausstattung, Mietvertragslaufzeit und Lage im Objekt und liegt ca. zwischen 19,50 und 20,50 EUR/m² zzgl. Nebenkosten. Gern unterbreiten wir Ihnen Ihr persönliches Mietangebot.
Büroanmietung leicht gemacht?
Bitte sprechen Sie uns an, gern stellen wir Ihnen eine Auswahl geeigneter Büroflächenangebote zusammen. Für Fragen, ein persönliches Gespräch oder auch eine persönliche Terminvereinbarung stehen wir Ihnen gern telefonisch unter 0341|5643000 zur Verfügung.
Büroanmietung leicht gemacht?
Bitte sprechen Sie uns an, gern stellen wir Ihnen eine Auswahl geeigneter Büroflächenangebote zusammen. Für Fragen, ein persönliches Gespräch oder auch eine persönliche Terminvereinbarung stehen wir Ihnen gern telefonisch unter 0341|5643000 zur Verfügung.
Lage des Objektes
Das Forum am Brühl befindet sich in der Leipziger Innenstadt, direkt gegenüber des Hauptbahnhofes. Durch diese hervorragende Lage sind es nur kurze Wege bis zum Hauptbahnhof und in die Innenstadt. Es bestehen erstklassige Verbindungen zur Straßenbahn, Bus, S-Bahn und dem Außenring.
