VL3810a Verkaufs- oder Ladenbürofläche mit Anbau / Regensburg - Nord
2.300 €
Kaltmiete
2.300 €
Kaltmiete (netto)
227 m²
Nutzfläche
immobilien.de Nr.: 9006806
Objektnummer: VL 3810a
Preise & Kosten
| Kaltmiete | 2.300 € |
| Kaltmiete (netto) | 2.300 € |
| Nebenkosten | 450 € |
| Maklerprovision | Ortsübliche Provision vom Käufer/Mieter nur im Erfolgsfalle |
| Kaution | 6.900 € |
Größe & Zustand
| Nutzfläche | 227 m² |
| Ladenfläche | 227 m² |
| Verkaufsfläche | 227 m² |
| Verfügbar ab | sofort |
| Zustand | Gepflegt |
Energie
| Energieträger/Befeuerung | Gas |
Objektbeschreibung
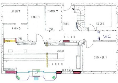
Die gepflegte Fläche zur Vermietung befindet sich an einer viel befahrenen Straße im Regensburger Norden. Eine Bushaltestelle ist in unmittelbarer Nähe.
Die Verkaufsfläche im Erdgeschoss eines Wohn- und Geschäftshauses wird über eine Gaszentralheizung beheizt.
Die Fläche ist mit Laminat und Fliesen ausgelegt. Aufgrund der Raumhöhe von ca. 3 m besteht die Möglichkeit die Decke abzuhängen. Es sind viele Steckdosen, auch mehrere Kraftsteckdosen vorhanden. Die Verkaufs- oder Ausstellungsfläche erstreckt sich nahezu über die gesamte Breite und ist klimatisiert. Durch den in Glas erstellten Anbau mit automatischer Glastüre ergeben sich hervorragende Präsentations- und Ausstellungsmöglichkeiten.
Im rückwärtigen Bereich befindet sich ein mit der Mietfläche verbundener Anbau. Dieser ist gefliest und hat zusätzlich einen Außenzugang.
Vor dem Haus stehen für Kunden und Besucher mehrere öffentliche Parkplätze kostenlos zur Verfügung. Ein separater Stellplatz am Grundstück oder ein Kellerraum können angemietet werden.
Eine Nutzung als Café, Metzgerei, Bäckerei oder Ähnliches ist möglich.
Ein interessantes Objekt, das sich für vielerlei Branchen eignet.
Die Verkaufsfläche im Erdgeschoss eines Wohn- und Geschäftshauses wird über eine Gaszentralheizung beheizt.
Die Fläche ist mit Laminat und Fliesen ausgelegt. Aufgrund der Raumhöhe von ca. 3 m besteht die Möglichkeit die Decke abzuhängen. Es sind viele Steckdosen, auch mehrere Kraftsteckdosen vorhanden. Die Verkaufs- oder Ausstellungsfläche erstreckt sich nahezu über die gesamte Breite und ist klimatisiert. Durch den in Glas erstellten Anbau mit automatischer Glastüre ergeben sich hervorragende Präsentations- und Ausstellungsmöglichkeiten.
Im rückwärtigen Bereich befindet sich ein mit der Mietfläche verbundener Anbau. Dieser ist gefliest und hat zusätzlich einen Außenzugang.
Vor dem Haus stehen für Kunden und Besucher mehrere öffentliche Parkplätze kostenlos zur Verfügung. Ein separater Stellplatz am Grundstück oder ein Kellerraum können angemietet werden.
Eine Nutzung als Café, Metzgerei, Bäckerei oder Ähnliches ist möglich.
Ein interessantes Objekt, das sich für vielerlei Branchen eignet.
Ausstattung
| Boden | Fliesen |
| Barrierefrei | |
| Keller |
Lage: Regensburg - Nord
Mietpreis: EUR 2.300,-
Nebenkosten: EUR 450,-
Fläche: ca. 227 m²
Kaution: EUR 6.900,-
Geschoss(e): EG
Bezug: sofort
teilbar ab: nein
Stellplatzanzahl: 0
Schaufensterfront: ca. 7 m
Fußweg zum RVV: 2 min.
Fahrtzeit Bahnhof: 10 min.
Fahrtzeit Autobahn: 10 min.
Fahrtzeit Flughafen: 70 min.
Objekttyp: Ausstellungsfläche
Zustand: gepflegt
Ausstattung: normal
Bodenbelag: Fliesen
Zulieferung: Anfahrt von vorne
Heizung: Gas-Heizung
Energieträger: Gas
Starkstrom: ja
barrierefrei: ja
DV-Verkabelung: ja
Keller: ja
klimatisiert: ja
Mietpreis: EUR 2.300,-
Nebenkosten: EUR 450,-
Fläche: ca. 227 m²
Kaution: EUR 6.900,-
Geschoss(e): EG
Bezug: sofort
teilbar ab: nein
Stellplatzanzahl: 0
Schaufensterfront: ca. 7 m
Fußweg zum RVV: 2 min.
Fahrtzeit Bahnhof: 10 min.
Fahrtzeit Autobahn: 10 min.
Fahrtzeit Flughafen: 70 min.
Objekttyp: Ausstellungsfläche
Zustand: gepflegt
Ausstattung: normal
Bodenbelag: Fliesen
Zulieferung: Anfahrt von vorne
Heizung: Gas-Heizung
Energieträger: Gas
Starkstrom: ja
barrierefrei: ja
DV-Verkabelung: ja
Keller: ja
klimatisiert: ja
Sonstige Informationen
Wir befinden uns im Betriebsurlaub. Ab dem 07.01.2026 sind wir wieder wie gewohnt für Sie erreichbar. Um eine schnelle Bearbeitung zu gewähren benötigen wir Ihre Telefonnummer sowie Ihre komplette Adresse.
Anbieter
TRUMMER Immobilien GmbH & Co. KG
Nußbergerstr. 6
93059 Regensburg
Kontakt
| Telefon | 0941/447633 |
| Fax | 0941/41793 |
| Website | www.trummer.de |
