Gewerbeensemble mit Hallen und Büroflächen auf großem Grundstück als Entwicklungareal
99.000 €
Kaufpreis
immobilien.de Nr.: 8948741
Objektnummer: 902 (1/902)
Preise & Kosten
| Kaufpreis | 99.000 € |
| Nebenkosten | keine Angabe |
| Maklerprovision | 7,14 % inkl. 19 % Mwst |
Größe & Zustand
| Gesamtfläche | 4.310,74 m² |
| Grundstücksfläche | 13.048 m² |
| Baujahr | 1948 |
| Verfügbar ab | ab sofort |
| Zustand | Sanierungsbeduerftig |
Objektbeschreibung
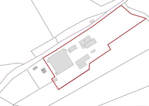
Zum Verkauf steht eine ehemalige Lager- und Produktionsstätte BJ 1948 ca. 20km südlich von Gera.
Das mit einer Gesamtnutzfläche von 4.310,74 m² bebaute große vollumzäunte Entwicklungsareal liegt umsäumt von Waldflächen in südwestlicher Außenlage von Hohenleuben.
Das Ensemble steht auf einem 8.423,00 m² großen Gewerbegrundstück.
Zur Entwicklungsfläche der ehemaligen Schuhfabrik gehört ein zusätzliches Waldgrundstück von 4.625 m² welches direkt an der Straßenseite direkt an das Gewerbegrundstück anschließt.
So stehen hier insgesamt 13.048,00 m² Grundstücksfläche zur Verfügung.
Aufgrund des opulenten Flächenangebotes und der örtlichen Gegebenheiten in geschützter Lage bietet sich das Areal beispielsweise perfekt zur Realisierung von Lagerflächen, einer Produktion, Land und Forstwirtschaft, vollständiger Umnutzung für andere Branchen, eines Actionparks oder ähnlicher Projekte an.
Die einzelnen Gebäude sind vergleichbar mit einer Hofanlage um einen geteerten Innenhof positioniert.
Das Hauptgebäude mit ehemaliger Produktion ist in erster Reihe angeordnet.
Östlich des Hauptgebäudes verteilen sich in erster Reihe eine Halle (Dach eingestürzt) und ein Nebengebäude aus Beton/Stahlbau.
im Hinteren/südlichen Teil des Areals sind Nebengebäude / Werkstattgebäude / Garagen sowie Verladegebäude mit kleinem Lager verortet.
Aufteilung der Nutzflächen auf dem Areal:
1. Hauptgebäude / ehem Produktion - Nutzfläche 1.562,49 m²
2. Halle / Dach eingestürzt - Nutzfläche 1.083,81 m²
3. Nebengebäude Beton / Stahlbau - Nutzfläche 1.275,63 m²
4. Lagergebäude klein - Nutzfläche 128,82 m²
5. Garagen / Werkstatt - Nutzfläche 189,98 m²
6. Dreier Garage - Nutzfläche 70,01 m²
Gesamtnutzfläche: 4.310,74 m²
Zum erschlossenen Grundstück gehört eine eigene Klärgrube mit 4 Kammern.
Ein Stromanschluss ist gegeben.
Aktuell sind Flächen des Garagen-/ Werkstattkomplexes und des Verladehaus teilweise vermietet (Kaltmietzins: 200,00 € netto / pro Monat).
Haben wir Interesse an dieser spannenden Entwicklungsfläche mit opulentem Flächenangebot und zusätzlichem Waldgrundstück geweckt?
Dann vereinbaren Sie noch heute Ihren persönlichen Besichtigungstermin vor Ort.
Das mit einer Gesamtnutzfläche von 4.310,74 m² bebaute große vollumzäunte Entwicklungsareal liegt umsäumt von Waldflächen in südwestlicher Außenlage von Hohenleuben.
Das Ensemble steht auf einem 8.423,00 m² großen Gewerbegrundstück.
Zur Entwicklungsfläche der ehemaligen Schuhfabrik gehört ein zusätzliches Waldgrundstück von 4.625 m² welches direkt an der Straßenseite direkt an das Gewerbegrundstück anschließt.
So stehen hier insgesamt 13.048,00 m² Grundstücksfläche zur Verfügung.
Aufgrund des opulenten Flächenangebotes und der örtlichen Gegebenheiten in geschützter Lage bietet sich das Areal beispielsweise perfekt zur Realisierung von Lagerflächen, einer Produktion, Land und Forstwirtschaft, vollständiger Umnutzung für andere Branchen, eines Actionparks oder ähnlicher Projekte an.
Die einzelnen Gebäude sind vergleichbar mit einer Hofanlage um einen geteerten Innenhof positioniert.
Das Hauptgebäude mit ehemaliger Produktion ist in erster Reihe angeordnet.
Östlich des Hauptgebäudes verteilen sich in erster Reihe eine Halle (Dach eingestürzt) und ein Nebengebäude aus Beton/Stahlbau.
im Hinteren/südlichen Teil des Areals sind Nebengebäude / Werkstattgebäude / Garagen sowie Verladegebäude mit kleinem Lager verortet.
Aufteilung der Nutzflächen auf dem Areal:
1. Hauptgebäude / ehem Produktion - Nutzfläche 1.562,49 m²
2. Halle / Dach eingestürzt - Nutzfläche 1.083,81 m²
3. Nebengebäude Beton / Stahlbau - Nutzfläche 1.275,63 m²
4. Lagergebäude klein - Nutzfläche 128,82 m²
5. Garagen / Werkstatt - Nutzfläche 189,98 m²
6. Dreier Garage - Nutzfläche 70,01 m²
Gesamtnutzfläche: 4.310,74 m²
Zum erschlossenen Grundstück gehört eine eigene Klärgrube mit 4 Kammern.
Ein Stromanschluss ist gegeben.
Aktuell sind Flächen des Garagen-/ Werkstattkomplexes und des Verladehaus teilweise vermietet (Kaltmietzins: 200,00 € netto / pro Monat).
Haben wir Interesse an dieser spannenden Entwicklungsfläche mit opulentem Flächenangebot und zusätzlichem Waldgrundstück geweckt?
Dann vereinbaren Sie noch heute Ihren persönlichen Besichtigungstermin vor Ort.
Ausstattung
| Anzahl der Etagen im Haus | 3 |
| Boden | Estrich, Linoleum |
| Garage/Stellplätze | 7 |
| Dachboden |
BJ 1948
Gewerbegrundstück: 8423 m²
Waldgrundstück: 4625 m²
1. Hauptgebäude / ehem Produktion - Nutzfläche 1.562,49 m²
2. Halle / Dach eingestürzt - Nutzfläche 1.083,81 m²
3. Nebengebäude Beton / Stahlbau - Nutzfläche 1.275,63 m²
4. Lagergebäude klein - Nutzfläche 128,82 m²
5. Garagen / Werkstatt - Nutzfläche 189,98 m²
6. Dreier Garage - Nutzfläche 70,01 m²
Gesamtnutzfläche: 4.310,74 m²
Klärgrube 4 Kammer / Erschlossen / Stromanschluss /
Trafohäuschen / Eigentum + Stadt
Innenhof geteert
Hauptareal voll umzäunt
Garagen / Werkstatt/ Verladehaus teilweise vermietet 200,00 € netto / kalt pro Monat
Gewerbegrundstück: 8423 m²
Waldgrundstück: 4625 m²
1. Hauptgebäude / ehem Produktion - Nutzfläche 1.562,49 m²
2. Halle / Dach eingestürzt - Nutzfläche 1.083,81 m²
3. Nebengebäude Beton / Stahlbau - Nutzfläche 1.275,63 m²
4. Lagergebäude klein - Nutzfläche 128,82 m²
5. Garagen / Werkstatt - Nutzfläche 189,98 m²
6. Dreier Garage - Nutzfläche 70,01 m²
Gesamtnutzfläche: 4.310,74 m²
Klärgrube 4 Kammer / Erschlossen / Stromanschluss /
Trafohäuschen / Eigentum + Stadt
Innenhof geteert
Hauptareal voll umzäunt
Garagen / Werkstatt/ Verladehaus teilweise vermietet 200,00 € netto / kalt pro Monat
Sonstige Informationen
Provision für Käufer: 7,14 % inkl. 19% MwSt.
Mit der Anfrage bei und durch Inanspruchnahme der Dienstleistung der Firma Der Makler (DM.Immo GmbH), wird ein Maklervertrag geschlossen. Sofern es durch die Tätigkeit der Firma Der Makler (DM.Immo GmbH) zu einem wirksamen Hauptvertrag mit der Eigentümerseite kommt, hat der Interessent bei Eigentümerseite kommt, hat der Interessent bei Abschluss
- eines MIETVERTRAGS keine Provision/Maklercourtage an DM.Immo GmbH zu zahlen.
- eines KAUFVERTRAGS die oben genannte Provision/Maklercourtage an DM.Immo GmbH zu zahlen.
Geldwäsche:
Als Immobilienmaklerunternehmen ist DM.Immo nach § 2 Abs. 1 Nr. 14 und § 10 Abs. 3 Geldwäschegesetz (GwG) dazu verpflichtet, bei der Begründung einer Geschäftsbeziehung die Identität des Vertragspartners festzustellen und zu überprüfen. Hierzu ist es erforderlich, dass wir nach § 11 GwG die relevanten Daten Ihres Personalausweises festhalten (wenn Sie als natürliche Person handeln) beispielsweise mittels einer Kopie. Bei einer juristischen Person benötigen wir eine Kopie des Handelsregisterauszugs, aus welchem der wirtschaftlich Berechtigte hervorgeht. Das Geldwäschegesetz sieht vor, dass der Makler die Kopien bzw. Unterlagen fünf Jahre aufbewahren muss.
Haftung:
Wir weisen darauf hin, dass die von uns weitergegebenen Objektinformationen, Unterlagen, Pläne etc. vom Verkäufer bzw. Vermieter stammen. Eine Haftung für die Richtigkeit oder Vollständigkeit der Angaben übernehmen wir daher nicht. Es obliegt daher unseren Kunden, die darin enthaltenen Objektinformationen und Angaben auf Ihre Richtigkeit hin zu überprüfen. Alle Immobilienangebote sind freibleibend und vorbehaltlich Irrtümer, Zwischenverkauf- und Vermietung oder sonstiger Zwischenverwertung.
Mit der Anfrage bei und durch Inanspruchnahme der Dienstleistung der Firma Der Makler (DM.Immo GmbH), wird ein Maklervertrag geschlossen. Sofern es durch die Tätigkeit der Firma Der Makler (DM.Immo GmbH) zu einem wirksamen Hauptvertrag mit der Eigentümerseite kommt, hat der Interessent bei Eigentümerseite kommt, hat der Interessent bei Abschluss
- eines MIETVERTRAGS keine Provision/Maklercourtage an DM.Immo GmbH zu zahlen.
- eines KAUFVERTRAGS die oben genannte Provision/Maklercourtage an DM.Immo GmbH zu zahlen.
Geldwäsche:
Als Immobilienmaklerunternehmen ist DM.Immo nach § 2 Abs. 1 Nr. 14 und § 10 Abs. 3 Geldwäschegesetz (GwG) dazu verpflichtet, bei der Begründung einer Geschäftsbeziehung die Identität des Vertragspartners festzustellen und zu überprüfen. Hierzu ist es erforderlich, dass wir nach § 11 GwG die relevanten Daten Ihres Personalausweises festhalten (wenn Sie als natürliche Person handeln) beispielsweise mittels einer Kopie. Bei einer juristischen Person benötigen wir eine Kopie des Handelsregisterauszugs, aus welchem der wirtschaftlich Berechtigte hervorgeht. Das Geldwäschegesetz sieht vor, dass der Makler die Kopien bzw. Unterlagen fünf Jahre aufbewahren muss.
Haftung:
Wir weisen darauf hin, dass die von uns weitergegebenen Objektinformationen, Unterlagen, Pläne etc. vom Verkäufer bzw. Vermieter stammen. Eine Haftung für die Richtigkeit oder Vollständigkeit der Angaben übernehmen wir daher nicht. Es obliegt daher unseren Kunden, die darin enthaltenen Objektinformationen und Angaben auf Ihre Richtigkeit hin zu überprüfen. Alle Immobilienangebote sind freibleibend und vorbehaltlich Irrtümer, Zwischenverkauf- und Vermietung oder sonstiger Zwischenverwertung.
Lage des Objektes
Hohenleuben ist eine der kleinsten Städte im Osten Thüringens und liegt im Landkreis Greiz.
Die Stadt befindet sich auf einer Anhöhe im Thüringer Schiefergebirge, dem Bergaer Sattel, in der Nähe des Flusses Leuba, der zur Leubatalsperre angestaut wurde.
Während die Leuba die östliche Grenze der Ortsflur bildet, markiert die Triebes die westliche Flurgrenze. Zum Stadtgebiet gehört auch das Dorf Brückla.
Die erfüllende Gemeinde für Hohenleuben ist Langenwetzendorf.
Hohenleuben verfügt über einen Haltepunkt an der Bahnstrecke Werdau–Mehltheuer, der den öffentlichen Nahverkehr sicherstellt.
Der ebenfalls an dieser Strecke liegende Bahnhof Loitsch-Hohenleuben befindet sich in der Flur des Weidaer Ortsteils Loitsch.
Für den Straßenverkehr ist die Landesstraße 1083 von Bedeutung, die direkt durch Hohenleuben führt und eine Verbindung zu den umliegenden Gemeinden wie Auma-Weidatal, Weida, Langenwetzendorf und der Stadt Zeulenroda-Triebes herstellt.
In Hohenleuben befindet sich die DRK Kindertagesstätte “Leubazwerge”, die nach umfassenden Sanierungsarbeiten im Innenbereich im Jahr 2022 und geplanten Um- und Ausbaumaßnahmen im Außengelände bis Frühjahr 2023 über moderne Betreuungsplätze für Kinder verfügt.
Für schulische Bildung und berufliche Qualifizierung spielt die Justizvollzugsanstalt (JVA) Hohenleuben eine wichtige Rolle.
Sie bietet Gefangenen verschiedene Bildungsmaßnahmen an, darunter Berufsausbildungen in den Bereichen Bau, Farbe und Ernährung/Gastronomie, die durch das Projekt B.I.S.S. “Berufliche Bildung und Integration Strafgefangener und Entlassener” gefördert werden.
Das Museum Reichenfels, betrieben vom Vogtländischen Altertumsforschenden Verein zu Hohenleuben e.V., präsentiert eine fast 200 Jahre alte Sammlung zur Ur- und Frühgeschichte der Region, zur Geschichte der Burgruine Reichenfels sowie zur Kunst- und Kulturgeschichte des Vogtlandes.
Die Burgruine Reichenfels selbst, eine mittelalterliche Höhenburg, liegt etwa einen Kilometer westlich des Stadtzentrums auf dem Schlossberg und ist ein beliebtes Ausflugsziel. Ein weiteres markantes Bauwerk ist der 25 Meter hohe Wasserturm im Stil eines Wehrturms, der von 1906 bis 1973 in Betrieb war.
Die Justizvollzugsanstalt Hohenleuben ist der größte Arbeitgeber der Stadt.
Sie wurde 1897 gegründet und verfügt heute über 345 Haftplätze für männliche Gefangene im geschlossenen und 25 Plätze im offenen Vollzug.
Neben der JVA sind in Hohenleuben verschiedene kleine Gewerbebetriebe ansässig, die zur lokalen Wirtschaft beitragen.
Die Leubatalsperre, auch bekannt als Talsperre Hohenleuben, liegt östlich der Stadt und dient neben der Fischaufzucht der Naherholung.
Der Stausee, der 1981 fertiggestellt wurde, bietet Möglichkeiten für verschiedene Freizeitaktivitäten. Zudem gibt es in Hohenleuben ein Waldbad, das vom Förderverein Waldbad Hohenleuben e.V. betrieben wird und insbesondere in den Sommermonaten ein beliebter Treffpunkt für Familien und Schwimmbegeisterte ist.
Die Stadt Hohenleuben wird durch die Gemeinde Langenwetzendorf verwaltet, wobei eine Außenstelle der Verwaltung weiterhin in Hohenleuben besteht.
Aktuelle Informationen und Dienstleistungen für Bürger werden regelmäßig auf der offiziellen Website der Stadt sowie im Amtsblatt veröffentlicht.
Zudem engagiert sich die Stadt aktiv in der Förderung des Ehrenamts und der Unterstützung von Kindern und Jugendlichen durch die Ernennung von ehrenamtlichen Beauftragten.
Insgesamt bietet Hohenleuben eine gut ausgebaute lokale Infrastruktur mit vielfältigen Bildungs-, Kultur- und Freizeitangeboten, die sowohl für Einwohner als auch für Besucher attraktiv sind.
Die Stadt befindet sich auf einer Anhöhe im Thüringer Schiefergebirge, dem Bergaer Sattel, in der Nähe des Flusses Leuba, der zur Leubatalsperre angestaut wurde.
Während die Leuba die östliche Grenze der Ortsflur bildet, markiert die Triebes die westliche Flurgrenze. Zum Stadtgebiet gehört auch das Dorf Brückla.
Die erfüllende Gemeinde für Hohenleuben ist Langenwetzendorf.
Hohenleuben verfügt über einen Haltepunkt an der Bahnstrecke Werdau–Mehltheuer, der den öffentlichen Nahverkehr sicherstellt.
Der ebenfalls an dieser Strecke liegende Bahnhof Loitsch-Hohenleuben befindet sich in der Flur des Weidaer Ortsteils Loitsch.
Für den Straßenverkehr ist die Landesstraße 1083 von Bedeutung, die direkt durch Hohenleuben führt und eine Verbindung zu den umliegenden Gemeinden wie Auma-Weidatal, Weida, Langenwetzendorf und der Stadt Zeulenroda-Triebes herstellt.
In Hohenleuben befindet sich die DRK Kindertagesstätte “Leubazwerge”, die nach umfassenden Sanierungsarbeiten im Innenbereich im Jahr 2022 und geplanten Um- und Ausbaumaßnahmen im Außengelände bis Frühjahr 2023 über moderne Betreuungsplätze für Kinder verfügt.
Für schulische Bildung und berufliche Qualifizierung spielt die Justizvollzugsanstalt (JVA) Hohenleuben eine wichtige Rolle.
Sie bietet Gefangenen verschiedene Bildungsmaßnahmen an, darunter Berufsausbildungen in den Bereichen Bau, Farbe und Ernährung/Gastronomie, die durch das Projekt B.I.S.S. “Berufliche Bildung und Integration Strafgefangener und Entlassener” gefördert werden.
Das Museum Reichenfels, betrieben vom Vogtländischen Altertumsforschenden Verein zu Hohenleuben e.V., präsentiert eine fast 200 Jahre alte Sammlung zur Ur- und Frühgeschichte der Region, zur Geschichte der Burgruine Reichenfels sowie zur Kunst- und Kulturgeschichte des Vogtlandes.
Die Burgruine Reichenfels selbst, eine mittelalterliche Höhenburg, liegt etwa einen Kilometer westlich des Stadtzentrums auf dem Schlossberg und ist ein beliebtes Ausflugsziel. Ein weiteres markantes Bauwerk ist der 25 Meter hohe Wasserturm im Stil eines Wehrturms, der von 1906 bis 1973 in Betrieb war.
Die Justizvollzugsanstalt Hohenleuben ist der größte Arbeitgeber der Stadt.
Sie wurde 1897 gegründet und verfügt heute über 345 Haftplätze für männliche Gefangene im geschlossenen und 25 Plätze im offenen Vollzug.
Neben der JVA sind in Hohenleuben verschiedene kleine Gewerbebetriebe ansässig, die zur lokalen Wirtschaft beitragen.
Die Leubatalsperre, auch bekannt als Talsperre Hohenleuben, liegt östlich der Stadt und dient neben der Fischaufzucht der Naherholung.
Der Stausee, der 1981 fertiggestellt wurde, bietet Möglichkeiten für verschiedene Freizeitaktivitäten. Zudem gibt es in Hohenleuben ein Waldbad, das vom Förderverein Waldbad Hohenleuben e.V. betrieben wird und insbesondere in den Sommermonaten ein beliebter Treffpunkt für Familien und Schwimmbegeisterte ist.
Die Stadt Hohenleuben wird durch die Gemeinde Langenwetzendorf verwaltet, wobei eine Außenstelle der Verwaltung weiterhin in Hohenleuben besteht.
Aktuelle Informationen und Dienstleistungen für Bürger werden regelmäßig auf der offiziellen Website der Stadt sowie im Amtsblatt veröffentlicht.
Zudem engagiert sich die Stadt aktiv in der Förderung des Ehrenamts und der Unterstützung von Kindern und Jugendlichen durch die Ernennung von ehrenamtlichen Beauftragten.
Insgesamt bietet Hohenleuben eine gut ausgebaute lokale Infrastruktur mit vielfältigen Bildungs-, Kultur- und Freizeitangeboten, die sowohl für Einwohner als auch für Besucher attraktiv sind.
