Vielseitig nutzbare Gewerbefläche in Ainring - frei ab sofort - Parkplätze vorhanden
1.300 €
Kaltmiete (netto)
1.650 €
Warmmiete
7
Zimmer
immobilien.de Nr.: 8855437
Objektnummer: D-795
Preise & Kosten
| Kaltmiete | 0 € |
| Kaltmiete (netto) | 1.300 € |
| Warmmiete | 1.650 € |
| Nebenkosten | 350 € |
| Maklerprovision | Der Gewerbemieter verpflichtet sich zur Zahlung von 2,38 netto Kaltmieten inklusive 19% MwSt. |
| Kaution | 3 Kaltmieten |
Größe & Zustand
| Gesamtfläche | 180 m² |
| Bürofläche | 180 m² |
| Zimmer | 7 |
| Baujahr | 1978 |
| Verfügbar ab | kurzfristig |
| Zustand | Gepflegt |
Objektbeschreibung
In zentraler Lage von Ainring steht eine großzügige Gewerbefläche mit rund 180 m² zur Verfügung, die sich ideal für unterschiedlichste Nutzungskonzepte eignet. Die Räumlichkeiten überzeugen durch ihre helle, offene Atmosphäre und bieten durch die großen Fensterflächen viel Tageslicht, was für ein angenehmes Arbeitsumfeld sorgt.
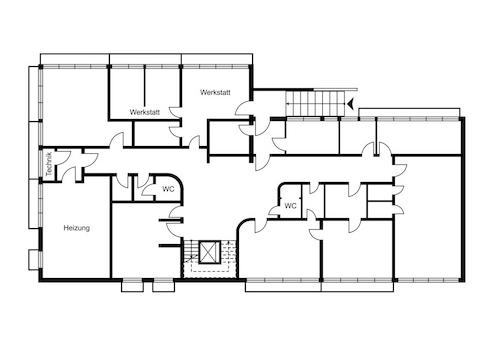
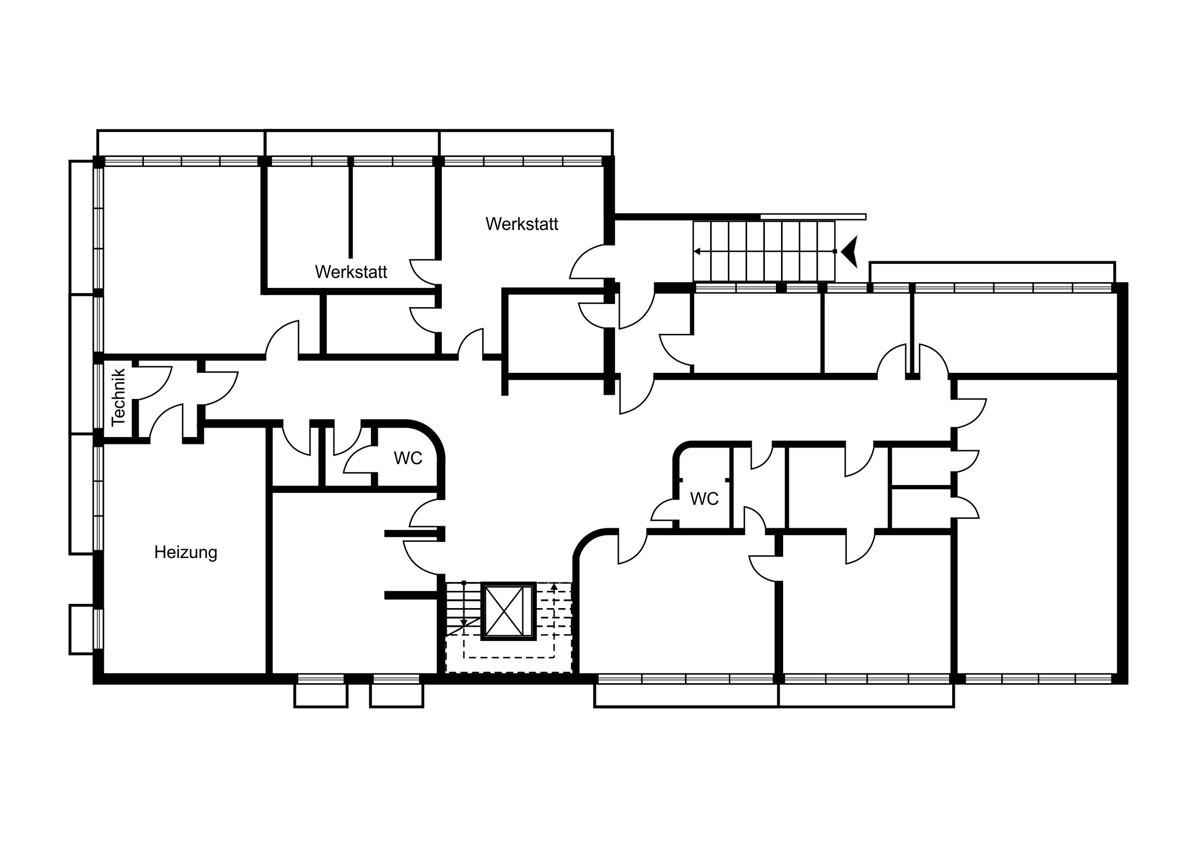
Aktuell ist die Fläche in zwei Werkstätten, zwei Labore, einen großen Konferenzraum sowie mehrere Büros und Lagerräume unterteilt. Zusätzlich stehen zwei separate WCs zur Verfügung. Die vorhandene Raumstruktur bietet eine ausgezeichnete Grundlage für Unternehmen aus den Bereichen Handwerk, Technik, Forschung oder Verwaltung, lässt sich aber bei Bedarf auch flexibel anpassen.
Netto Kaltmiete: 1.300,00 Euro zuzüglich 350,00 Euro Nebenkosten.
Gesamtmiete: 1.650 Euro
Ein separater Eingang gewährleistet einen unabhängigen Zugang zur Fläche. Parkmöglichkeiten befinden sich direkt hinter dem Gebäude und können je nach Bedarf angemietet werden. Die verkehrsgünstige Lage innerhalb von Ainring sorgt für eine gute Erreichbarkeit sowohl für Mitarbeitende als auch für Kunden und Geschäftspartner.
Kontaktieren Sie uns gerne, um weitere Informationen zu erhalten oder um einen Besichtigungstermin zu vereinbaren.
Der Energieausweis wird bei der Besichtigung übergeben.
Aktuell ist die Fläche in zwei Werkstätten, zwei Labore, einen großen Konferenzraum sowie mehrere Büros und Lagerräume unterteilt. Zusätzlich stehen zwei separate WCs zur Verfügung. Die vorhandene Raumstruktur bietet eine ausgezeichnete Grundlage für Unternehmen aus den Bereichen Handwerk, Technik, Forschung oder Verwaltung, lässt sich aber bei Bedarf auch flexibel anpassen.
Netto Kaltmiete: 1.300,00 Euro zuzüglich 350,00 Euro Nebenkosten.
Gesamtmiete: 1.650 Euro
Ein separater Eingang gewährleistet einen unabhängigen Zugang zur Fläche. Parkmöglichkeiten befinden sich direkt hinter dem Gebäude und können je nach Bedarf angemietet werden. Die verkehrsgünstige Lage innerhalb von Ainring sorgt für eine gute Erreichbarkeit sowohl für Mitarbeitende als auch für Kunden und Geschäftspartner.
Kontaktieren Sie uns gerne, um weitere Informationen zu erhalten oder um einen Besichtigungstermin zu vereinbaren.
Der Energieausweis wird bei der Besichtigung übergeben.
Sonstige Informationen
Wir sind für Sie da!
Besuchen Sie unser großes Immobilienbüro im Zentrum von Freilassing, Münchener Str. 10.
Büroöffnungszeiten - ohne Terminvereinbarung:
Montag bis Donnerstag von 9 bis 12 Uhr
Geschäftszeiten:
Montag bis Freitag: 8 bis 19 Uhr
Samstag: 9 bis 14 Uhr
Sonntag geschlossen
Wir freuen uns auf Ihre Anfrage - Ihren Anruf!
Besuchen Sie unser großes Immobilienbüro im Zentrum von Freilassing, Münchener Str. 10.
Büroöffnungszeiten - ohne Terminvereinbarung:
Montag bis Donnerstag von 9 bis 12 Uhr
Geschäftszeiten:
Montag bis Freitag: 8 bis 19 Uhr
Samstag: 9 bis 14 Uhr
Sonntag geschlossen
Wir freuen uns auf Ihre Anfrage - Ihren Anruf!
Lage des Objektes
Die Gewerbefläche befindet sich in D-83404 Ainring.
Ainring liegt mitten im Herzen des oberbayerischen Rupertiwinkels - zwischen der Festspiel- und Mozartstadt Salzburg und dem Höhenzug des Högls. Eingebettet zwischen dem herrlichen Bergpanorama der Salzburger und Berchtesgadener Alpen und dem ebenso reizvollen Voralpenland, trägt die Gemeinde das Prädikat "Luftkurort".
Ainring hat ca. 9907 Einwohner und besteht aus einer Fläche von 32,97 km². Die wunderschöne Saalach, ein 105,5 km² langer Zufluss der Salzach fließt an Ainring vorbei und bildet die Grenze zu Österreich.
In der Nähe: Golfplatz, Mittelschule Mitterfelden, Kindergarten, Sportplatz, Spielplatz, Getränkemarkt, Penny, Edeka, Globus, Schwimmbad, Autowerkstatt, Moorwegwanderung Ainring und vieles mehr.
Mit der S-Bahn (Ainring Haltestelle) erreichen Sie den Salzburger Hbf in nur 25 Min., Bad Reichenhall in nur ca. 10 Min..
Ainring liegt mitten im Herzen des oberbayerischen Rupertiwinkels - zwischen der Festspiel- und Mozartstadt Salzburg und dem Höhenzug des Högls. Eingebettet zwischen dem herrlichen Bergpanorama der Salzburger und Berchtesgadener Alpen und dem ebenso reizvollen Voralpenland, trägt die Gemeinde das Prädikat "Luftkurort".
Ainring hat ca. 9907 Einwohner und besteht aus einer Fläche von 32,97 km². Die wunderschöne Saalach, ein 105,5 km² langer Zufluss der Salzach fließt an Ainring vorbei und bildet die Grenze zu Österreich.
In der Nähe: Golfplatz, Mittelschule Mitterfelden, Kindergarten, Sportplatz, Spielplatz, Getränkemarkt, Penny, Edeka, Globus, Schwimmbad, Autowerkstatt, Moorwegwanderung Ainring und vieles mehr.
Mit der S-Bahn (Ainring Haltestelle) erreichen Sie den Salzburger Hbf in nur 25 Min., Bad Reichenhall in nur ca. 10 Min..
Anbieter kontaktieren
Anbieter
Alfred Huber Immobilien
Münchener Str. 10
83395 Freilassing
Kontakt
| Telefon | 00498654494046 |
| Mobil | 00491728956085 |
| Fax | 00498654494047 |
| Website | www.ImmoHuber.de |
