BUERO.flächen in Leipzig-Nord
immobilien.de Nr.: 8742851
Objektnummer: 1098/E8/Eh3
Mietpreis & Nebenkosten
| Miete für das Objekt | Auf Anfrage |
| Nebenkosten | Keine Angabe |
| Mietpreis pro m² | 12 € |
| Maklerprovision | provisionsfrei |
Wohnfläche, Grundstück & Bausubstanz
| Bürofläche | 2.019 m² |
| Bürofläche | 680 m² |
| Fläche teilbar ab | 680 m² |
| Verfügbar ab | keine Angabe |
Beschreibung der Immobilie
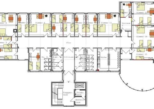
Der Bürokomplex umfasst mit 7 Stockwerken ca. 4.100,00 m² und verfügt über eine grosszügige Raumaufteilung. Tagungsräume auf jeder Etage sowie helle Fesnter sorgen für eine ideale Arbeitsatmosphäre.
Im Objekt stehen aktuell folgende Flächen zur Anmietung zur Verfügung:
- EG mit 677,416 m²
- 1. OG mit 673,667 m²
- 2. OG mit 674,216 m²
- 3. OG mit 671,981 m²
- 4. OG mit 672,456 m²
- 5. OG mit 671,349 m²
- DG mit 58,927 m²
Die Flächen können auf Wunsch sowohl einzeln, als auch in Kombination angemietet werden. Eine aufwändige Sanierung des Objektes wird 2022 stattfinden.
Im Objekt stehen aktuell folgende Flächen zur Anmietung zur Verfügung:
- EG mit 677,416 m²
- 1. OG mit 673,667 m²
- 2. OG mit 674,216 m²
- 3. OG mit 671,981 m²
- 4. OG mit 672,456 m²
- 5. OG mit 671,349 m²
- DG mit 58,927 m²
Die Flächen können auf Wunsch sowohl einzeln, als auch in Kombination angemietet werden. Eine aufwändige Sanierung des Objektes wird 2022 stattfinden.
Sonstige Informationen
Der Mietpreis richtet sich nach Ausstattung, Lage im Gebäude und Vertragslaufzeit und liegt zwischen 12,00 - 16,00 EUR/ m².
Flächenanmietung leicht gemacht?
Bitte sprechen Sie uns an, gern stellen wir Ihnen eine Auswahl geeigneter Büroflächenangebote zusammen. Für Fragen, ein persönliches Gespräch oder auch eine persönliche Terminvereinbarung stehen wir Ihnen gern telefonisch unter 0341 | 5643000 zur Verfügung.
Flächenanmietung leicht gemacht?
Bitte sprechen Sie uns an, gern stellen wir Ihnen eine Auswahl geeigneter Büroflächenangebote zusammen. Für Fragen, ein persönliches Gespräch oder auch eine persönliche Terminvereinbarung stehen wir Ihnen gern telefonisch unter 0341 | 5643000 zur Verfügung.
Karte wird geladen...
Objektstandort
Zschortauer Straße 44
04129 Leipzig
Lage & Infrastruktur
Objektstandort
Zschortauer Straße 44
04129 Leipzig
Der Standort ist sehr verkehrsgünstig an der vierspurig ausgebauten B 2 zur nahen Autobahn A 14 (ca. 3 km), zum Flughafen (13 Minuten), zum BMW-Werk (10 Minuten), zum Porsche-Werk (14 Minuten) und zum Messegelände (5 Minuten) und nur rd.10 Autominuten von der Leipziger Innenstadt entfernt gelegen. Innerörtliche Anbindungen,wie auch Berlin,Dresden sowie Halle sind sehr schnell erreichbar.
Kontaktanfrage senden
Über den Anbieter
BUERO.IMMOBILIEN GmbH & Co KG
Markt 9
04109 Leipzig
Kontakt
| Telefon | +49(0)341-5643000 |
| Fax | +49(0)341-5643030 |
| Website | www.buero-immobilien.com |
Ansprechpartner/in
Team Vermietung
Weitere Angebote des Anbieters
9
BUERO.flächen mit 430 m² mit Blick auf die THOMASKIRCHE ...
Büro / Praxen
04109 Leipzig
Das bis 1972 als Bankgebäude genutzte denkmalgeschützte Jugendstilhaus wurde umfangreich saniert und besticht durch seine historische Fassade und den direkten Blick auf die Thomaskirche. Durch ein repräsentatives ...
keine Angabe
Preis
15 €
Mietpreis pro m²
948 m²
Gesamtfläche
948 m²
Teilbar ab
3
Exclusive BUERO.flächen in direkter Innenstadtlage
Büro / Praxen
04109 Leipzig
Das bis 1972 als Bankgebäude genutzte denkmalgeschützte Jugendstilhaus wurde umfangreich saniert und besticht durch seine historische Fassade und den direkten Blick auf die Thomaskirche. Durch ein repräsentatives ...
keine Angabe
Preis
16 €
Mietpreis pro m²
1.797 m²
Gesamtfläche
519 m²
Teilbar ab
3
Exclusive BUERO.flächen in direkter Innenstadtlage
Büro / Praxen
04109 Leipzig
Das bis 1972 als Bankgebäude genutzte denkmalgeschützte Jugendstilhaus wurde umfangreich saniert und besticht durch seine historische Fassade und den direkten Blick auf die Thomaskirche. Durch ein repräsentatives ...
keine Angabe
Preis
16 €
Mietpreis pro m²
1.467 m²
Gesamtfläche
519 m²
Teilbar ab
3
Exclusive BUERO.flächen in direkter Innenstadtlage
Büro / Praxen
04109 Leipzig
Das bis 1972 als Bankgebäude genutzte denkmalgeschützte Jugendstilhaus wurde umfangreich saniert und besticht durch seine historische Fassade und den direkten Blick auf die Thomaskirche. Durch ein repräsentatives ...
keine Angabe
Preis
16 €
Mietpreis pro m²
1.037,61 m²
Gesamtfläche
519 m²
Teilbar ab
7
BUERO.flächen mit 330 m² mit Blick auf die THOMASKIRCHE ...
Büro / Praxen
04109 Leipzig
Das bis 1972 als Bankgebäude genutzte denkmalgeschützte Jugendstilhaus wurde umfangreich saniert und besticht durch seine historische Fassade und den direkten Blick auf die Thomaskirche. Durch ein repräsentatives ...
keine Angabe
Preis
15 €
Mietpreis pro m²
330 m²
Gesamtfläche
330 m²
Teilbar ab