Büro in Osnabrück zu mieten, 115 qm auf 2 Etagen
1.273 €
Kaltmiete
115 m²
Nutzfläche
immobilien.de Nr.: 8669677
Objektnummer: 209
Preise & Kosten
| Kaltmiete | 1.273 € |
| Nebenkosten | 168 € |
| Mietpreis pro m² | 11,07 € |
| Maklerprovision | 3,57 Nettokaltmieten inkl. 19% MWSt. |
| Kaution | 3.819 € |
Größe & Zustand
| Nutzfläche | 115 m² |
| Gesamtfläche | 115 m² |
| Bürofläche | 115 m² |
| Baujahr | 2000 |
| Verfügbar ab | nach Absprache |
| Zustand | Modernisiert |
Energie
| Energieausweistyp | Verbrauch |
| Gültig bis | 2035-06-16 |
| Baujahr (laut Energieausweis) | 2000 |
| Energieverbrauchkennwert | 113.90 kWh/(m²*a) |
| Heizungsart | Fernwärme |
| Wesentlicher Energieträger | Fern |
| Energieträger/Befeuerung | Gas |
Objektbeschreibung
Dieses sehr helle und freundliche Büro ist hochwertig ausgestattet. Sie finden zu der Fußbodenheizung einen angenehmen hellen Fussboden in Holzoptik. Die Wände sind hell gestaltet. (eine blaue Wand kann geändert werden) Die Fenster sind raumhoch mit Isolierglas 1,3.
Im Erdgeschoss haben Sie zur Zeit eine angenehme Trennung aus Glas, die als gesondertes Büro genutzt werden kann. Hier befindet sich, wie im weitern Raum und im Untergeschoss eine Klimanlage.
Beide Räume verfügen über Kabelkanäle mit ausreichend Anschlusmöglichkeiten für Strom, Telefon und Internet.
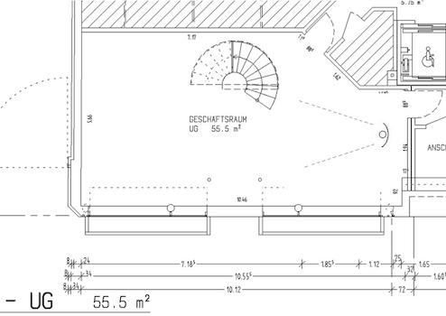
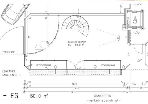
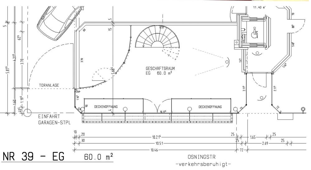
Die sehr große Fensterfront kann ideal für Werbefolie genutzt werden. (ggf. kann die vorhandene Folierung sogar weiter genutzt werden). Die Räumlichkeiten teilen sich mit je ca. 60 m² pro Etage auf. Das Untergeschoss ist vollwertig zu nutzen, da es durch die großzügige Lichtschachtanlage über die gesamte Schaufensteranlagenbreite hinreichend mit Tageslischt versorgt wird.
Eine Toilette befindet sich im Hausflur des Erdgeschosses und ist durch einen Schlüssel zugänglich.
Im Haus selber gibt es einen Aufzug der hervorragend genutzt werden kann wenn schwere Ware in das Untergeschoss transportiert werden soll.
*** Die Kaltmiete versteht sich zzgl. der gesetzlichen Mehrwersteuer ***
*** ist aber auch ohne MWSt. möglich ***
Die Nebenkosten belaufen sich auf 168,- Euro im Monat.
Der Verbrauch für die Heizung liegt zusätzlichen bei ca. 142,- Euro.
Es gibt eine verbrauchsabhängige Direktabrechnung mit den Stadtwerken
*** Das Büro ist zur Darstellung einmal mit Möbeln eingerichtet, die Möbel können auf Wunsch auf www.davea.de geordert werden ***
Im Erdgeschoss haben Sie zur Zeit eine angenehme Trennung aus Glas, die als gesondertes Büro genutzt werden kann. Hier befindet sich, wie im weitern Raum und im Untergeschoss eine Klimanlage.
Beide Räume verfügen über Kabelkanäle mit ausreichend Anschlusmöglichkeiten für Strom, Telefon und Internet.
Die sehr große Fensterfront kann ideal für Werbefolie genutzt werden. (ggf. kann die vorhandene Folierung sogar weiter genutzt werden). Die Räumlichkeiten teilen sich mit je ca. 60 m² pro Etage auf. Das Untergeschoss ist vollwertig zu nutzen, da es durch die großzügige Lichtschachtanlage über die gesamte Schaufensteranlagenbreite hinreichend mit Tageslischt versorgt wird.
Eine Toilette befindet sich im Hausflur des Erdgeschosses und ist durch einen Schlüssel zugänglich.
Im Haus selber gibt es einen Aufzug der hervorragend genutzt werden kann wenn schwere Ware in das Untergeschoss transportiert werden soll.
*** Die Kaltmiete versteht sich zzgl. der gesetzlichen Mehrwersteuer ***
*** ist aber auch ohne MWSt. möglich ***
Die Nebenkosten belaufen sich auf 168,- Euro im Monat.
Der Verbrauch für die Heizung liegt zusätzlichen bei ca. 142,- Euro.
Es gibt eine verbrauchsabhängige Direktabrechnung mit den Stadtwerken
*** Das Büro ist zur Darstellung einmal mit Möbeln eingerichtet, die Möbel können auf Wunsch auf www.davea.de geordert werden ***
Ausstattung
| Inserat befindet sich im Stockwerk | 0 |
| Boden | Laminat |
| Fahrstuhl | |
| Keller |
* hochfertige, angepasste Jalousien können übernommen werden
* Klimaanlage (Multisplit) vorhanden
* Fußbodenheizung
* neue Heizentrale (2013)
* Wandstrahlungsheizung im Untergeschoss
* Alarmanlage
* Aufzug (behindertengerecht)
* Treppenhausreinigung und Herausstellen der Mülltonnen
in den Nebenkosten enthalten
* Küche nicht vorhanden !!
* PKW-Stellplatz auf Anfrage für 58,- Euro
* Klimaanlage (Multisplit) vorhanden
* Fußbodenheizung
* neue Heizentrale (2013)
* Wandstrahlungsheizung im Untergeschoss
* Alarmanlage
* Aufzug (behindertengerecht)
* Treppenhausreinigung und Herausstellen der Mülltonnen
in den Nebenkosten enthalten
* Küche nicht vorhanden !!
* PKW-Stellplatz auf Anfrage für 58,- Euro
Lage des Objektes
Das Büro oder Ladengeschäft befindet sich in zentraler Lage in der Neustadt. Bis zum Bahnhof sind es nur wenige Minuten. Ebenso zur Autobahn oder in die Innenstadt.
Sie finden hier weitere Gewerbetreibende wie z.B. einen Bäcker direkt gegenüber, einen Imbiss, einen Friseur, einen Bringdienst, ein Elektrogeschäft u.v.m.
Osnabrück ist mit rund 158.000 Menschen wirtschaftliches und kulturelles Oberzentrum im westlichen Teil Niedersachsens und Herzstück des Osnabrücker Landes. Osnabrück ist das Zentrum eines großen Bistums, war über Jahrhunderte Hauptstadt eines unabhängigen deutschen Landes, des Hochstiftes Osnabrück, das 1802 in den Turbulenzen der napoleonischen Zeit seine Unabhängigkeit verlor und hannoverisch wurde. Die reizvolle Lage zwischen Teutoburger Wald und Wiehengebirge mit zahlreichen Heilbädern in unmittelbarer Nachbarschaft bieten einen hohen Freizeitwert. Als einzige deutsche Großstadt liegt Osnabrück mitten in einem Naturpark dem UNESCO Geopark TERRA.vita. Dabei reichen die "Grünen Finger" bis in die Stadt, so dass es an den meisten Stellen möglich ist, in Naturnähe zu wohnen. Den Eindruck einer alten Stadt vermitteln der Dom und das Barockschloss sowie die als Besucherziel sehr beliebte Altstadt mit mittelalterlichen Wehranlagen und Fachwerkhäusern. Im letzten Jahr feierte das Rathaus sein 500-jähriges Jubiläum mit einem großen Festakt im Herzen der Stadt.
Zahlen Stand 2012:
Einwohner Osnabrück + Umland 274.000
Fläche Osnabrück + Umland 11.980qm
weitere Infos unter:
www.osnabrueck.de
Sie finden hier weitere Gewerbetreibende wie z.B. einen Bäcker direkt gegenüber, einen Imbiss, einen Friseur, einen Bringdienst, ein Elektrogeschäft u.v.m.
Osnabrück ist mit rund 158.000 Menschen wirtschaftliches und kulturelles Oberzentrum im westlichen Teil Niedersachsens und Herzstück des Osnabrücker Landes. Osnabrück ist das Zentrum eines großen Bistums, war über Jahrhunderte Hauptstadt eines unabhängigen deutschen Landes, des Hochstiftes Osnabrück, das 1802 in den Turbulenzen der napoleonischen Zeit seine Unabhängigkeit verlor und hannoverisch wurde. Die reizvolle Lage zwischen Teutoburger Wald und Wiehengebirge mit zahlreichen Heilbädern in unmittelbarer Nachbarschaft bieten einen hohen Freizeitwert. Als einzige deutsche Großstadt liegt Osnabrück mitten in einem Naturpark dem UNESCO Geopark TERRA.vita. Dabei reichen die "Grünen Finger" bis in die Stadt, so dass es an den meisten Stellen möglich ist, in Naturnähe zu wohnen. Den Eindruck einer alten Stadt vermitteln der Dom und das Barockschloss sowie die als Besucherziel sehr beliebte Altstadt mit mittelalterlichen Wehranlagen und Fachwerkhäusern. Im letzten Jahr feierte das Rathaus sein 500-jähriges Jubiläum mit einem großen Festakt im Herzen der Stadt.
Zahlen Stand 2012:
Einwohner Osnabrück + Umland 274.000
Fläche Osnabrück + Umland 11.980qm
weitere Infos unter:
www.osnabrueck.de
Anbieter kontaktieren
Anbieter
Die Immobilienmaklerin
Am Natruper Holz 33
49076 Osnabrück-Westerberg
Kontakt
| Telefon | +49 162 2168 353 |
| Mobil | 00491622168353 |
| Fax | +49(541)75042985 |
