BUERO.flächen bis 360 m² im Zentrum Bautzens Kesselstraße für individuelle Nutzungen
immobilien.de Nr.: 8661628
Objektnummer: 123/G2/E1/Eh2
Preise & Kosten
| Miete für das Objekt | Auf Anfrage |
| Nebenkosten | 2,5 € |
| Maklerprovision | 3,0 Nettomonatsmieten |
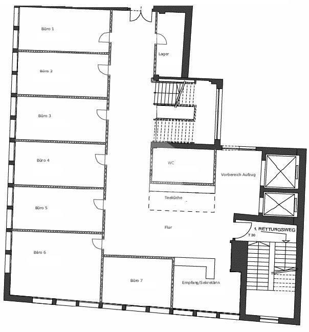
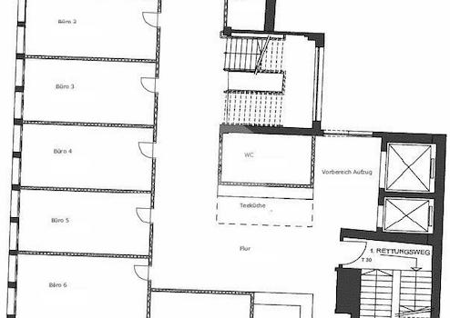
Größe & Zustand
| Bürofläche | 360 m² |
| Bürofläche | 230 m² |
| Fläche teilbar ab | 230 m² |
| Verfügbar ab | keine Angabe |
Objektbeschreibung
Die neu entstehende Gewerbeeinheit im 3. Obergeschoss wird über dem zentralen Eingangsbereich in der Kesselstraße erschlossen. Die Mietbereiche können nach Mieterwunsch ausgestattet werden. Aktuell befindet sich die Fläche in dem früheren Kaufhaus in unausgebautem Zustand. Es können Büroflächen, Praxisflächen aber auch Flächen für betreutes Wohnen hergestellt werden. Die Ausbauzeit beträgt 9-12 Monate.
Sonstige Informationen
Der Mietpreis auf Anfrage. Bitte informieren Sie uns über Ihr geplantes Geschäftsmodell. Wir unterbreiten Ihnen ein persönliches Mietangebot.
Lage des Objektes
Bautzen gilt als der bedeutendste Arbeitsort der Region Oberlausitz- Niederschlesien und ist somit ein reizvoller Standort für alle Wirtschaftsbereiche. Über die nahe gelegene Bundesstraße B6 ist eine zügige Anbindung an die Autobahn A4 gegeben. Das denkmalgeschützte Wohn- und Geschäftshaus befindet sich direkt in der Fußgängerzone der historischen Innenstadt von Bautzen. Wahrzeichen wie der Reichenturm, das Rathaus oder der Dom St. Petri sind in unmittelbarer Nähe. Das Kornmarktcenter ist fußläufig in 2 Minuten erreicht. Im Erdgeschoss des Gebäudes befindet sich ein Drogeriemarkt.
