Helle Ladeneinheit in zentraler Lage von Weil der Stadt zu vermieten
1.487,5 €
Kaltmiete
1.844,5 €
Warmmiete
119 m²
Nutzfläche
1
Zimmer
immobilien.de Nr.: 8644979
Objektnummer: FALC-SB-54073
Preise & Kosten
| Kaltmiete | 1.487,5 € |
| Warmmiete | 1.844,5 € |
| Nebenkosten | 357 € |
Größe & Zustand
| Nutzfläche | 119 m² |
| Zimmer | 1 |
| Baujahr | 1968 |
| Letzte Modernisierung | 2022 |
| Verfügbar ab | 01 |
| Zustand | Gepflegt |
Energie
| Energieausweistyp | Bedarfsausweis |
| Gültig bis | 15.09.2032 |
| Energieeffizienzklasse | F |
| Endenergiebedarf | 247 |
Objektbeschreibung
Ab sofort wird diese Bürofläche in Weil der Stadt, zur Miete angeboten. Das Büro befindet sich in einem gepflegten Zustand. Das Gebäude selbst wurde im Jahr 1968 erbaut und regelmäßig renoviert.
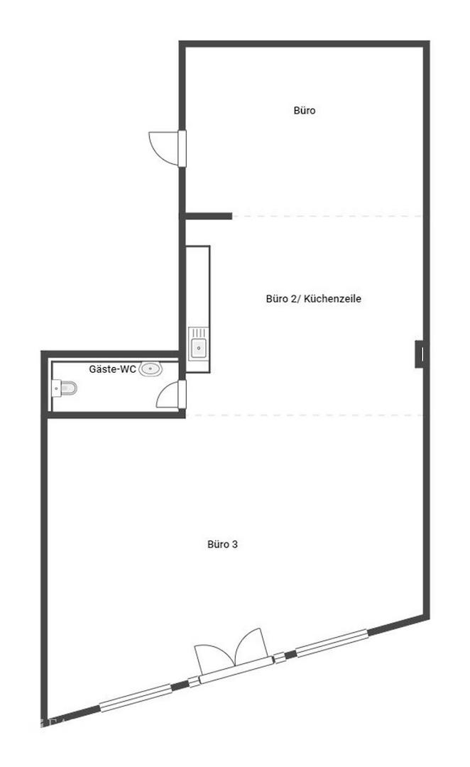
Es verfügt über ein Zimmer und ist zudem unterkellert. Die großzügigen Fensterflächen lassen sich ideal als Schaufenster für Ihre Werbung nutzen. Die Bauweise des Gebäudes ist massiv. Im Jahr 2022 wurde eine neue Pelletheizung installiert, was zu einer modernen Ausstattung beiträgt.
Der Bodenbelag besteht aus Teppichboden. Zusätzlich bietet das Büro ein Gäste-WC und eine Küchenzeile. Im Untergeschoss steht ein praktischer Kellerraum zur Verfügung.
Das Büro befindet sich in einer normalen Ausstattungsqualität und ist ideal für Büro- oder Praxisnutzung geeignet.
Es verfügt über ein Zimmer und ist zudem unterkellert. Die großzügigen Fensterflächen lassen sich ideal als Schaufenster für Ihre Werbung nutzen. Die Bauweise des Gebäudes ist massiv. Im Jahr 2022 wurde eine neue Pelletheizung installiert, was zu einer modernen Ausstattung beiträgt.
Der Bodenbelag besteht aus Teppichboden. Zusätzlich bietet das Büro ein Gäste-WC und eine Küchenzeile. Im Untergeschoss steht ein praktischer Kellerraum zur Verfügung.
Das Büro befindet sich in einer normalen Ausstattungsqualität und ist ideal für Büro- oder Praxisnutzung geeignet.
Ausstattung
| Boden | Teppich |
| Barrierefrei | |
| Keller |
- Barrierefrei
- Seniorengerecht
- Gäste WC
- Abstellraum im Keller
- Teppichboden
- Unterkellert
- Küchenzeile
- großer, offener Raum (kann unterteilt werden)
- Steckdosen und Internet-/ LAN-verkabelung vorhanden
- Seniorengerecht
- Gäste WC
- Abstellraum im Keller
- Teppichboden
- Unterkellert
- Küchenzeile
- großer, offener Raum (kann unterteilt werden)
- Steckdosen und Internet-/ LAN-verkabelung vorhanden
Sonstige Informationen
Die Objektbeschreibung beruht ganz oder zum Teil auf Angaben des Eigentümers. Für die Richtigkeit oder Vollständigkeit übernehmen wir keine Gewähr.
Vereinbaren Sie noch heute einen unverbindlichen Besichtigungstermin und überzeugen Sie sich selbst! Terminvorschläge an: wds@falcimmo.de
Da wir die Termine für Besichtigungen mit größter Sorgfalt planen, bitten wir Sie um Verständnis dafür, dass Termine ausschließlich in schriftlicher Form per E-Mail vereinbart werden können. Um fair und gerecht gegenüber jedem unserer Interessenten zu werden ist dies unumgänglich. Wir freuen uns über Ihre Kontaktaufnahme!
Geben Sie bitte immer die vollständige ADRESSE und RUFNUMMER an!
Ihr Ansprechpartner:Stephan Buchholz, +49175 888 90 88, wds@falcimmo.de
Besuchen Sie uns auch in unserem Büro in: Stuttgarter Str.23, 71263 Weil der Stadt
Sie denken selbst über die Veräußerung Ihrer Immobilie nach oder möchten einfach nur wissen, was diese wert ist? Bei uns erhalten Sie kostenlos eine professionelle Wertermittlung! Gehen Sie hierzu auf: www.falcimmo.de/Das-ist-meine-Immobilie-wert.htm oder kontaktieren Sie uns.
Vereinbaren Sie noch heute einen unverbindlichen Besichtigungstermin und überzeugen Sie sich selbst! Terminvorschläge an: wds@falcimmo.de
Da wir die Termine für Besichtigungen mit größter Sorgfalt planen, bitten wir Sie um Verständnis dafür, dass Termine ausschließlich in schriftlicher Form per E-Mail vereinbart werden können. Um fair und gerecht gegenüber jedem unserer Interessenten zu werden ist dies unumgänglich. Wir freuen uns über Ihre Kontaktaufnahme!
Geben Sie bitte immer die vollständige ADRESSE und RUFNUMMER an!
Ihr Ansprechpartner:Stephan Buchholz, +49175 888 90 88, wds@falcimmo.de
Besuchen Sie uns auch in unserem Büro in: Stuttgarter Str.23, 71263 Weil der Stadt
Sie denken selbst über die Veräußerung Ihrer Immobilie nach oder möchten einfach nur wissen, was diese wert ist? Bei uns erhalten Sie kostenlos eine professionelle Wertermittlung! Gehen Sie hierzu auf: www.falcimmo.de/Das-ist-meine-Immobilie-wert.htm oder kontaktieren Sie uns.
Lage des Objektes
Die Bürofläche befindet sich in zentraler Lage in Weil der Stadt. Das Objekt ist nur 0,2 km vom Stadtzentrum entfernt und bietet somit eine optimale Erreichbarkeit für Mitarbeiter und Kunden. Für Pendler ist die Autobahn nur 7,7 km entfernt, was eine schnelle Anbindung an umliegende Städte ermöglicht.
Die Immobilie zeichnet sich somit durch ihre zentrale Lage und die gute Anbindung an das Stadtzentrum, Autobahn sowie Bildungseinrichtungen aus. Dies macht sie zu einer attraktiven Wahl für Unternehmen, die nach einer optimal gelegenen Bürofläche suchen.
Die Immobilie zeichnet sich somit durch ihre zentrale Lage und die gute Anbindung an das Stadtzentrum, Autobahn sowie Bildungseinrichtungen aus. Dies macht sie zu einer attraktiven Wahl für Unternehmen, die nach einer optimal gelegenen Bürofläche suchen.
Anbieter kontaktieren
Anbieter
FALC Immobilien GmbH & Co. KG
Humperdickstr. 3
53773 Hennef (Sieg)
Kontakt
| Telefon | +49 800 6460646 |
| Mobil | +49 175 8889088 |
| Fax | +49 2242 9010319 |
| Website | www.falcimmo.de |
