LADEN.GASTRO.flächen im NEUBAU in der KONSUMZENTRALE in Plagwitz
immobilien.de Nr.: 8565142
Objektnummer: 705/G6/E1/Eh3
Preise & Kosten
| Miete für das Objekt | Auf Anfrage |
| Nebenkosten | keine Angabe |
| Mietpreis pro m² | 16,5 € |
| Maklerprovision | provisionsfrei |
Größe & Zustand
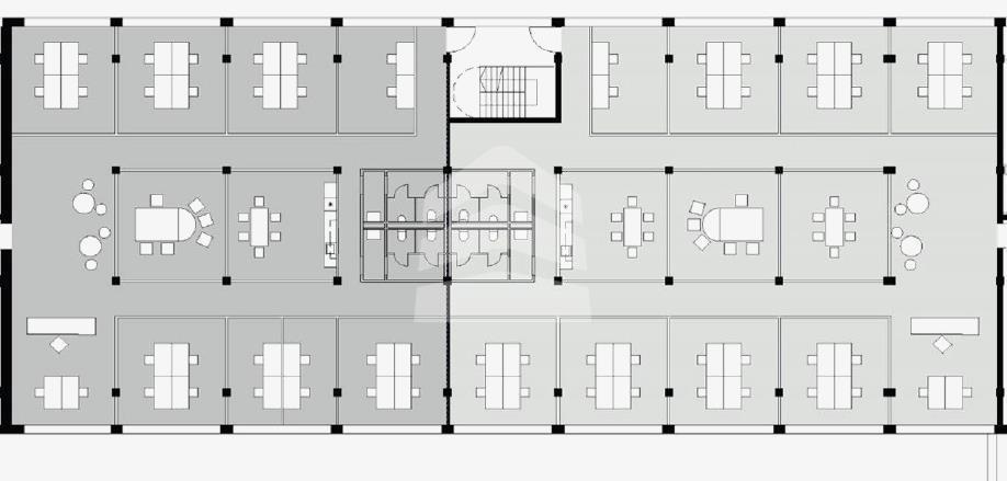
| Gesamtfläche | 520 m² |
| Ladenfläche | 520 m² |
| Verkaufsfläche | m² |
| Gastrofläche | 520 m² |
| Fläche teilbar ab | 260 m² |
| Verfügbar ab | keine Angabe |
Objektbeschreibung
Das imposante Industriedenkmal KONSUMZENTRALE wurde 1929 von Fritz Höger entworfen, ca. 1930 erbaut und steht unter Denkmalschutz. In den originalgetreu wiederhergestellten Flächen haben sich heute nach der Sanierung neben der Zentrale der Konsumgenossenschaft Leipzig eG inzwischen viele andere Unternehmen niedergelassen. Die im Neubau zur Vermietung stehenden Flächen werden über 2 Eingangsbereiche und Aufzugsanlagen erschlossen. Die Mietbereiche können nach dem Raumprofil des Nutzers ausgebaut und ausgestattet werden.
Im Erdgeschoss befindet sich eine Ladenflächen mit 260 m² und eine Gastronomiefläche mit 280 m² und 170 m² Außenfläche für eine Terrasse.
Beide können auch zusammen angemietet werden.
PKW Stellplätze sind auf dem Gelände bzw. einem benachbarten Parkdeck vorhanden.
Im Erdgeschoss befindet sich eine Ladenflächen mit 260 m² und eine Gastronomiefläche mit 280 m² und 170 m² Außenfläche für eine Terrasse.
Beide können auch zusammen angemietet werden.
PKW Stellplätze sind auf dem Gelände bzw. einem benachbarten Parkdeck vorhanden.
Sonstige Informationen
Der Mietpreis richtet sich nach Ausstattung, Lage im Gebäude und Vertragslaufzeit und liegt zwischen 16,50 EUR/ m² und 18,50 EUR/ m².
Flächenanmietung leicht gemacht?
Bitte sprechen Sie uns an, gern stellen wir Ihnen eine Auswahl geeigneter Büroflächenangebote zusammen. Für Fragen, ein persönliches Gespräch oder auch eine persönliche Terminvereinbarung stehen wir Ihnen gern telefonisch unter 0341 | 5643000 zur Verfügung.
Flächenanmietung leicht gemacht?
Bitte sprechen Sie uns an, gern stellen wir Ihnen eine Auswahl geeigneter Büroflächenangebote zusammen. Für Fragen, ein persönliches Gespräch oder auch eine persönliche Terminvereinbarung stehen wir Ihnen gern telefonisch unter 0341 | 5643000 zur Verfügung.
Lage des Objektes
In den 1880er Jahren war Plagwitz bereits eine in vielen Ländern der Welt bekannte Adresse – als Herkunftsort damals moderner und zuverlässiger Industrieerzeugnisse. Heute gilt diese Region als eines der innovativsten und interessantesten Stadtgebiete Leipzigs. Die Revitalisierung und Schaffung urbaner Strukturen, die zentrale Lage im Stadtgebiet und die Lage am Karl-Heine-Kanal, haben Plagwitz nicht nur zu einem beliebten Standort für Unternehmen sondern auch zum Wohnen entwickelt. In den früheren Industriegebäuden entstanden kreative Varianten zahlreicher Lofts, oft mit Blick über das Wasser".
Anbieter kontaktieren
Kontakt
| Telefon | +49(0)341-5643000 |
| Fax | +49(0)341-5643030 |
| Website | www.buero-immobilien.com |
