ETW - Etage mit Potenzial! 146 m² Wfl. u. 8,5 Zimmer - Ohne Bank finanzierbar!
79.000 €
Kaufpreis
11
Zimmer
immobilien.de Nr.: 8042332
Objektnummer: JNOSTRO
Preise & Kosten
| Kaufpreis | 79.000 € |
| Nebenkosten | keine Angabe |
| Maklerprovision | 7,14% inkl.Mwst. zu zahlen vom Käufer |
Größe & Zustand
| Gesamtfläche | 151,31 m² |
| Bürofläche | 145,75 m² |
| Bürofläche | 70 m² |
| Grundstücksfläche | 407 m² |
| Fläche teilbar ab | 70 m² |
| Zimmer | 11 |
| Baujahr | 1730 |
| Letzte Modernisierung | 1992 |
| Verfügbar ab | sofort |
| Zustand | Gepflegt |
Energie
| Heizungsart | Etagenheizung |
| Energieträger/Befeuerung | Gas |
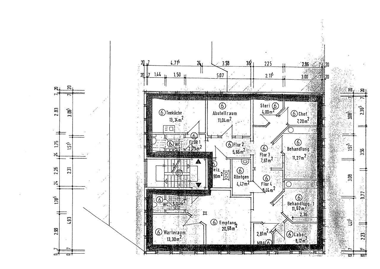
Objektbeschreibung
Ein Wohnprojekt mit Gestaltungsspielraum - Finanzierung ohne Bank möglich!
Diese 146 m² große Etage eines denkmalgeschützten Fachwerkhauses in der Altstadt von Osterode am Harz bietet eine seltene Gelegenheit für Käufer mit Ideen und handwerklichem Geschick. Die ehemalige Praxisfläche kann mit überschaubarem Aufwand in eine großzügige Wohnung umgestaltet werden - und das Beste: Die Finanzierung ist auch ohne Bank möglich!
Ihre Vorteile im Überblick:
- 8,5 Zimmer - Viel Platz für individuelle Wohnkonzepte
- Historischer Fachwerk-Charme mit Gestaltungsspielraum
- Zwei separate Eingänge für flexible Nutzungsmöglichkeiten
- Großzügiger Eingangsflur mit Potenzial für offenen Wohnbereich
- Bestehende WC-Anlagen - Möglichkeit zum Umbau in ein modernes Badezimmer
- Attraktiver Kaufpreis - Ideal für individuelle Gestaltung
- Privatfinanzierung ohne Bank möglich!
Diese Immobilie richtet sich besonders an Käufer, die Freude daran haben, Wohnraum nach ihren eigenen Vorstellungen zu gestalten. Die zentrale Lage in der Altstadt bietet eine ausgezeichnete Infrastruktur mit kurzen Wegen zu Geschäften, Cafés und Freizeiteinrichtungen.
Nutzen Sie diese Gelegenheit und verwirklichen Sie Ihre Wohnideen in einer außergewöhnlichen Immobilie!
Jetzt Besichtigungstermin vereinbaren!
Diese 146 m² große Etage eines denkmalgeschützten Fachwerkhauses in der Altstadt von Osterode am Harz bietet eine seltene Gelegenheit für Käufer mit Ideen und handwerklichem Geschick. Die ehemalige Praxisfläche kann mit überschaubarem Aufwand in eine großzügige Wohnung umgestaltet werden - und das Beste: Die Finanzierung ist auch ohne Bank möglich!
Ihre Vorteile im Überblick:
- 8,5 Zimmer - Viel Platz für individuelle Wohnkonzepte
- Historischer Fachwerk-Charme mit Gestaltungsspielraum
- Zwei separate Eingänge für flexible Nutzungsmöglichkeiten
- Großzügiger Eingangsflur mit Potenzial für offenen Wohnbereich
- Bestehende WC-Anlagen - Möglichkeit zum Umbau in ein modernes Badezimmer
- Attraktiver Kaufpreis - Ideal für individuelle Gestaltung
- Privatfinanzierung ohne Bank möglich!
Diese Immobilie richtet sich besonders an Käufer, die Freude daran haben, Wohnraum nach ihren eigenen Vorstellungen zu gestalten. Die zentrale Lage in der Altstadt bietet eine ausgezeichnete Infrastruktur mit kurzen Wegen zu Geschäften, Cafés und Freizeiteinrichtungen.
Nutzen Sie diese Gelegenheit und verwirklichen Sie Ihre Wohnideen in einer außergewöhnlichen Immobilie!
Jetzt Besichtigungstermin vereinbaren!
Ausstattung
| Anzahl der Etagen im Haus | 5 |
| Inserat befindet sich im Stockwerk | 1 |
| Boden | Fliesen, Kunststoff |
| Keller |
Fassade: Fachwerk
Dach: Satteldach mit Dachgauben/ außenliegende Rinnen und Fallrohre
Wände/Bodenbeläge: PVC-Belag, Warte- und Empfangsraum sowie Flur mit Teppichbelag.
Bäder gefliest.
Fenster: Doppelfenster aus Holz mit Sprossung, Innen mit Isolierverglasung,
Außen mit Einfachverglasung.
Heizung: Gas-Etagenheizung
Energieausweis: entfällt, Ausnahmetatbestand GEG
Sanitär: Patienten- und Mitarbeiter-WC. Jeweils einfache Ausstattung mit Handwaschbecken
Elektroinstallation: einfache Elektroinstallationen
Türen: einfache Holztüren, Behandlungsräume mit Glastüren.
Hauseingang/Treppenhaus: Hauseingangstür aus Holz mit Glasausschnitt, massive Geschosstreppen mit Zwischenpodesten und Metallgeländer.
Dach: Satteldach mit Dachgauben/ außenliegende Rinnen und Fallrohre
Wände/Bodenbeläge: PVC-Belag, Warte- und Empfangsraum sowie Flur mit Teppichbelag.
Bäder gefliest.
Fenster: Doppelfenster aus Holz mit Sprossung, Innen mit Isolierverglasung,
Außen mit Einfachverglasung.
Heizung: Gas-Etagenheizung
Energieausweis: entfällt, Ausnahmetatbestand GEG
Sanitär: Patienten- und Mitarbeiter-WC. Jeweils einfache Ausstattung mit Handwaschbecken
Elektroinstallation: einfache Elektroinstallationen
Türen: einfache Holztüren, Behandlungsräume mit Glastüren.
Hauseingang/Treppenhaus: Hauseingangstür aus Holz mit Glasausschnitt, massive Geschosstreppen mit Zwischenpodesten und Metallgeländer.
Sonstige Informationen
Eine virtuelle Besichtigung zeigt das Angebot im Detail, wird mit dem Exposé versendet. Ebenso eine umfangreiche Fotogalerie und einen Finanzierungsvorschlag / Tilgungsplan.
Bitte unverbindlich das Kontaktformular ausfüllen.
Bitte unverbindlich das Kontaktformular ausfüllen.
Lage des Objektes
Das Angebot befindet sich im Zentrum von Osterode. Geschäfte des täglichen Bedarfs sind umliegend zu erreichen, das Umfeld hinterlässt einen soliden Eindruck.
Die Kreisstadt Osterode am Harz liegt in Niedersachsen, im Landkreis Göttingen und hat ca. 21.000 Einwohner. Clausthal-Zellerfeld liegt ca. 12 km südlich , Northeim ca. 24 km nordöstlich und Göttingen ca. 43 km nordöstlich. Durch Osterode führen mehrere Bundesstraßen. Die vierspurig ausgebaute B 243 ist die westliche Hauptverbindung zwischen Nord- und Südharz. Die B 241 und B 498 verbinden den Solling mit dem Ostharz.
Zu den Betrieben, die hier ihren Sitz haben, gehören Harz-Energie, Kamax und Piller sowie die Harz-Weser-Werkstätten. Der Standort ist
hauptsächlich geprägt durch mittelständische Unternehmen des produzierenden Gewerbes.
Allen voran sind auch namhafte Unternehmen ansässig aus der Medizintechnik, sowie mehrere Ämter des Kreises, wie die Bundesagentur für Arbeit oder das Katasteramt. Osterrode zeichnet sich ebenfalls in der Tourismuswirtschaft durch seine Lage am nördlichsten Mittelgebirge aus. Sie gilt als "Stadt vor den Toren des Nationalparks Harz".
Die Kreisstadt Osterode am Harz liegt in Niedersachsen, im Landkreis Göttingen und hat ca. 21.000 Einwohner. Clausthal-Zellerfeld liegt ca. 12 km südlich , Northeim ca. 24 km nordöstlich und Göttingen ca. 43 km nordöstlich. Durch Osterode führen mehrere Bundesstraßen. Die vierspurig ausgebaute B 243 ist die westliche Hauptverbindung zwischen Nord- und Südharz. Die B 241 und B 498 verbinden den Solling mit dem Ostharz.
Zu den Betrieben, die hier ihren Sitz haben, gehören Harz-Energie, Kamax und Piller sowie die Harz-Weser-Werkstätten. Der Standort ist
hauptsächlich geprägt durch mittelständische Unternehmen des produzierenden Gewerbes.
Allen voran sind auch namhafte Unternehmen ansässig aus der Medizintechnik, sowie mehrere Ämter des Kreises, wie die Bundesagentur für Arbeit oder das Katasteramt. Osterrode zeichnet sich ebenfalls in der Tourismuswirtschaft durch seine Lage am nördlichsten Mittelgebirge aus. Sie gilt als "Stadt vor den Toren des Nationalparks Harz".
Anbieter kontaktieren
Kontakt
| Telefon | +49 4541 802040 |
| Mobil | +49 175 4153482 |
| Fax | +49 4541 8305743 |
| Website | immofux.com |
