Düsseldorf Reisholz I unverwechselbare Büroflächen I klimatisiert
immobilien.de Nr.: 8036197
Objektnummer: 1505
Preise & Kosten
| Kaltmiete | 0 € |
| Nebenkosten | keine Angabe |
| Mietpreis pro m² | 12,5 € |
| Maklerprovision | Das Angebot ist provisionspflichtig für den Mieter |
| Stellplatz Duplex Miete | 30 € |
| Stellplatz Freiplatz Miete} | 25 € |
| Stellplatz Parkhaus Miete | 50 € |
| Stellplatz Tiefgarage Miete | 50 € |
Größe & Zustand
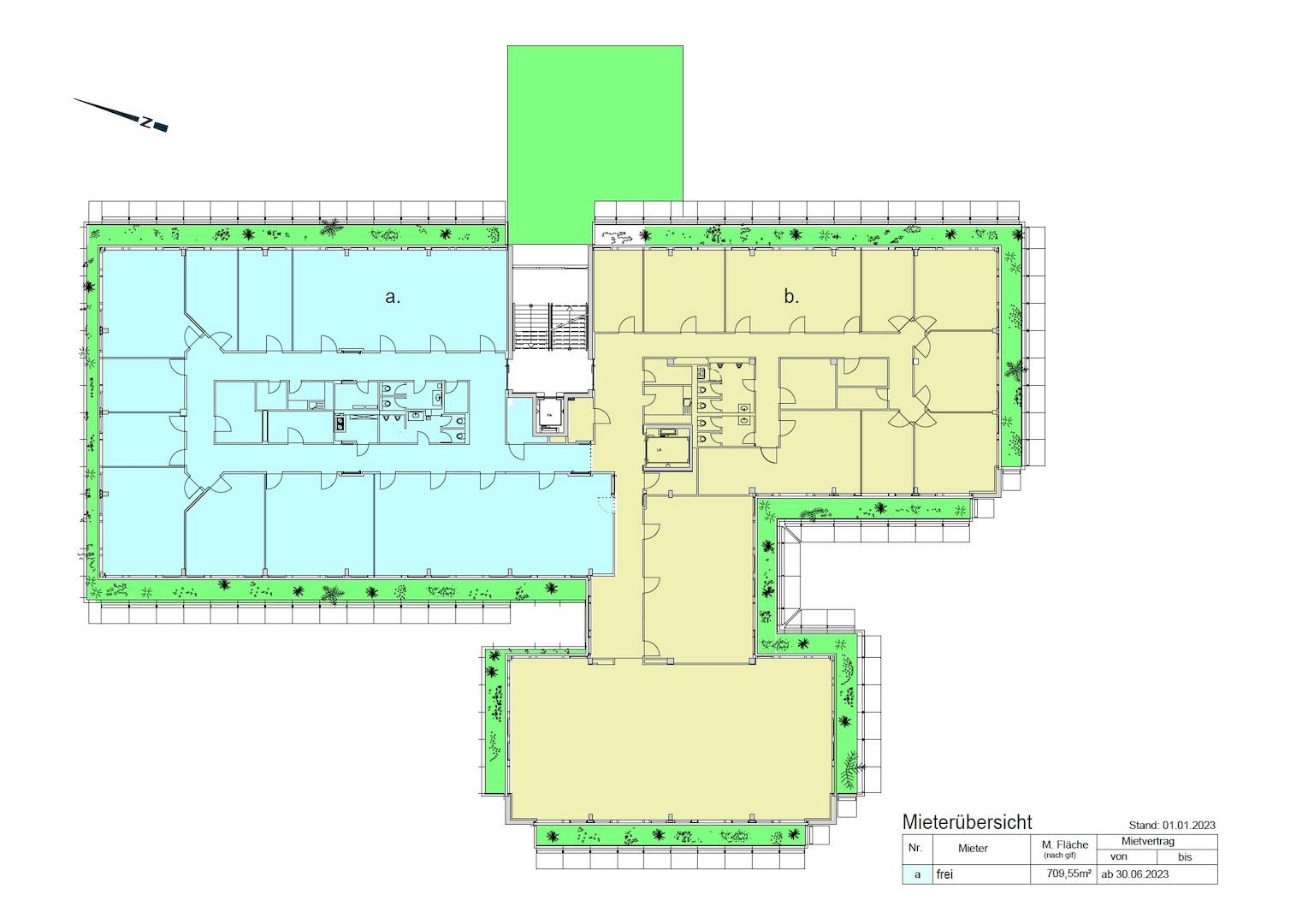
| Gesamtfläche | 15.527,6 m² |
| Bürofläche | 4.782 m² |
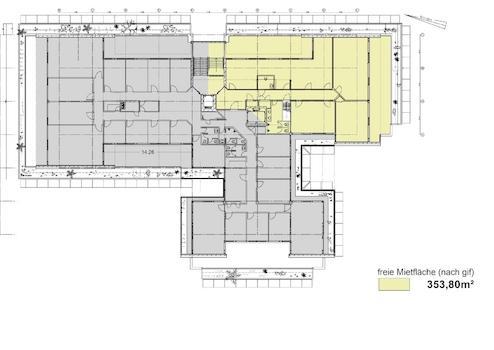
| Fläche teilbar ab | 354 m² |
| Baujahr | 1982 |
| Verfügbar ab | kurzfristig |
Energie
| Energieausweistyp | Bedarfsausweis |
| Gültig bis | 2025-12-02 |
| Baujahr (laut Energieausweis) | 1982 |
| Heizungsart | Zentralheizung |
| Wesentlicher Energieträger | Gas |
| Energieträger/Befeuerung | Gas |
Objektbeschreibung
Eine selbstbewusste moderne Architektur mit großzügigen Erschließungen. Die Einbeziehung von Außen- und Innenraum wird durch umlaufende bepflanzte Balkone und aufwändig begrünte Dachflächen erreicht. Aus der Verbindung von Natur und Innenraum resultiert eine optimale Arbeitsplatzqualität. Raumluftkühlung in allen Flächen mit geringen Verbrauchskosten - nicht vergleichbar mit Klimaanlagen! In Fachkreisen ist die Notwendigkeit der Raumluftkühlung unbestritten. In den nächsten Jahren werden die Nutzer nur noch solche Objekte akzeptieren. Variable, kostengünstige Raumaufteilungen vom Einzelbüro bis zu großen Gruppenräumen im Raster von 1,80 m nach den Erfordernissen des Mieters.
Ausstattung
| Anzahl der Etagen im Haus | 5 |
| Boden | Teppich |
| Fahrstuhl |
- Eingang und Treppenhaus aus Granit
- Aufzüge für je 11 Personen
- Fußbodenheizung
- erstklassige Ausstattung der Toilettenanlagen
- umlaufende Bodenkanäle sowie Kabelbahnen in der Abhangdecke für Starkstrom- und EDV-Verkabelung.
- arbeitsplatzgerechte Beleuchtung
- Deckenkühlgeräten, busgesteuert mit Einzelraumregelungin allen Büroflächen.
- Aufzüge für je 11 Personen
- Fußbodenheizung
- erstklassige Ausstattung der Toilettenanlagen
- umlaufende Bodenkanäle sowie Kabelbahnen in der Abhangdecke für Starkstrom- und EDV-Verkabelung.
- arbeitsplatzgerechte Beleuchtung
- Deckenkühlgeräten, busgesteuert mit Einzelraumregelungin allen Büroflächen.
Lage des Objektes
Die Lage inmitten eines heterogenen Wohn- und Gewerbegebietes und angrenzend an ein Waldgebiet bietet eine optimale Verkehrsanbindung zur Innenstadt nur ca. 12 Minuten und zum Flughafen Düsseldorf nur ca. 20 Minuten. Auch mit Bus, S- und Straßenbahn bestehen sehr gute Anbindungen. Ebenfalls optimal sind die Parkmöglichkeiten in der hauseigenen Tiefgarage und direkt vor den Gebäuden.
Anbieter kontaktieren
Anbieter
corealis Commercial Real Estate GmbH
Hohe Straße 8-10
40213 Düsseldorf
Kontakt
| Telefon | +49(211) 52288470 |
| Fax | +49(211) 52288479 |
| Website | www.corealis.de |
