provisionsfrei I Büroflächen im Immermanntower I individueller Mieterausbau

40210 Düsseldorf, Nordrhein-Westfalen
Frei ab: kurzfristig
13,00 € Preis/m²
Bürofläche
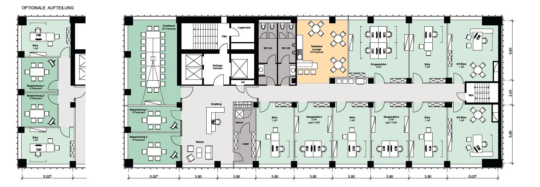
485 m²
Etage
11
Fahrstuhl

Mietpreis & Nebenkosten

Kaltmiete0 €
Nebenkosten Keine Angabe
Mietpreis pro m²13 €
Stellplatz Freiplatz Miete60 €
Stellplatz Tiefgarage Miete100 €

Wohnfläche, Grundstück & Bausubstanz

Gesamtfläche485 m²
Bürofläche485 m²
Etagen7
Stockwerk11
Baujahr1956
Verfügbar ab kurzfristig

Beschreibung der Immobilie

Bei diesem Objekt handelt es sich um ein 16-geschossiges Bürohaus, das mit ca. 55 Metern zu den höchsten und sicherlich auch imposantesten Gebäuden in Düsseldorf zählt. Das Gebäude wurde zwischen 1987 bis 1991 umfangreich modernisiert, und fortlaufend bis 2014 renoviert. Der Tower bietet mit seiner reflektierenden Spiegelglasfassade eine außergewöhnliche Ästhetik. Der hochwertige Foyer- und Eingangsbereich entspricht einer zeitgemäßen Qualität. Stellplätze stehen in der hauseigenen Tiefgarage, als auch im Innenhof zur Verfügung. In den Erdgeschossflächen der Immobilie befinden sich Einzelhändler, ab dem 1. Obergeschoss bietet der Tower ausschließlich effektiv zugeschnittene Büroflächen.

Ausstattungsmerkmale

Fahrstuhl
- repräsentative Eingangshalle mit Pförtnerloge
- 3 Personen Aufzüge
- Teppichboden
- Leichtbauwände mit Glasfasertapete
- Fensterbänke in dunklem Marmor mit
umlaufenden Kabelkanälen
- bildschirmgerechte Beleuchtungskörper
- getrennte Damen-/Herren Sanitärräume
- Teeküche
- hauseigene Tiefgarage sowie Garagenhof

Energie

B
Energieeffizienzklasse B
EnergieausweistypBedarfsausweis
Gültig bis2009-05-26
Baujahr (laut Energieausweis)1956
EnergieeffizienzklasseB
Heizungsart Zentralheizung
Wesentlicher EnergieträgerFern
Energieträger/Befeuerung Fernwärme

Karte wird geladen...
40210 Düsseldorf – Nordrhein-Westfalen

Lage & Infrastruktur

Das Objekt befindet sich im Stadtzentrum von Düsseldorf und bietet optimale Verkehrsanbindung. In nördlicher Richtung gelangt man über den Kennedydamm in 10 bis 15 Autominuten zum Messegelände, sowie zum Flughafen. In westlicher Richtung erreicht man über die Rhein-Knie-Brücke die Autobahnanschlüsse A52 (in Richtung Mönchengladbach/Ruhrgebiet) sowie die A57 (in Richtung Köln/Krefeld). Durch die unmittelbare Nähe zum Hauptbahnhof verfügt man über eine exzellente Anbindung an den öffentlichen Personennahverkehr und das Fernstreckennetz
Ansprechpartner/in: Firma
corealis Commercial Real Estate GmbH
Hohe Straße 8-10, 40213 Düsseldorf

Weitere Angebote in Düsseldorf