Neubau | Kennedydamm | Panoramablick auf Rhein und Rheinpark
immobilien.de Nr.: 8020996
Objektnummer: 00416
Preise & Kosten
| Kaltmiete | 0 € |
| Nebenkosten | keine Angabe |
| Mietpreis pro m² | 23 € |
| Stellplatz Tiefgarage Miete | 0 € |
Größe & Zustand
| Gesamtfläche | 6.234 m² |
| Bürofläche | 5.690 m² |
| Fläche Sonstiges | 189 m² |
| Fläche teilbar ab | 210 m² |
| Baujahr | 2022 |
| Verfügbar ab | Q2/2023 |
Objektbeschreibung
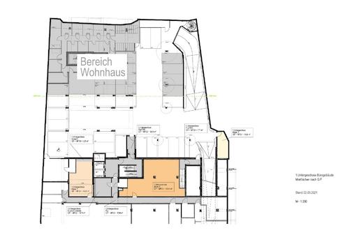
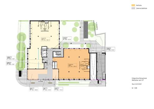
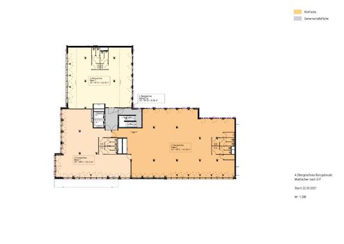
Mit ca. 5.879 m² Mietfläche mit variablen Möglichkeiten für Single, Team- und Open- Space-Offices präsentiert sich das Objekt als attraktiver hochwertiger Neubau in direkter Rheinnähe. Die Flächen im Objekt bieten Ihnen höchste Flexibilität für bestmögliche Kommunikation und Unternehmenswachstum. Es liegt in einem lebendigen urbanen Umfeld mit diversen Restaurants und bietet Grünflächen sowie Dachterrassen mit Panoramablick auf Rhein und Rheinpark. Die Raumtiefen des Objekts ermöglichen die Darstellung verschiedener Workplaces. Durch bodentiefe Fenster mit dahinterliegender Prallscheibe ist ruhiges und fokussiertes Arbeiten möglich. Weiters wird eine LEED-Gold-Zertifizierung angestrebt und das Gebäude ist mit Heiz-/ Kühlsegeln sowie einem Sonnenschutz ausgestattet.
Ausstattung
| Boden | Stein, Teppich, Parkett |
| Fahrstuhl |
- Einladende Lobby mit Möglichkeiten zum Co-Working
- Lebendiges urbanes Umfeld mit diversen Restaurants und Cafés
- 5 Dachterrassen mit Panoramablick auf Rhein und Rheinpark
- Hochwertige und individualisierte Bau-und Ausstattungsbeschreibung
- Raumtiefen ermöglichen die Darstellung verschiedener Workplaces
- Hochwertige Fassadengestaltung
- Heiz-/ Kühlsegel
- Kostengünstige Beheizung über Fernwärmeanschluss
- Bodentiefe Fenster mit dahinterliegender Prallscheibe für fokussiertes Arbeiten
- Hohe Anforderungen an ökologische und ökonomische Nachhaltigkeit (LEED-Gold Zertifizierung)
- 3,15 m Gesamthöhe EG - 5.OG
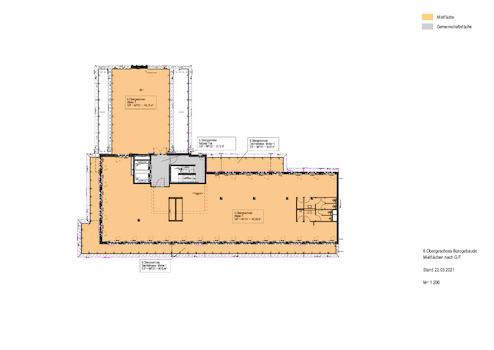
- 3,20 m Gesamthöhe 6.OG
- 62 Tiefgaragenstellplätze inkl. E-Mobilität
- Sichere Fahrradstellplätze im begrünten Innenhof
- Terrasse im 5. OG (ca. 68 m²)
- Dachterrasse im 6. OG (ca. 121 m²)
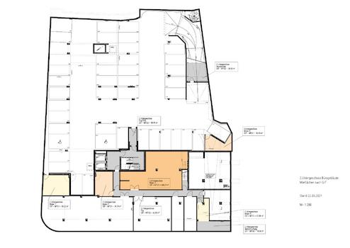
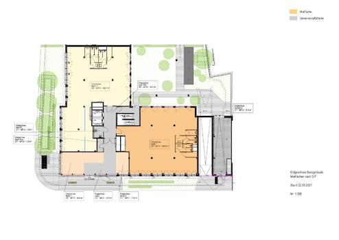
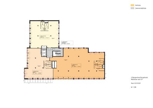
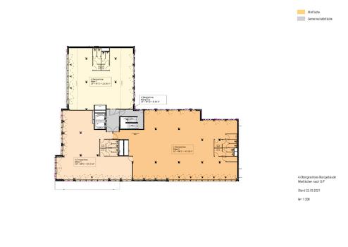
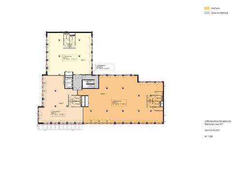
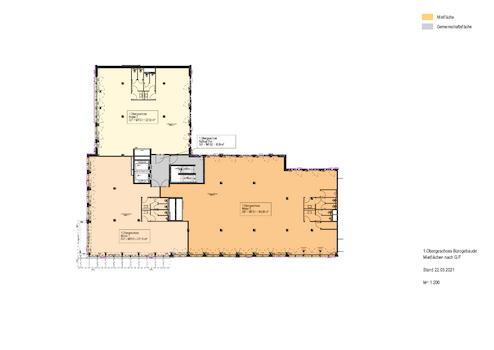
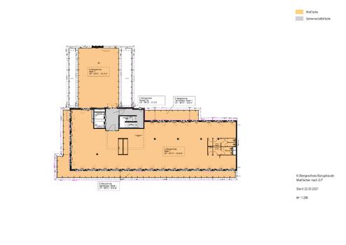
- siehe Teilbarkeiten auf den Grundrissen
- Lebendiges urbanes Umfeld mit diversen Restaurants und Cafés
- 5 Dachterrassen mit Panoramablick auf Rhein und Rheinpark
- Hochwertige und individualisierte Bau-und Ausstattungsbeschreibung
- Raumtiefen ermöglichen die Darstellung verschiedener Workplaces
- Hochwertige Fassadengestaltung
- Heiz-/ Kühlsegel
- Kostengünstige Beheizung über Fernwärmeanschluss
- Bodentiefe Fenster mit dahinterliegender Prallscheibe für fokussiertes Arbeiten
- Hohe Anforderungen an ökologische und ökonomische Nachhaltigkeit (LEED-Gold Zertifizierung)
- 3,15 m Gesamthöhe EG - 5.OG
- 3,20 m Gesamthöhe 6.OG
- 62 Tiefgaragenstellplätze inkl. E-Mobilität
- Sichere Fahrradstellplätze im begrünten Innenhof
- Terrasse im 5. OG (ca. 68 m²)
- Dachterrasse im 6. OG (ca. 121 m²)
- siehe Teilbarkeiten auf den Grundrissen
Lage des Objektes
Das Objekt liegt in unmittelbarer Rheinnähe im etablierten Büromarkt “Kennedydamm” mit optimaler Anbindung an den ÖPNV und das Straßennetz. Es befinden sich diverse Buslinien, S- und U-Bahn-Stationen im direkten Umfeld. Autobahnanbindung über A44, A52, A46 und A3. Darüber hinaus bietet das Objekt ein lebendiges, urbanes Umfeld mit diversen Restaurants und Cafés in unmittelbarer Nähe.
Anbieter kontaktieren
Anbieter
corealis Commercial Real Estate GmbH
Hohe Straße 8-10
40213 Düsseldorf
Kontakt
| Telefon | 004921152288470 |
| Fax | 004921152288479 |
| Website | www.corealis.de |
