Repräsentative Büroflächen in Meerbusch-Osterrath zur Miete

immobilien.de Nr.: 9508314 Objektnummer: 1913_003
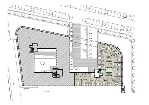
Musterplanung | Open Office
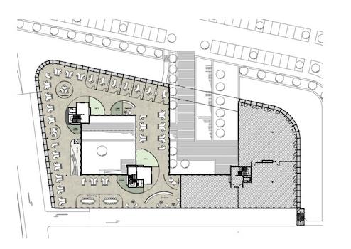
Musterplanung | Single Office

Mietpreis & Nebenkosten

Kaltmiete 0 €
Nebenkosten Keine Angabe
Maklerprovision Dieses Angebot ist provisionspflichtig für den Mieter!

Wohnfläche, Grundstück & Bausubstanz

Gesamtfläche 574 m²
Bürofläche 574 m²
Verfügbar ab kurzfristig

Ausstattungsmerkmale

Inserat befindet sich im Stockwerk 0
 
Karte wird geladen...
Objektstandort
40670 Meerbusch

Kontaktanfrage senden

Über den Anbieter

corealis Commercial Real Estate GmbH
Hohe Straße 8-10
40213 Düsseldorf
Kontakt
Telefon 004921152288470
Fax 004921152288479
Website www.corealis.de
Ansprechpartner/in
Firma
Weitere Anbieterdaten

Weitere Angebote des Anbieters

4.000 teilbar ab 1.300 | Rampen | Ruhrgebiet

Hallen / Lager / Produktion
45307 Essen
4000 m²
Gesamtfläche
1.300 m²
Teilbar ab

Q3 2026 Neuss | ebenerdig/Rampe | Provisionsfrei

Hallen / Lager / Produktion
41462 Neuss
2400 m²
Gesamtfläche
600 m²
Teilbar ab

Düsseldorf-Süd | flexible Andienung | teilbar ab 1 ...

Hallen / Lager / Produktion
Düsseldorf
4000 m²
Gesamtfläche
1.000 m²
Teilbar ab

Duisburg | Provisionsfrei | Sofort | ebenerdig/Rampe

Hallen / Lager / Produktion
47137 Duisburg / Obermeiderich
1450 m²
Gesamtfläche

Repräsentative Büroflächen in Meerbusch-Osterrath zur ...

Büro / Praxen
40670 Meerbusch
574 m²
Gesamtfläche