Repräsentative Büroflächen provisionsfrei zur Miete I Exklusive Ausstattung I Glastrennwände
3.018,38 m²
Nutzfläche
immobilien.de Nr.: 7982545
Objektnummer: 1590
Preise & Kosten
| Kaltmiete | 0 € |
| Nebenkosten | keine Angabe |
| Mietpreis pro m² | 14,5 € |
| Stellplatz Freiplatz Miete} | 60 € |
| Stellplatz Tiefgarage Miete | 75 € |
Größe & Zustand
| Nutzfläche | 3.018,38 m² |
| Gesamtfläche | 17.346,55 m² |
| Bürofläche | 2.728 m² |
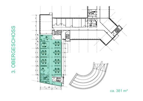
| Fläche teilbar ab | 381 m² |
| Baujahr | 2002 |
| Verfügbar ab | sofort |
Energie
| Energieausweistyp | Bedarfsausweis |
| Gültig bis | 2029-09-30 |
| Baujahr (laut Energieausweis) | 2002 |
| Wesentlicher Energieträger | Gas |
| Energieträger/Befeuerung | Gas |
Objektbeschreibung
Der Büropark, welcher dieses Objekt beinhaltet, basiert auf der Verbindung von vier separaten, miteinander verbundenen Bauteilen. Besonderer Augenmerk wurde auf die Gestaltung der Außenanlagen gelegt. Die großzügigen Grünflächen im Innenhofbereich runden den Gesamteindruck des Gebäudeensembles ab.
Ausstattung
| Boden | Doppelboden |
| Terrassen | 1 |
| Fahrstuhl |
- Natursteinfassade mit Glaselementen
- Isolierverglasung mit Alu-Profilen
- Bandrasterdecken im Flurbereich
- Raumaufteilung flexibel
- 2 Personenaufzüge
- Abgependelte Leuchten
- Hohlraumboden- u. Doppelboden
- Sonnenschutz außenliegend
- Teppichboden
- Lüftung mit Spitzenlastkühlung
- Isolierverglasung mit Alu-Profilen
- Bandrasterdecken im Flurbereich
- Raumaufteilung flexibel
- 2 Personenaufzüge
- Abgependelte Leuchten
- Hohlraumboden- u. Doppelboden
- Sonnenschutz außenliegend
- Teppichboden
- Lüftung mit Spitzenlastkühlung
Lage des Objektes
Düsseldorf-Lichtenbroich; in unmittelbarer Nähe zum Flughafen Düsseldorf International (ca. 1,9 km).
Mit den Autobahnen A52, A44 und A3 liegt das Autobahnetz (Autobahnanschlußstelle Düsseldorf-Rath) direkt am Objekt.
Bushaltestellen, der U- und S-Bahnhof Düsseldorf-Unterrath sind fußläufig in ca. 5-8 Gehminuten zu erreichen.
Mit den Autobahnen A52, A44 und A3 liegt das Autobahnetz (Autobahnanschlußstelle Düsseldorf-Rath) direkt am Objekt.
Bushaltestellen, der U- und S-Bahnhof Düsseldorf-Unterrath sind fußläufig in ca. 5-8 Gehminuten zu erreichen.
Anbieter kontaktieren
Anbieter
corealis Commercial Real Estate GmbH
Hohe Straße 8-10
40213 Düsseldorf
Kontakt
| Telefon | 004921152288470 |
| Fax | 004921152288479 |
| Website | www.corealis.de |
