BUERO.flächen ERSTBEZUG im P3 OFFICE
immobilien.de Nr.: 7686770
Objektnummer: 245/G1/E1/Eh1
Preise & Kosten
| Miete für das Objekt | Auf Anfrage |
| Nebenkosten | keine Angabe |
| Mietpreis pro m² | 14,5 € |
| Maklerprovision | provisionsfrei |
Größe & Zustand
| Bürofläche | 395 m² |
| Bürofläche | 395 m² |
| Fläche teilbar ab | 395 m² |
| Verfügbar ab | keine Angabe |
Objektbeschreibung
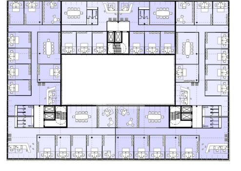
Das insgesamt ca. 9.000 m² umfassende Geschäftshaus erstreckt sich über 5 Geschosse. Diese Etagen können als modernste Büro- und Praxisflächenflächen angemietet werden. Die Etagen werden dabei über zwei separate Eingangsbereiche sowie zwei Treppenhäuser mit Aufzugsanlagen erschlossen. Der Baubeginn erfolgt 2021 und die Flächen werden voraussichtlich bis zum 2023 bezugsfertig hergestellt. Da sich das Projekt noch in der Planung befindet, können Sie Einfluss auf die Gestaltung bzw. Aufteilung Ihres Mietbereichs nehmen und Ihr Wunschbüro realisieren lassen. Im benachbarten P2 hat sich die Bundesagentur für Arbeit und Bundesamt für Naturschutz niedergelassen. Stellplätze stehen in nahegelegenen Parkhaus zur Verfügung.
Im Objekt können folgende Flächen angemietet werden:
- EG mit ca.1.890 m²
- 1.OG mit ca. 1731 m²
- 2. OG mit ca. 1.731 m²
- 3.OG mit ca. 1.731 m²
- 4.OG mit ca. 1731 m²
Im Objekt können folgende Flächen angemietet werden:
- EG mit ca.1.890 m²
- 1.OG mit ca. 1731 m²
- 2. OG mit ca. 1.731 m²
- 3.OG mit ca. 1.731 m²
- 4.OG mit ca. 1731 m²
Sonstige Informationen
Der Mietpreis richtet sich nach der Ausstattungsvariante und liegt zwischen 14,50EUR und 18,50 EUR.
Büroanmietung leicht gemacht?
Bitte sprechen Sie uns an, gern stellen wir Ihnen eine Auswahl geeigneter Büroflächenangebote zusammen. Für Fragen, ein persönliches Gespräch oder auch eine persönliche Terminvereinbarung stehen wir Ihnen gern telefonisch unter 041-5643000 zur Verfügung.
Büroanmietung leicht gemacht?
Bitte sprechen Sie uns an, gern stellen wir Ihnen eine Auswahl geeigneter Büroflächenangebote zusammen. Für Fragen, ein persönliches Gespräch oder auch eine persönliche Terminvereinbarung stehen wir Ihnen gern telefonisch unter 041-5643000 zur Verfügung.
Lage des Objektes
Das Neubauprojekt P3 OFFICE befindet sich auf dem Gelände der Alten Messe Leipzig, nahe der Pragerstraße. Von hier aus sind der Verkehrsknotenpunkt am Hauptbahnhof in ca. 10 min und alle Stadtteile Leipzigs gut zu erreichen. Über die in unmittelbarer Nähe verkehrende B2 ist auch die Verbindung zu den Autobahnanschlüssen A 14 und A 38, zur Neuen Messe und zum Flughafen Leipzig- Halle zügig hergestellt.
