BUERO.flächen in Neubau-Projekt im Leipziger Norden
immobilien.de Nr.: 7686762
Objektnummer: 003/E4/Eh1
Preise & Kosten
| Miete für das Objekt | Auf Anfrage |
| Nebenkosten | keine Angabe |
| Mietpreis pro m² | 16 € |
| Maklerprovision | provisionsfrei |
Größe & Zustand
| Verfügbar ab | keine Angabe |
| Zustand | Erstbezug |
Objektbeschreibung
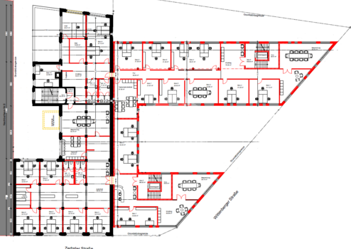
Neben dem hochwertig sanierten Altbau entstehen in dem Neubau repräsentative Büros. Der Bürokomplex hat eine Gesamtfläche von ca. 8992,7 m², die sich über 6 Etagen erstrecken und über mehrere Aufgänge erschlossen werden. Da sich das Projekt noch in der Planung befindet, können Sie Einfluss auf die Gestaltung bzw. Aufteilung Ihres Mietbereichs nehmen.
Aktuell stehen folgende Flächen zur Verfügung, welche sowohl einzeln als auch getrennt angemietet werden können:
- ca. 1392,00 m² im Erdgeschoss
- ca. 1294,00 m² im 1. Obergeschoss
- ca. 1236,00 m² im 2. Obergeschoss
- ca. 1252,00 m² im 3. Obergeschoss
- ca. 714,00 m² im 4. Obergeschoss
In der Tiefgarage stehen Stellplätze für Mieter und Kunden zur Anmietung zur Verfügung.
Aktuell stehen folgende Flächen zur Verfügung, welche sowohl einzeln als auch getrennt angemietet werden können:
- ca. 1392,00 m² im Erdgeschoss
- ca. 1294,00 m² im 1. Obergeschoss
- ca. 1236,00 m² im 2. Obergeschoss
- ca. 1252,00 m² im 3. Obergeschoss
- ca. 714,00 m² im 4. Obergeschoss
In der Tiefgarage stehen Stellplätze für Mieter und Kunden zur Anmietung zur Verfügung.
Sonstige Informationen
Der Mietpreis richtet sich nach Ausstattung, Mietvertragslaufzeit und Lage im Objekt und liegt zwischen 16,00 und 18,00 EUR/ m².
Lage des Objektes
Der moderne Bürokomplex ist nördlich der Leipziger Innenstadt im Stadtteil Eutritzsch gelegen. Dieser Standort ist verkehrstechnisch ideal angebunden, in wenigen Minuten sind von hier aus der Verkehrsknotenpunkt am Hauptbahnhof, sowie alle Stadtteile Leipzigs gut zu erreichen. Über die in unmittelbarer Nähe verkehrende B2 ist auch die Verbindung zu den Autobahnanschlüssen A14 und A38, zur Neuen Messe und zum Flughafen Leipzig- Halle zügig hergestellt. Die Haltestellen der öffentlichen Verkehrsmittel befinden sich in unmittelbarer Nachbarschaft zur Immobilie.
