Istrien, Sisan: Baugrundstück mit genehmigung projekt

52204 Ližnjan, Istrien
139.000 € Kaufpreis
Gesamtfläche
825 m²

Kaufpreis

Kaufpreis 139.000 €

Wohnfläche, Grundstück & Bausubstanz

Gesamtfläche825 m²
Etagen0
Verfügbar ab Keine Angabe

Beschreibung der Immobilie

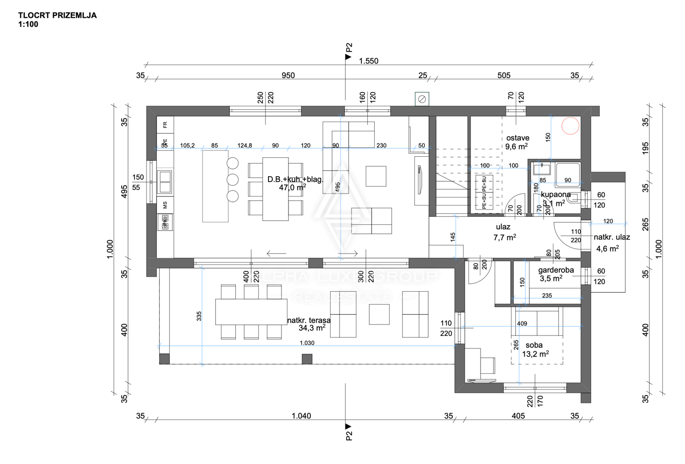
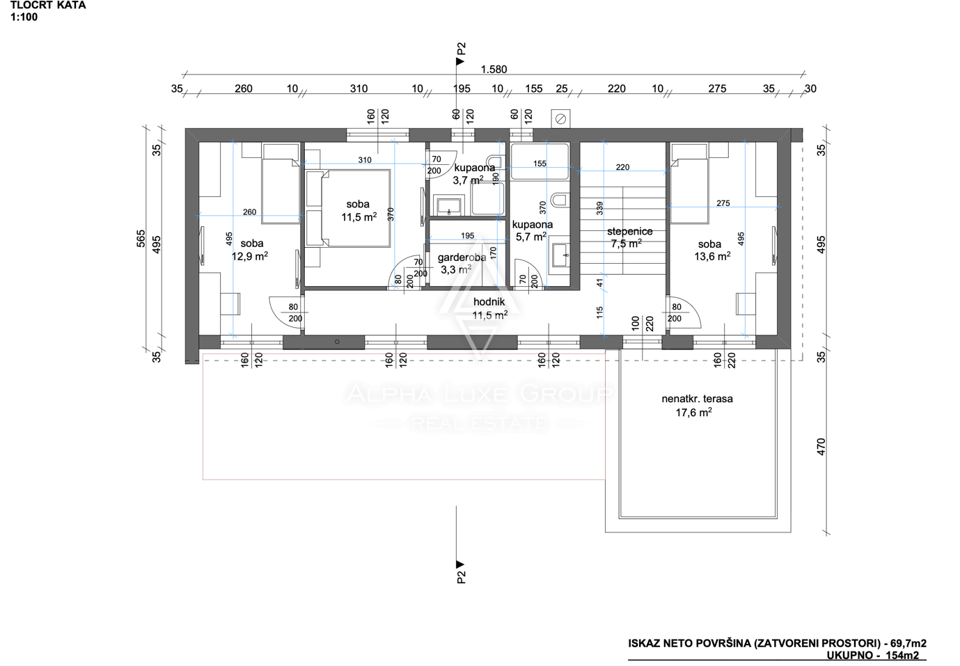
In einer gefragten und ruhigen Lage in Šišan stellt dieses Baugrundstück mit einer Fläche von 825 m² eine hervorragende Gelegenheit für Käufer dar, die eine Immobilie in Istrien entwickeln möchten. Das Grundstück wird mit einer genehmigten Baugenehmigung für den Bau eines modernen zweistöckigen Einfamilienhauses mit Swimmingpool angeboten, was einen schnellen und effizienten Baustart ermöglicht.

Ein vollständig ausgearbeitetes architektonisches Projekt liegt bereits vor, wodurch sich die Vorbereitungszeit erheblich verkürzt und dem zukünftigen Eigentümer ein Baubeginn ohne zusätzliche Planungsphasen ermöglicht wird. Das Projekt wurde sorgfältig konzipiert, um Funktionalität, Komfort und zeitgemäßes Design zu vereinen, mit besonderem Fokus auf Privatsphäre und Wohnqualität. Die geplante Immobilie eignet sich sowohl als dauerhafter Wohnsitz als auch als renditestarke touristische Vermietungsinvestition.

Ein wesentlicher Vorteil ist, dass die Baugenehmigung am 16.04. rechtskräftig wird, wodurch der Bau nahezu sofort beginnen kann. Dies vermeidet administrative Verzögerungen und erhöht den Wert der Investition erheblich, da der gesamte Entwicklungsprozess schneller und sicherer abläuft.

Šišan bietet eine ruhige Wohnumgebung und ist gleichzeitig gut mit wichtigen Zielen wie Pula verbunden. Die Gegend ist bekannt für ihren authentischen istrischen Charakter, ihre natürliche Umgebung und die Nähe zu wunderschönen Stränden an der Südküste. Mit einfacher Erreichbarkeit von Infrastruktur, Restaurants und Freizeitangeboten bietet sie die perfekte Balance zwischen Ruhe und Komfort.

Dies ist eine ausgezeichnete Gelegenheit für Investoren oder Privatkäufer, ein individuelles Zuhause an einem der zunehmend begehrten Standorte in Istrien zu errichten.

Ihre Zufriedenheit ist unsere Mission. Wir freuen uns auf die zukünftige Zusammenarbeit!

Besichtigungen der Immobilie sind ausschließlich nach vorheriger Unterzeichnung eines Maklervertrags gemäß dem Immobilienvermittlungsgesetz möglich.

Die Maklerprovision beträgt 3% + MwSt. und ist bei Abschluss des Vorvertrags oder des endgültigen Kaufvertrags fällig.

https://immobilienistrienkaufen.de

Auf Vertrauen gebaut. An Ergebnissen gemessen.

ID CODE: ALG-3820

Ausstattungsmerkmale


Karte wird geladen...
52204 Ližnjan – Istrien
Ansprechpartner/in: Robert Budimir
+385953631892
Alpha Luxe Group d.o.o.
Mate Vlasica 17, 52440 Porec