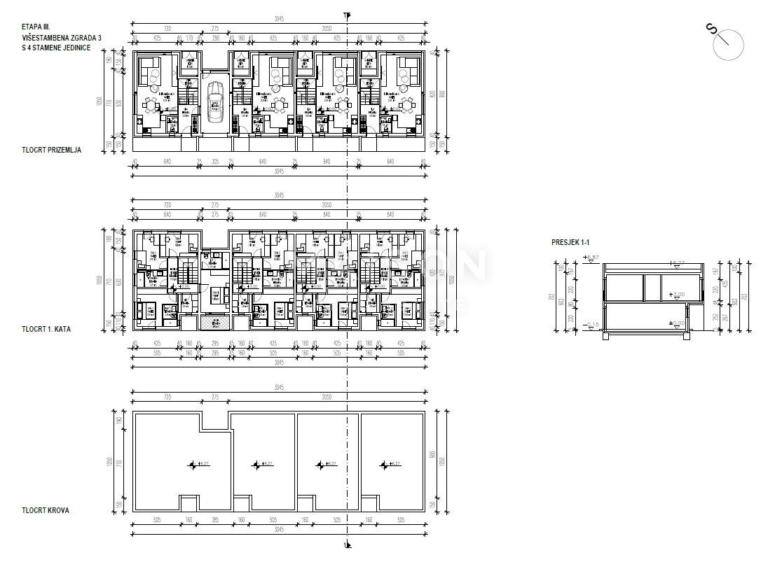
Haus Donja Jaska, Jastrebarsko, 114,45m2

Jastrebarsko, Zagreb (Region) [Zagrebacka]
347.817 € Kaufpreis
Gesamtfläche
113 m²
Zimmer
4

Kaufpreis

Kaufpreis 347.817 €

Wohnfläche, Grundstück & Bausubstanz

Gesamtfläche113 m²
Grundstücksfläche50 m²
Zimmer4
Etagen1
Baujahr2026
Verfügbar ab Keine Angabe

Beschreibung der Immobilie

ID CODE: 872

Ausstattungsmerkmale

Bad2

Karte wird geladen...
Jastrebarsko – Zagreb (Region) [Zagrebacka]
Ansprechpartner/in: Nekretnine1.hr
Nekretnine1 j.d.o.o.
Pomerio 27, 51000 Rijeka