Haus Donja Jaska, Jastrebarsko, 114,45m2

Jastrebarsko, Zagreb (Region) [Zagrebacka]
350.381 € Kaufpreis
Gesamtfläche
114 m²
Zimmer
4

Kaufpreis

Kaufpreis 350.381 €

Wohnfläche, Grundstück & Bausubstanz

Gesamtfläche114 m²
Grundstücksfläche49 m²
Zimmer4
Etagen1
Baujahr2026
Verfügbar ab Keine Angabe

Beschreibung der Immobilie

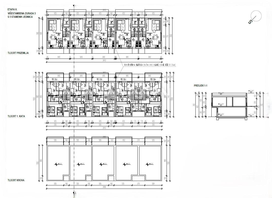
Haus K20 in Jastrebarsko – modernes Familienhaus mit Garten, Terrasse und zwei Parkplätzen

Das Haus K20 mit 99 m² Wohnfläche und 114 m² Gesamtfläche ist die ideale Wahl für Familien, die modernes Design, Funktionalität und Komfort suchen. Es befindet sich in einer ruhigen, grünen Gegend von Jastrebarsko und bietet eine perfekte Balance zwischen Privatsphäre und Nähe zu allen wichtigen Einrichtungen.

Beim Betreten erwartet Sie ein großzügiger Wohnbereich mit offener Küche und Esszimmer. Große Glasflächen sorgen für viel Tageslicht. Drei Schlafzimmer bieten ausreichend Privatsphäre. Zwei moderne Badezimmer sowie ein separates WC gewährleisten Komfort.

Die Außenbereiche umfassen eine überdachte Loggia (4 m²), eine Terrasse (14 m²) und einen Garten (31,1 m²). Zwei Parkplätze (25,2 m²) sind ebenfalls vorhanden.

Hochwertige Ausstattung: elektrische Aluminiumrollläden, Fußbodenheizung, Klimaanlagen, Videoüberwachung und Wärmepumpe.

Maison – denn ein Zuhause ist mehr als nur ein Ort!

ID CODE: 882

Ausstattungsmerkmale

Bad2

Karte wird geladen...
Jastrebarsko – Zagreb (Region) [Zagrebacka]
Ansprechpartner/in: Nekretnine1.hr
Nekretnine1 j.d.o.o.
Pomerio 27, 51000 Rijeka