Haus Crikvenica, 335m2 Luxus definiert durch Raum, Aussicht und Privatsphäre
1/1
51260 Crikvenica, Kvarner Region [Primorsko-Goranska]
1.200.000 €Kaufpreis
Preis/m²
Gesamtfläche
335 m²
Zimmer
5
Kaufpreis
Kaufpreis
1.200.000 €
Wohnfläche, Grundstück & Bausubstanz
Gesamtfläche
335 m²
Zimmer
5
Etagen
2
Baujahr
2026
Verfügbar ab
Keine Angabe
Beschreibung der Immobilie
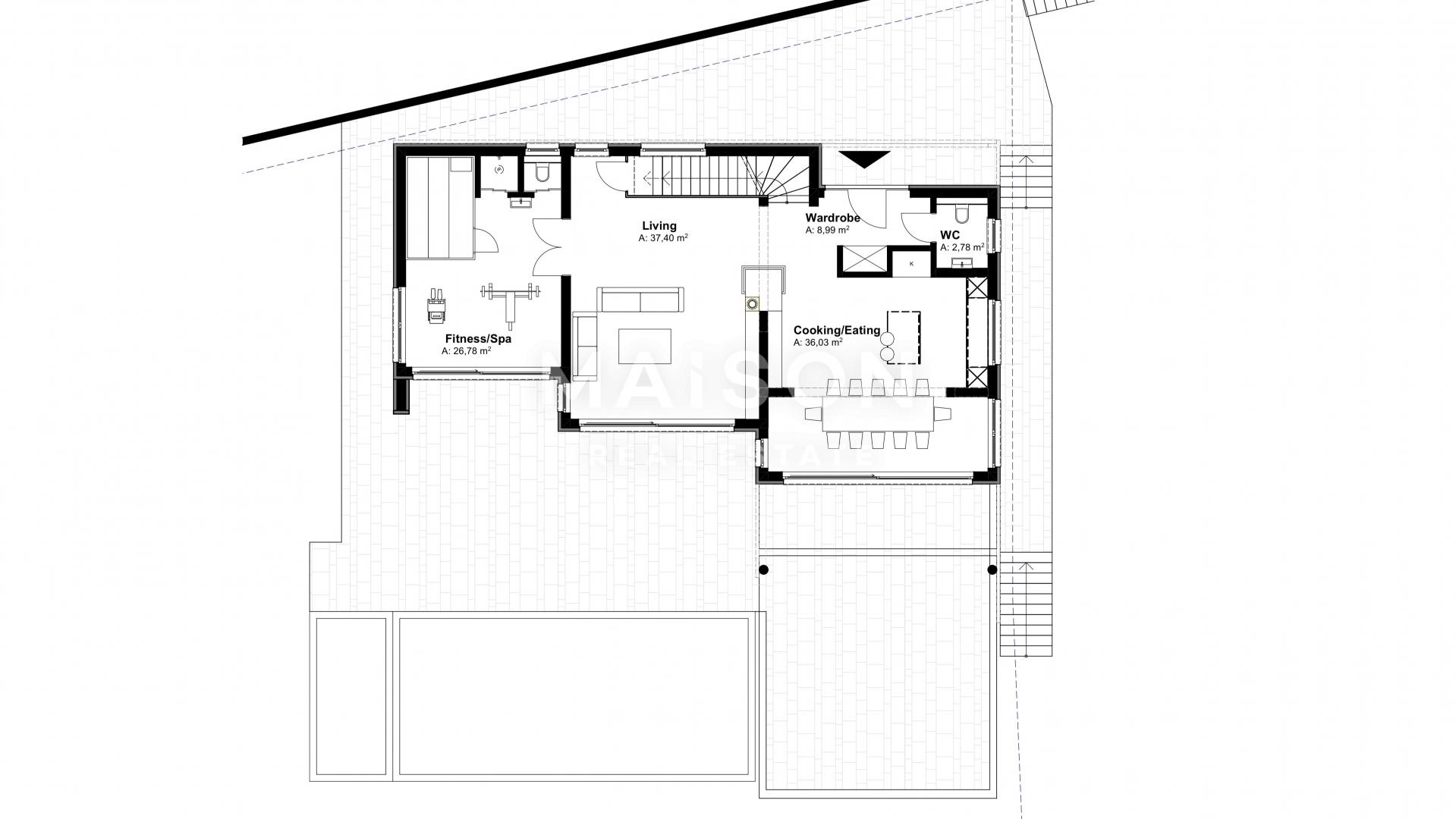
Gelegen in einem der schönsten Teile der Kvarner-Region, in einer ruhigen und repräsentativen Umgebung in unmittelbarer Nähe zum Zentrum von Crikvenica, stellt diese moderne Villa eine perfekte Kombination aus zeitgenössischer Architektur, Luxus und vollständiger Privatsphäre dar. Die Lage der Immobilie ermöglicht einen schnellen Zugang zu allen städtischen Einrichtungen und bietet gleichzeitig ein Gefühl von Abgeschiedenheit und Ruhe, ergänzt durch atemberaubende Ausblicke. Die Villa erstreckt sich über drei Etagen und wurde mit Fokus auf Funktionalität, Großzügigkeit und maximalen Wohnkomfort konzipiert. Sie verfügt über vier elegant gestaltete Schlafzimmer, von denen jedes über ein eigenes Badezimmer sowie einen begehbaren Kleiderschrank verfügt, was vollständige Privatsphäre und Komfort für alle Familienmitglieder oder Gäste gewährleistet. Das Herzstück der Villa bildet ein großzügiger Open-Space-Wohnbereich, der mit Küche und Essbereich verbunden ist. Dieser repräsentative Raum dient der Entspannung und dem geselligen Beisammensein, ist lichtdurchflutet und bietet direkten Zugang zur Terrasse. Große Glasflächen unterstreichen zusätzlich die Verbindung zwischen Innen- und Außenbereich sowie zum Meer. Eine besondere Dimension von Luxus bietet der Wellnessbereich mit Sauna und Jacuzzi, ideal zur ganzjährigen Entspannung, während sich auf der Außenterrasse ein beeindruckender Infinity-Pool befindet, der optisch mit dem Horizont verschmilzt und ein einzigartiges Ambiente mit Panoramablick auf das Meer schafft. Der zusätzliche Wert dieser Immobilie zeigt sich im äußerst großzügigen Untergeschoss, das eine traditionelle Konoba, einen Weinkeller, ein Heimkino, einen Spielbereich, einen Hauswirtschafts- und Technikraum, Abstellräume sowie eine Garage für zwei Fahrzeuge umfasst. Dieser Bereich ist als perfekter Ort für private Zusammenkünfte, Unterhaltung und Entspannung konzipiert. Die Villa ist zum Meer ausgerichtet und bietet einen offenen und unverbaubaren Blick auf Crikvenica, die Insel Krk und den Vinodol-Kanal, was ihre Exklusivität und Seltenheit am Markt zusätzlich unterstreicht. Architektur und Innenausstattung zeichnen sich durch modernes Design, hochwertige Ausführung und sorgfältig ausgewählte Materialien aus, die Langlebigkeit, Ästhetik und ein hohes Wohnniveau gewährleisten. Die Fußbodenheizung wird über eine Wärmepumpe betrieben, während zusätzliche Heizung und Kühlung durch Klimaanlagen in allen Schlafzimmern sowie im Erdgeschoss sichergestellt sind, wodurch ganzjährig optimale Temperaturen gewährleistet werden. Die Villa befindet sich auf einem Grundstück von m², während die gesamte Bruttogrundfläche 560 m² beträgt. Davon entfallen 335 m² auf die Wohnfläche, 128 m² auf Terrassen und 50 m² auf den Außenpool. Die Immobilie wird spätestens bis Ende März 2026 vollständig fertiggestellt und bezugsfertig sein. Diese Immobilie stellt eine außergewöhnliche Gelegenheit für Käufer dar, die eine luxuriöse und architektonisch attraktive Immobilie suchen – sei es als hochwertige Investition zur touristischen Vermietung oder als exklusives Zuhause für ganzjähriges Wohnen. Für weitere Informationen und zur Vereinbarung eines Besichtigungstermins stehe ich Ihnen gerne zur Verfügung.
Maison – denn ein Zuhause ist nicht nur ein Ort, sondern eine Lebensart!
ID CODE: 1384
Ausstattungsmerkmale
Bad
4
Karte wird geladen...
Haus Crikvenica, 335m2 Luxus definiert durch Raum, Aussicht und Privatsphäre
51260 Crikvenica
E-Mail: immobiliende@nekretnine1.hr
51260 Crikvenica
– Kvarner Region [Primorsko-Goranska]