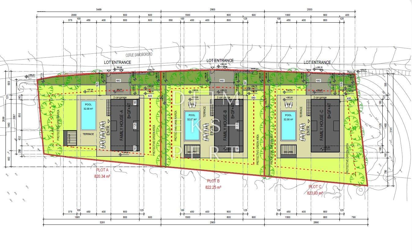
Cerje Samoborsko, Grundstück Cerje Samoborsko, Samobor - Okolica, 820,34m2
150.000 €
Kaufpreis
immobilien.de Nr.: 9440608
Objektnummer: 3073
Kaufpreis
| Kaufpreis | 150.000 € |
Wohnfläche, Grundstück & Bausubstanz
| Gesamtfläche | 820 m² |
| Verfügbar ab | keine Angabe |
Beschreibung der Immobilie
Bauland mit Projektdokumentation für den Bau eines Einfamilienhauses mit Pool zu verkaufen.
Das Projekt sieht eine Reihe von drei identischen Häusern an den Ausläufern des Samoborsko Gorje im Ort Cerje Samoborsko vor, nur wenige Minuten vom Zentrum von Samobor entfernt.
Die Grundstücksfläche beträgt 820,34 m², mit einer Breite von 34 Metern entlang der Straße.
Geplant ist ein freistehendes Einfamilienhaus auf drei Etagen.
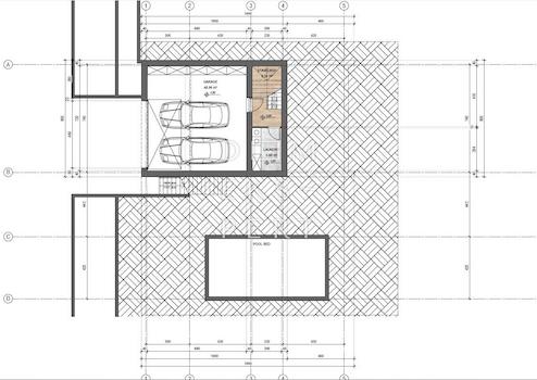
KELLER (63,16 m²):
Eine Garage für zwei Autos, ein Waschraum und eine Innentreppe.
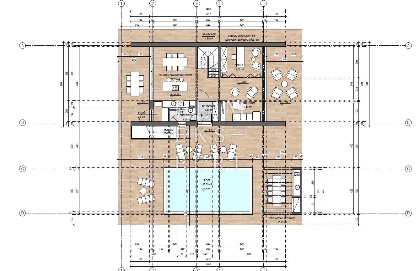
EG (72,04 m²):
Eingangsbereich, Badezimmer, Sauna, Küche, Esszimmer, Wohnzimmer, Büro und Außen-Terrassen.
Im Garten befinden sich ein Pool mit 32 m² und ein Pavillon mit Grillfläche von 15 m².
DACHGESCHOSS (63,32 m²):
Flur, Schlafzimmer mit begehbarem Kleiderschrank und eigenem Badezimmer, zwei weitere Schlafzimmer und ein Badezimmer.
Geplant ist ein modernes und luxuriös eingerichtetes Wohnumfeld mit einem großzügigen und attraktiven Garten, der interessante Features bietet. Besonderer Wert wird auf Funktionalität und Energieeffizienz gelegt.
Die wunderschöne natürliche Umgebung bietet Ruhe und Komfort, weit entfernt vom Trubel der Stadt, aber dennoch in unmittelbarer Nähe aller Annehmlichkeiten.
Ein Antrag auf Baugenehmigung wurde eingereicht.
Der Preis von 135.000 € bezieht sich auf das Grundstück mit Projektdokumentation, und es ist auch möglich, eine schlüsselfertige Option zu verhandeln, wobei der Preis nach Vereinbarung ist.
Die Eigentumsdokumentation ist in Ordnung.
Maklerin: Ana Jelečević
Mobil: +385 98 358 247
Email: ana.jelecevic@domekpsert.hr
ID CODE: 3073
Das Projekt sieht eine Reihe von drei identischen Häusern an den Ausläufern des Samoborsko Gorje im Ort Cerje Samoborsko vor, nur wenige Minuten vom Zentrum von Samobor entfernt.
Die Grundstücksfläche beträgt 820,34 m², mit einer Breite von 34 Metern entlang der Straße.
Geplant ist ein freistehendes Einfamilienhaus auf drei Etagen.
KELLER (63,16 m²):
Eine Garage für zwei Autos, ein Waschraum und eine Innentreppe.
EG (72,04 m²):
Eingangsbereich, Badezimmer, Sauna, Küche, Esszimmer, Wohnzimmer, Büro und Außen-Terrassen.
Im Garten befinden sich ein Pool mit 32 m² und ein Pavillon mit Grillfläche von 15 m².
DACHGESCHOSS (63,32 m²):
Flur, Schlafzimmer mit begehbarem Kleiderschrank und eigenem Badezimmer, zwei weitere Schlafzimmer und ein Badezimmer.
Geplant ist ein modernes und luxuriös eingerichtetes Wohnumfeld mit einem großzügigen und attraktiven Garten, der interessante Features bietet. Besonderer Wert wird auf Funktionalität und Energieeffizienz gelegt.
Die wunderschöne natürliche Umgebung bietet Ruhe und Komfort, weit entfernt vom Trubel der Stadt, aber dennoch in unmittelbarer Nähe aller Annehmlichkeiten.
Ein Antrag auf Baugenehmigung wurde eingereicht.
Der Preis von 135.000 € bezieht sich auf das Grundstück mit Projektdokumentation, und es ist auch möglich, eine schlüsselfertige Option zu verhandeln, wobei der Preis nach Vereinbarung ist.
Die Eigentumsdokumentation ist in Ordnung.
Maklerin: Ana Jelečević
Mobil: +385 98 358 247
Email: ana.jelecevic@domekpsert.hr
ID CODE: 3073
Ausstattungsmerkmale
| Anzahl der Etagen im Haus | 0 |
Karte wird geladen...
Objektstandort
10430 Samobor - Okolica
- Zagreb (Region) [Zagrebacka]
Kontaktanfrage senden
Über den Anbieter
Dom Ekspert d.o.o.
Varazdinska cesta 111
10360 Sesvete
Kontakt
| Telefon | +385 1 627 8237 |
| Mobil | +385 98 358 247 |
Ansprechpartner/in
Ana Jelečević