Spectakuläre Villa in Olbia Sardinien
1.290.000 €
Kaufpreis
600 m²
Wohnfläche
8
Zimmer
immobilien.de Nr.: 9385041
Objektnummer: 001 Villa Olbia
Kaufpreis
| Kaufpreis | 1.290.000 € |
| Maklerprovision | 3,57% aus dem Kaufpreis inkl. 19% MwSt. |
Wohnfläche, Grundstück & Bausubstanz
| Wohnfläche | 600 m² |
| Grundstücksfläche | 700 m² |
| Zimmer | 8 |
| Verfügbar ab | keine Angabe |
Beschreibung der Immobilie
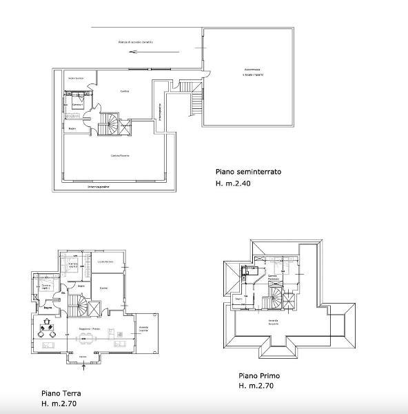
Willkommen in Olbia, hier bieten wir Ihnen eine spektakuläre und neue Villa von etwa 600 Quadratmetern auf drei Ebenen, die einzigartig ist.
Die hohe Sorgfalt bis ins kleinste Detail beeindrucken bei diesem exklusiven Anwesen.
Sämtliche Räume verfügen über ein durchdachtes Beleuchtungssystem Innen wie Außen.
Das Erdgeschoss besteht aus einer geräumigen Küche mit Blick auf den Pool und den Garten, dem Pavillonbereich aus Schmiedeeisen von 60 Quadratmetern mit Vorhängen und Winterschließungen.
Der elegant verarbeitete und im Detail durchdachte Speisesaal ist etwa 60 Quadratmeter groß.
Auf der gleichen Etage befinden sich zwei Schlafzimmer mit zwei Bädern und ein Technikraum neben der Küche von ca. 12 m2, der als Waschküche genutzt wird.
Im Obergeschoss finden wir das große Hauptschlafzimmer mit eigenem Bad, das mit einer Doppeldusche ausgestattet ist, einen 7 m² großen Kleiderschrank, eine große Terrasse, die an drei Seiten des Schlafzimmers verläuft und den Garten, den Swimmingpool und die Auffahrt zur Villa überblickt.
Im Untergeschoss wurde ein Spiel-/Erholungsbereich geschaffen, der sich auf über 70 qm in eine toskanisch-rustikale Taverne mit rustikaler Küche, Holzofen, großem Holztisch, Riesenleinwand und Wohnzimmer aufteilt, daneben gibt es noch eine weitere Raum mit der Funktion eines klimatisierten Weinkellers.
Auch im Untergeschoss gibt es ein Badezimmer und ein Schlafzimmer, im rustikalen Stil, ein kleines Arbeitszimmer, ein weiteres Schlafzimmer mit Badezimmer für das Personal, ein voll ausgestattetes Fitnessstudio von etwa 50 m2, das zum Spa führt, bestehend aus einem exklusiven türkischen Bad mit Farbtherapie. Dusche und große Hydromassagewanne für fünf Personen, wo zur Erleichterung der Entspannung Audiosysteme, ein Sternenhimmel mit Swarovski-LEDs und Glasfasern vorhanden sind.
Alle Etagen werden von einem luxuriösen Kone-Aufzug mit 2 Ausgängen pro Etage bedient.
Weiter durch den Korridor mit Antipanik-/Brandschutztür gelangen Sie in die 110 m2 große Garage mit stahlfarbenen Wandverkleidungen und kunstharzbeschichtetem Boden mit elektrischer Drehtür, 4 Meter breit mit Fahrzeugrampe.
Auch ein Erweiterungsprojekt zur Volumenvergrößerung im Obergeschoss mit dem Ziel der Errichtung einer zweiten Suite ist bereits vorgestellt.
Besonders zu erwähnen sind:
Fußbodenheizung, Kühlung über hocheffiziente Wärmepumpen und das sehr hohe technologische Niveau, das vorhanden ist, wie fortschrittliche Hausautomation, Hochrisiko-Sicherheitssysteme und das integrierte Videoüberwachungssystem.
EUR 1 290 000 zuzügl. 3,57% Käuferprovision inkl. 19% MwSt.
Kontakt Info@Immopointeurope.de
Die hohe Sorgfalt bis ins kleinste Detail beeindrucken bei diesem exklusiven Anwesen.
Sämtliche Räume verfügen über ein durchdachtes Beleuchtungssystem Innen wie Außen.
Das Erdgeschoss besteht aus einer geräumigen Küche mit Blick auf den Pool und den Garten, dem Pavillonbereich aus Schmiedeeisen von 60 Quadratmetern mit Vorhängen und Winterschließungen.
Der elegant verarbeitete und im Detail durchdachte Speisesaal ist etwa 60 Quadratmeter groß.
Auf der gleichen Etage befinden sich zwei Schlafzimmer mit zwei Bädern und ein Technikraum neben der Küche von ca. 12 m2, der als Waschküche genutzt wird.
Im Obergeschoss finden wir das große Hauptschlafzimmer mit eigenem Bad, das mit einer Doppeldusche ausgestattet ist, einen 7 m² großen Kleiderschrank, eine große Terrasse, die an drei Seiten des Schlafzimmers verläuft und den Garten, den Swimmingpool und die Auffahrt zur Villa überblickt.
Im Untergeschoss wurde ein Spiel-/Erholungsbereich geschaffen, der sich auf über 70 qm in eine toskanisch-rustikale Taverne mit rustikaler Küche, Holzofen, großem Holztisch, Riesenleinwand und Wohnzimmer aufteilt, daneben gibt es noch eine weitere Raum mit der Funktion eines klimatisierten Weinkellers.
Auch im Untergeschoss gibt es ein Badezimmer und ein Schlafzimmer, im rustikalen Stil, ein kleines Arbeitszimmer, ein weiteres Schlafzimmer mit Badezimmer für das Personal, ein voll ausgestattetes Fitnessstudio von etwa 50 m2, das zum Spa führt, bestehend aus einem exklusiven türkischen Bad mit Farbtherapie. Dusche und große Hydromassagewanne für fünf Personen, wo zur Erleichterung der Entspannung Audiosysteme, ein Sternenhimmel mit Swarovski-LEDs und Glasfasern vorhanden sind.
Alle Etagen werden von einem luxuriösen Kone-Aufzug mit 2 Ausgängen pro Etage bedient.
Weiter durch den Korridor mit Antipanik-/Brandschutztür gelangen Sie in die 110 m2 große Garage mit stahlfarbenen Wandverkleidungen und kunstharzbeschichtetem Boden mit elektrischer Drehtür, 4 Meter breit mit Fahrzeugrampe.
Auch ein Erweiterungsprojekt zur Volumenvergrößerung im Obergeschoss mit dem Ziel der Errichtung einer zweiten Suite ist bereits vorgestellt.
Besonders zu erwähnen sind:
Fußbodenheizung, Kühlung über hocheffiziente Wärmepumpen und das sehr hohe technologische Niveau, das vorhanden ist, wie fortschrittliche Hausautomation, Hochrisiko-Sicherheitssysteme und das integrierte Videoüberwachungssystem.
EUR 1 290 000 zuzügl. 3,57% Käuferprovision inkl. 19% MwSt.
Kontakt Info@Immopointeurope.de
Sonstige Informationen
Welcome to Olbia, here we offer a spectacular and new villa of about 600 square meters on three levels, unique.
The great care down to the smallest detail is impressive in this exclusive property.
All rooms have a well thought-out lighting system inside and outside.
The ground floor consists of a spacious kitchen overlooking the pool and garden, the wrought iron gazebo area of 60 square meters with curtains and winter closures.
The dining room, elegantly finished and well thought out in detail, is about 60 square meters.
On the same floor there are two bedrooms with two bathrooms and a technical room next to the kitchen of about 12 m2 used as a laundry room.
On the upper floor we find the large ensuite master bedroom equipped with a double shower, a 7m2 wardrobe, a large terrace that runs on three sides of the bedroom and overlooks the garden, the swimming pool and the driveway to the villa.
A play/recreation area was created in the basement, which is divided into a 70 sqm Tuscan-rustic tavern with a rustic kitchen, wood-burning stove, large wooden table, giant screen and living room, next to it there is another room with the function of an air-conditioned wine cellar.
Also on the lower floor there is a bathroom and a bedroom, in a rustic style, a small study, another bedroom with a bathroom for the staff, a fully equipped gym of about 50 m2 leading to the spa consisting of an exclusive Turkish bath with chromotherapy . Shower and large hydromassage tub for five people, where to facilitate relaxation there are audio systems, a starry sky with Swarovski LEDs and fiber optics.
All floors are served by a luxury Kone elevator with 2 exits per floor.
Continuing through the corridor with anti-panic/fire door you enter the 110 m2 garage with steel colored wall cladding and resin coated floor with electric revolving door, 4 meters wide with vehicle ramp.
An expansion project to increase the volume on the upper floor with the aim of building a second suite has already been presented.
Particularly noteworthy are:
Underfloor heating, cooling via high efficiency heat pumps and the very high level of technology that is in place such as advanced home automation, high risk security systems and the integrated video surveillance system.
EUR 1 290 000 plus 3.57% buyer's commission incl. 19% VAT.
Contact Info@Immopointeurope.de
The great care down to the smallest detail is impressive in this exclusive property.
All rooms have a well thought-out lighting system inside and outside.
The ground floor consists of a spacious kitchen overlooking the pool and garden, the wrought iron gazebo area of 60 square meters with curtains and winter closures.
The dining room, elegantly finished and well thought out in detail, is about 60 square meters.
On the same floor there are two bedrooms with two bathrooms and a technical room next to the kitchen of about 12 m2 used as a laundry room.
On the upper floor we find the large ensuite master bedroom equipped with a double shower, a 7m2 wardrobe, a large terrace that runs on three sides of the bedroom and overlooks the garden, the swimming pool and the driveway to the villa.
A play/recreation area was created in the basement, which is divided into a 70 sqm Tuscan-rustic tavern with a rustic kitchen, wood-burning stove, large wooden table, giant screen and living room, next to it there is another room with the function of an air-conditioned wine cellar.
Also on the lower floor there is a bathroom and a bedroom, in a rustic style, a small study, another bedroom with a bathroom for the staff, a fully equipped gym of about 50 m2 leading to the spa consisting of an exclusive Turkish bath with chromotherapy . Shower and large hydromassage tub for five people, where to facilitate relaxation there are audio systems, a starry sky with Swarovski LEDs and fiber optics.
All floors are served by a luxury Kone elevator with 2 exits per floor.
Continuing through the corridor with anti-panic/fire door you enter the 110 m2 garage with steel colored wall cladding and resin coated floor with electric revolving door, 4 meters wide with vehicle ramp.
An expansion project to increase the volume on the upper floor with the aim of building a second suite has already been presented.
Particularly noteworthy are:
Underfloor heating, cooling via high efficiency heat pumps and the very high level of technology that is in place such as advanced home automation, high risk security systems and the integrated video surveillance system.
EUR 1 290 000 plus 3.57% buyer's commission incl. 19% VAT.
Contact Info@Immopointeurope.de
Karte wird geladen...
Objektstandort
07026 Olbia
- Sardinien
Kontaktanfrage senden
Über den Anbieter
Immopointeurope
Schillerallee 6
75378 Bad Liebenzell
Kontakt
| Telefon | 07052 930384 |
| Mobil | 01607988336 |
| Fax | 07052 747853 |
| Website | www.immopointeurope.de |
Ansprechpartner/in
Maximilian Allgayer